Nội dung toàn văn Tiêu chuẩn Việt Nam TCVN 222:1966 về Hệ thống quản lý bản vẽ – Khung tên và bảng kê trên các bản vẽ và tài liệu kỹ thuật do Ủy ban Khoa học và Kỹ thuật Nhà nước ban hành
TIÊU CHUẨN VIỆT NAM
TCVN 222 – 66
HỆ THỐNG QUẢN LÝ BẢN VẼ
KHUNG TÊN VÀ BẢNG KÊ TRÊN CÁC BẢN VẼ VÀ TÀI LIỆU KỸ THUẬT
Tiêu chuẩn này quy định các mẫu khung tên và bảng kê trên các bản vẽ và tài liệu kỹ thuật của sản phẩm sản xuất chính và sản xuất phụ.
I. KHUNG TÊN
1. Nội dung, cách bố trí và kích thước các ô của khung tên trên các bản vẽ và tài liệu kỹ thuật phải theo các mẫu 1, 2, 3, 3a và 4a.
Mẫu 1 dùng cho các bản vẽ.
Mẫu 2 dùng cho các bản vẽ chi tiết của sản phẩm sản xuất phụ khi bố trí nhiều bản vẽ trên cùng một tờ.
Mẫu 3 và 3a dùng cho các tài liệu kỹ thuật theo TCVN 224 – 66 và giới thiệu mẫu 4 và 4a dùng cho các tài liệu kỹ thuật viết.
2. Khung tên phải bố trí ở góc phải phía dưới của bản vẽ hay tài liệu kỹ thuật (trừ mẫu 4 và 4a).
Trên khổ giấy 11, phải đặt khung tên dọc theo cạnh ngắn của tờ giấy.
Trên các khổ giấy khác thì nên bố trí khung tên dọc theo cạnh dài của tờ giấy.
Bảng ghi sửa đổi trên khung tên theo mẫu 1, khi cần thiết có thể lập tiếp lên trên hoặc sang bên trái của khung tên.
3. Trên các tờ có khổ lớn hơn khổ 24, để tìm thấy nhanh trên bản vẽ các phần cấu thành của sản phẩm hay những phần tử đã sửa đổi, nên chia mặt bản vẽ ra thành các miền (xem phụ lục). Chiều dài của mỗi khoảng chia trên các cạnh của tờ giấy phải lấy bằng độ dài của một trong hai cạnh của khổ 11.
Các khoảng chia theo chiều nằm ngang của tờ giấy ký hiệu bằng các số Ả-rập và theo chiều thẳng đứng bằng các chữ cái hoa (A, B, C,..v.v..) bắt đầu từ góc phải phía dưới. Mỗi miền được ký hiệu bằng một cặp chữ và số “A1”, “A2” hay “B1”, “B2”, “B3” v.v..
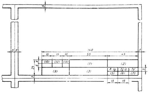
4. Nội dung ghi trong các ô của khung tên (số của ô ghi trong các dấu ngoặc) như sau:
Ô 1 – tên gọi của sản phẩm hay phần cấu thành của sản phẩm (theo yêu cầu của TCVN 221 – 66) là đối tượng để lập bản vẽ hay tài liệu kỹ thuật đó. Cho phép ghi tên gọi của tài liệu ví dụ: “Bản kê tổng quát”.
Ô 2 – Ký hiệu của tài liệu kỹ thuật theo TCVN 223 – 66.
Chú thích: Trong hệ thống ký hiệu theo sản phẩm cho phép không ghi trong ô 2 ký hiệu của sản phẩm, khi ký hiệu này đã ghi ở bên phải của ô 20.
Ô 3 – ký hiệu vật liệu của chi tiết.
Trên bản vẽ toàn thể (hình dáng ngoài), bản vẽ kích thước choán chỗ, bản vẽ lắp đặt và sơ đồ thì để trống ô này.
Ô 4 – số lượng của chi tiết, nhóm, bộ phận, sản phẩm.
Ô 5 – khối lượng của chi tiết, nhóm, bộ phận, sản phẩm theo TCVN 221 – 66.
Ô 6 – tỷ lệ dùng để vẽ.
Ô 7 – Số thứ tự của tờ.
Đối với những bản vẽ hay tài liệu kỹ thuật lập trên một tờ thì để trống ô này.
Trên khung tên theo mẫu 2 để trống ô này khi tất cả các bản vẽ của sản phẩm được lập trên một tờ.
Ô 8 – tổng số tờ của tài liệu (của đối tượng ghi trong ô 1). Cho phép chỉ ghi tổng số tờ trên tờ thứ nhất.
Đối với bản vẽ của sản phẩm sản xuất phụ, khi bố trí nhiều bản vẽ chi tiết trên cùng một tờ thì ghi tổng số tờ đã lập tất cả các bản vẽ của sản phẩm.
Ô 9 – tên hay biệt hiệu của xí nghiệp (cơ quan) phát hành ra tài liệu.
Trên những bản vẽ có khung tên theo mẫu 2 có thể chỉ ghi tên hay biệt hiệu của phòng (hay bộ phận, phân xưởng) trong xí nghiệp.
Ô 10 – chức năng của những người đã ký vào tài liệu, ví dụ: người thiết kế, người kiểm tra, người kiểm tra tiêu chuẩn, người duyệt..v.v..
Ô 11 – họ và tên của những người đã ký vào tài liệu.
Ô 12 – chữ ký.
Ô 13 – ngày, tháng, năm ký vào tài liệu.
Đối với các tài liệu viết không bắt buộc phải điền vào các ô này trên các tờ tiếp sau tờ đầu.
Ô 14 – ký hiệu của miền tờ giấy trên đó có phần tử được sửa đổi.
Ô 15 – 19 – các ô trong bảng ghi sửa đổi được điền vào theo quy định của TCVN 225 – 66.
Ô 20 – số liệu khác theo ý kiến của cơ quan thiết kế (ví dụ tên gọi của sản phẩm).
Cho phép sử dụng phần bên phải của ô 20 để ghi ký hiệu của sản phẩm.
Ô 21 – họ và tên người can bản vẽ.
Ô 22 – ký hiệu khổ giấy theo TCVN 2 – 63.
Ô 23 – tài liệu này được phát hành để thay cho tài liệu nào phát hành trước.
Chú thích: ô 14 chỉ lập khi cần thiết.
5. Phần ghi chú thuộc thủ tục lưu trữ bản vẽ và tài liệu kỹ thuật, khi cần thiết, có thể lập ở góc trái dưới bên ngoài khung của bản vẽ và tài liệu kỹ thuật.
Nội dung và cách thức ghi chú lưu trữ do tổ chức tiêu chuẩn hóa cơ sở quy định.
6. Dấu hiệu phân biệt bằng chữ (T, T1, T2,…, A, B,… – theo TCVN 220 – 66) phải khắc thành dấu để đóng ở phía trên khung tên của bản vẽ và tài liệu kỹ thuật.
II. BẢNG KÊ TRÊN CÁC BẢN VẼ
7. Nội dung, cách bố trí và kích thước các ô của bảng kê trên các bản vẽ phải theo mẫu 5 hay mẫu 6.
Đối với bản vẽ của sản phẩm sản xuất phụ, nên sử dụng bảng kê theo mẫu 6.
Bảng kê theo mẫu 6 cũng cho phép dùng cho bản vẽ của sản phẩm sản xuất đơn chiếc.
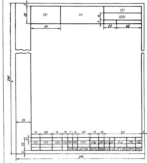
8. Nội dung ghi trong các ô của bảng kê (số của ô ghi trong các dấu ngoặc) như sau:
Ô 24 – ký hiệu các miền tờ giấy, trên đó bố trí hình vẽ các phần cấu thành của sản phẩm.
Chỉ lập ô này khi chia mặt bản vẽ ra thành từng miền.
Ô 25 – số vị trí của các phần cấu thành của sản phẩm, tương ứng với số vị trí ghi trên nét ngang của đường dóng trên bản vẽ lắp hay bản vẽ lắp đặt theo TCVN 17 – 63 và TCVN 221 – 66.
Không ghi số vị trí cho các vật liệu cần thiết để lắp khi không biểu diễn bằng hình vẽ.
Trong trường hợp ghi ký hiệu của bản vẽ trên nét ngang của đường dóng thì không phải điền vào cột này.
Ô 26 – 28 – ký hiệu, tên gọi và số lượng các phần cấu thành của sản phẩm, bao gồm trong bảng kê, theo yêu cầu của TCVN 221 – 66.
Đối với những phần cấu thành được ghi trong bảng kê như vật liệu thì trong ô 29 ghi số lượng của vật liệu bằng kg hay bằng các đơn vị đo tương ứng với vật liệu ấy.
Ô 29 – khối lượng phần cấu thành của sản phẩm.
Ô 30 – ký hiệu vật liệu của chi tiết.
Ô 31 – số thứ tự của tờ bản vẽ chi tiết. Chỉ lập cột 31 đối với các bản vẽ của sản phẩm sản xuất phụ, khi bản vẽ có từ 2 tờ trở lên.
Ô 32 – những số liệu cần ghi chú.
Mẫu 1
Khung tên trên bản vẽ

Mẫu 2
Khung tên trên bản vẽ của sản phẩm sản xuất phụ

Mẫu 3
Khung tên trên các tài liệu kỹ thuật
(tờ thứ nhất hay tờ chính)

Mẫu 3a
Khung tên trên các tài liệu kỹ thuật
(các tờ tiếp sau)

Mẫu 4
Khung tên và các khung phụ trên các tài liệu kỹ thuật viết
(tờ thứ nhất hay tờ chính)

Mẫu 4a
Khung tên và các khung phụ trên các tài liệu kỹ thuật viết
(các tờ tiếp sau)

Mẫu 5
Bảng kê trên bản vẽ

Mẫu 6
Bảng kê trên bản vẽ

PHỤ LỤC
CÁC VÍ DỤ PHÂN CHIA TỜ GIẤY CỦA BẢN VẼ RA THÀNH CÁC MIỀN
Ví dụ 1

Ví dụ 2



