Tiêu chuẩn Việt Nam TCVN3981:1985

  • Loại văn bản: Tiêu chuẩn Việt Nam
  • Số hiệu: TCVN3981:1985
  • Cơ quan ban hành: ***
  • Người ký: ***
  • Ngày ban hành: ...
  • Ngày hiệu lực: ...
  • Lĩnh vực: Xây dựng
  • Tình trạng: Không xác định
  • Ngày công báo: ...
  • Số công báo: Còn hiệu lực

Nội dung toàn văn Tiêu chuẩn Việt Nam TCVN 3981:1985 về trường đại học – tiêu chuẩn thiết kế


TIÊU CHUẨN VIỆT NAM

TCVN 3981 : 1985

TRƯỜNG ĐẠI HỌC – TIÊU CHUẨN THIẾT KẾ
Universities – Design standard

Tiêu chuẩn này áp dụng để thiết kế mới, thiết kế cải tạo các ngôi nhà cà công trình trường đại học, trong phạm vi toàn quốc.

Đối với những trường có yêu cầu đặc biệt được cơ quan có thẩm quyền đồng ý, được phép xây dựng theo luận chứng kinh tế kĩ thuật riêng.

Tiêu chuẩn này có thể áp dụng tham khảo để thiết kế các ngôi nhà và công trình trong khu vực học tập, đối với các trường đại học xây dựng tạm thời.

1. Quy định chung

Quy mô công trình

1.1. Quy mô các trường đại học được tính toán theo tổng số học sinh tính thuộc hệ dài hạn, chuyên tu, sau và trên đại học cộng với 20% số học sinh thuộc hệ tại chức theo bảng 1

Bảng 1

Loại trường đại học

Số lượng học sinh

Tổng hợp

Bách khoa và kĩ thuật

Nông nghiệp

Sư phạm

Kinh tế

Y, dược

Văn hóa, nghệ thuật

Thể dục, thể thao

Từ 3000 đến 6000 học sinh

Từ 4000 đến 6000 học sinh

Từ 2000 đến 5000 học sinh

Từ 3000 đến 5000 học sinh

Từ 2000 đến 4000 học sinh

Từ 1500 đến 4000 học sinh

Từ 500 đến 1500 học sinh

Từ 500 đến 1500 học sinh

1.2. Số lượng học sinh thuộc hệ bồi dưỡng và nâng cao nghiệp vụ tính theo luật chứng kinh tế kĩ thuật.

1.3. Số lượng học sinh hệ dự bị tính theo luận chứng kinh tế kĩ thuật, nhưng không được ít hơn 40 học sinh.

Phân cấp công trình

1.4. Trường đại học được thiết kế theo 4 cấp công trình: cấp I, cấp II, cấp III, cấp IV theo tiêu chuẩn 2748: 1978

Chú thích:

a) Cấp công trình ghi trong luận chứng kinh tế kỹ thuật và phải được cơ quan có thẩm quyền phê duyệt.

b) Cấp công trình IV chi xây dựng ở những nơi quy hoạch chưa ổn định và chưa có điều kiện đầu tư. Khi xây dựng theo cấp IV phải bảo đảm những quy định theo tiêu chuẩn này.

c) Trong trường đại học xây dựng nhiều cấp công trình thì các công trình dùng để học tập phải được xây dựng ở cấp công trình cao hơn.

2. Yêu cầu về khu đất xây dựng và mặt bằng toàn thể

2.1. Việc bố trí địa điểm xây dựng các trường đại học phải tính đến phát triển của trường trong tương lai, còn việc sử dụng đất phải tiến hành từng đợt theo kế hoạch xây dựng, tránh chiếm đất quá sớm.

2.2. Khi xây dựng nhiều trường đại học trong cùng một thành phố, phải tập trung vào một khu hoặc thành các cụm trường đại học, tạo thành các trung tâm đào tạo, hỗ trợ lẫn nhau trong học tập và kết hợp sử dụng chung các công trình sinh hoạt và phục vụ công cộng, thể dục thể thao.

2.3. Các trường Tổng hợp và Bách khoa nên bố trí ngoài khu dân cư của thành phố, còn các trường Nông nghiệp bố trí ở ngoại thành hoặc ngoài thành phố.

2.4. Một trường đại học gồm các khu vực sau đây:

– Khu học tập và các cơ sở nghiên cứu khoa học;

– Khu thể dục thể thao;

– Khu kí túc xá học sinh bao gồm nhà ở và các công trình phục vụ sinh hoạt;

– Khu nhà ở của cán bộ giảng dạy và cán bộ công nhân viên;

– Khu công trình kĩ thuật bao gồm trạm bơm, trạm biến thế, xưởng sửa chữa, kho tàng và nhà để xe ô tô, xe đạp.

Chú thích:

a) khu thể dục thể thao cần được bố trí liên hệ trực tiếp với khu học tập và khu sinh hoạt của học sinh.

b) Đối với những trường đại học xây dựng ở xa khu nhà ở, nếu được phép xây dựng khu ở của cán bộ công nhân viên trong khu đất nhà trường thì phải bố trí riêng thành một khu theo tiêu chuẩn hiện hành.

2.5. Khu đất xây dựng trường đại học phải bảo đảm một số yêu cầu sau đây:

– Yên tĩnh cho việc học tập và nghiên cứu, không bị chấn động, nhiễu loạn điện từ khói và hơi độc v.v… ảnh hưởng đến sức khoẻ của cán bộ, học sinh và đến các thiết bị thí nghiệm, nghiên cứu.

– Có đường giao thông thuận tiện, bảo đảm cho việc đi lại của cán bộ, học sinh, cho việc vận chuyển vật tư, thiết bị kĩ thuật và sinh hoạt của trường.

– Thuận tiện cho việc cung cấp điện, nước, hơi, thông tin liên lạc v.v… từ mạng lưới cung cấp chung của thành phố và các điểm dân cư, giảm chi phí về đường ống, đường dây.

– Khu đất phải thoáng, cao ráo, ít tốn kém về biện pháp xử lý móng công trình hay thoát nước khu vực.

2.6. Diện tích đất xây dựng khu vực học tập của các trường đại học, áp dụng theo bảng 2.

2.7. Diện tích khu đất thể dục thể thao được tính l ha/1000 học sinh.

Chú thích:

a) Khu thể dục thể thao bao gồm các sân bãi và các công trình có mái che hoặc không có mái che.

b) Đối với trường đại học thể dục thề thao không tính thêm diện tích đất khu thể dục thể thao.

c) Các trường dưới 2000 học sinh được tính 1,5 ha/1000 học sinh và ít nhất là phải có 1ha đất cho khu thể dục thể thao của một trường đại học.

2.8. Diện tích đất xây dựng khu nhà ở của học sinh được tính từ 1,2 ha đến 2,0 ha/trên 1000 học sinh (nhà ở 5 tầng lấy 1,2 ha/1000 học sinh, nhà ở một tầng lấy 2,0ha/1000 học sinh).

Bảng 2

Loại trường đại học

Diện tích đất, tính bằng ha/100 học sinh với các quy mô

Dưới 2000

Từ 2000 đến 4000

Từ 4000 đến 6000

Tổng hợp

Bách khoa và kĩ thuật

Nông nghiệp

Sư phạm

Kinh tế

Y dược

Văn hoá, nghệ thuật

Thể dục thể thao

 

 

 

 

4

4

4

3

20

5

5.5

5.0

5.0

3

3

4.5

5

4.5

2.5

Chú thích: Diện tích đất xây dựng cho các cơ sở thực tập hoặc thí nghiệm lớn như bãi nghiệm vật liệu xây dựng, trại chân nuôi, ruộng vườn thí nghiệm, bãi tập lái xe v.v… không vào tiêu chuẩn đất xây dựng.

2.9. Mặt bằng toàn thể một trường đại học phải nghiên cứu, thiết kế hoàn chỉnh, giải quyết tốt mối quan hệ giữa việc xây dựng trước mắt và phát triển tương lai, các công trình xây dựng cố định với những công trình tạm thời, nhất là đối với học tập, nghiên cứu khoa học và các xưởng thực hành.

2.10. Mật độ xây dựng của khu học tập khoảng từ 20 đến 25%

2.11. Các ngôi nhà và công trình học tập của trường đại học phải cách đường đỏ ít nhất là 15m.

Trong trường hợp phải bố trí các ngôi nhà và công trình gần các đường cao tốc đường giao thông chính thì khoảng cách so với đường đỏ phải từ 50m trở lên.

2.12. Khu đất xây dựng trường đại học, không cho phép các đường cao tốc, đường giao thông chính và các đường phố chia cắt, cần giải quyết tốt luồng người đi bộ và giao thông xe cộ trong trường.

2.13. Trong khu đất xây dựng trường đại học cần dự tính các bãi đỗ xe ô tô ngoài trời, nhà để xe máy, xe đạp và các phương tiện giao thông khác.

2.14. Khu đất xây dựng trường đại học phải rào xung quanh bằng cây xanh, nếu dùng các loại vật liệu khác phải được cấp có thẩm quyền phê duyệt.

2.15. Diện tích vườn hoa, cây xanh chiếm khoảng 40% diện tích toàn bộ khu trường.

3. Yêu cầu thiết kế các ngôi nhà và công trình

Nhà học tập

3.1. Các nhà học của trường đại học cho phép thiết kế với chiều cao không quá 5 tầng. Trường hợp đặc biệt phải đợc phê chuẩn trong luận chứng kĩ thuật.

3.2. Diện tích các loại phòng tính toán theo các điều quy định của chương này, phụ thuộc vào chức năng của từng phòng và theo số lượng học sinh. Thành phần các phòng của nhà học được quy định trong luận chứng kinh tế kĩ thuật.

3.3. Số lượng và diện tích các phòng học, giảng đường, phòng thí nghiệm, xưởng thực tập và sản xuất v.v… đều tính sử dụng luân phiên 2 ca trong một ngày, tính theo ca đồng nhất.

3.4. Chiều cao các tầng nhà (trên mặt đắt) của trường đại học được quy định phù hợp với chức năng các phòng và yêu cầu về thiết bị kĩ thuật.

a. Các phòng học, phòng vẽ kĩ thuật, phòng thiết kế, giảng đường dưới 75 chỗ, các phòng làm việc… lấy 3,3m và 3,6m.

b. Chiều cao các giảng đường trên 75 chỗ, phòng thí nghiệm có các thiết bị cỡ lớn, kho sách giá hai tầng, xưởng trường thì tuỳ theo yêu cầu công nghệ lấy từ 4,2m trở lên. Chiều cao hội trường theo tiêu chuẩn hiện hành.

Chú thích:

a) Chiều cao tính từ mặt sàn tầng dưới đến mặt sàn tầng trên.

b) Giới hạn thấp nhất của chiều cao phòng chỉ áp dụng cho các giảng đường sàn phòng.

3.5. Giảng đường, phòng học và phòng thí nghiệm cần được bố trí ở các tầng trên mặt đất, nếu có yêu cầu đặt thiết bị ở dưới đất thì phải bố trí các phòng trên ở sàn tầng hầm.

3.6. Theo yêu cầu của quá trình học tập cần có nhà cầu nối các nhà học riêng biệt với nhau.

3.7. Thiết kế trường đại học cần tính toán chống ồn áp dụng theo bảng 3

Bảng 3

Loại phòng

Độ ồn, tính theo phòng

Tính toán

Cho phép

1

2

3

1. Giảng đường, lớp học, phòng thí nghiệm

2. Phòng đọc sách, phòng cho mượn sách

3. Phòng thể thao

4. Phòng hành chính

5. Phòng đánh máy

6. Phòng vô tuyến

85

70

90

80

80

85

40

35

40

40

50

30

3.8. Trong hội trường, các giảng đường từ 100 chỗ trở lên nên bố trí các thiết bị âm thanh theo tính toán của môi loại phòng.

3.9. Chiếu sáng tự nhiên và nhân tạo trong các phòng của trường đại học theo tiêu chuẩn hiện hành.

3.10. Các phòng của trường đại học cần được chiếu sáng tự nhiên, trực tiếp.

3.11. Bố trí bàn ghế, thiết bị trong các phòng học và phòng thí nghiệm phải bảo đảm chiếu sáng tự nhiên từ bên trái chỗ học, chỗ thí nghiệm của học sinh.

Chú thích: Trong các giảng đường lớn hơn 200 chỗ được chiếu sáng tự nhiên cần phải chú ý bố trí các khoảng lấy ánh sáng từ hai phía.

3.12. Cần thiết kế theo tính toán các hệ thống che nắng bằng vật liệu không cháy cho các giảng đường và các phòng học khác tuỳ thuộc vào vùng khí hậu và hướng của ngôi nhà.

3.13. Chiều cao từ mặt sàn đến mép dưới cửa sổ tường bao quanh các phòng học, phòng thí nghiệm… cần lấy ít nhất là 0,80 mét.

3.14. Diện tích cho các giảng đường, lớp học, áp dụng theo bảng 4.

3.15. Diện tích các phòng chuẩn bị trực thuộc các giảng đường áp dụng theo bảng 5

3.16. Thiết kế chiếu phim trong các giảng đường theo TCXD 48: 1971.

3.17. Trong các lớp học dưới 75 chỗ cho phép thiết kế sàn không dốc.

3.18. Trong trường hợp không có hệ thống có điều hoà không khí, khối tích các phòng học cho một học sinh không được ít hơn 4m3.

Bảng 4

Tên giảng đường, lớp học

Diện tích cho 1 chỗ (không được lớn hơn), m2

1

2

1. Giảng đường 500 chỗ

2. Giảng đường 400 chỗ

3. Giảng đường 300 – 200 chỗ

4. Giảng đường 150 chỗ

5. Giảng đờng 100 chỗ

6. Lớp học 75 – 50 chỗ

7. Lớp học 25 chỗ

8. Phòng học 12 – 25 chỗ với các thiết bị dạy và kiểm tra

9. Giảng đường nghệ thuật, sân khấu 200 – 300 chỗ

0,90

1,00

1,10

1,20

1,30

1,50

2,20

3,00

1,80

 

Bảng 5

Tên phòng

Diện tích m2

1. Phòng chuẩn bị dùng cho giảng đường vật lí 500 – 400 chỗ

2. Phòng chuẩn bị dùng cho giảng đường vật lí 300 – 200 chỗ

3. Phòng chuẩn bị dùng cho giảng đường hoá học 300 – 200

4. Phòng chuẩn bị dùng cho giảng đường toán học cao cấp, hình học hoạ hình, sức bền vật liệu và; các môn học khác với số chỗ:

– 300 : 200 chỗ

– 150 : l00 chỗ

5. Phòng dụng cụ cho các giảng đường vật lí

144

108

72

 

 

72

36

72

3.19. Khoảng cách giữa các lưng tựa của ghế trong giảng đường và lớp học phụ thuộc vào số chỗ trong mỗi hàng ghế và số lối thoát, áp dụng theo bảng 6.

Bảng 6

Số chỗ cho hàng ghế có lối thoát

Khoảng cách nhỏ nhất giữa các lưng tựa của ghế (cm)

Một phía

Hai phía

Mặt ghế lập

Mặt ghế cố định

6

12

12

24

89

90

90

95

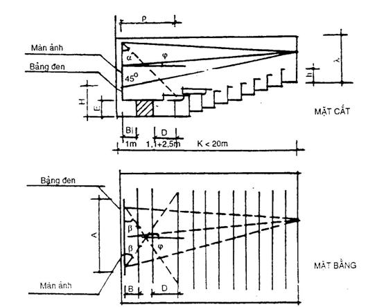
3.20. Khoảng cách giữa các thiết bị trong phòng học và các kích thước nhìn chính áp dụng theo bảng và hình vẽ.

Chú thích: Diện tích mặt bảng (phần để viết) nhỏ nhất là:

-5m2 đối với giảng đường 50 – 75 chỗ;

-7m2 đối với giảng đường 160 – 150 chỗ;

– 10m2 đối với giảng đường 200 chỗ và lớn hơn.

Bảng 7

Kí hiệu

Khoảng cách giữa các thiết bị

Kích thước nhìn

 

 

 

 

 

r

α

j

 

 

 

 

 

β

 

 

 

 

 

h

λ

 

Khoảng cách giữa bàn trên và bàn dưới trong cùng một dãy

Khoảng cách giữa các dãy bàn khi giảng đường không quá 50 chỗ

Khoảng cách giữa bàn giáo viên và bảng đen hoặc tường

Khoảng cách từ bảng đen tới hàng ghế đầu (trong trường hợp không có bàn thao tác)

Khoảng cách từ màn ảnh tới lng tựa của hàng ghế đầu

Góc đứng tạo bởi tia nhìn của người ngồi hàng thứ nhất tới mép trên của màn ảnh theo phương thẳng đứng

Góc nghiêng của trục quang học máy chiếu tới chính giữa mặt phẳng màn ảnh

– Theo mặt phẳng ngang

– Theo mặt phẳng đứng

+ Hướng lên trên

+ Hướng xuống dưới

Góc ngang bởi tia nhìn hướng tới mép thẳng đứng xa nhất của bảng đen với tường bằng trên mặt bảng ngang tầm mắt của học sinh

Tia nhìn nhỏ nhất của người ngồi sau phải vượt quá tia nhìn của người ngồi trước:

– Đối với tia nhìn hướng tới mép gần nhất của mặt bằng thao tác (trong các giảng đường có từ 100 chỗ trở lên)

– Đối với tia nhìn hướng tới mép dưới bảng đen (trong các giảng đường không có thao tác)

Chiều cao tính toán của người ngồi lấy từ sàn đến tầm mắt

Chiều cao từ mặt sàn bậc trên cùng trong giảng đường kiểu sàn bậc thang tới mép dưới của kết cấu trần

ít nhất là 70cm

ít nhất là 60cm

ít nhất là 90cm

ít nhất là 200cm

 

ít nhất là 300cm

ít nhất là 450

 

 

ít nhất là 450

 

không lớn hơn 30

không lớn hơn 100

 

không ít hơn 300

 

12cm

 

5cm

110cm

ít nhất là 25cm

A

 

 

B

D

 

 

K

 

E

H

Chiều rộng của bảng đen đối với giảng đường

– Dưới 100 chỗ

– Trên l00 chỗ

Khoảng cách từ bàn thao tác đến bảng đen

Khoảng cách từ bàn thao tác đến bàn hoặc chỗ viết của hàng đầu tiên trong các giảng đường

– Dưới 100 chỗ

– Trên 100 chỗ

Khoảng cách từ bảng đen đến hàng ghế dưới cùng

 

Khoảng cách từ mép dưới bảng đen đến sàn giảng đường

Khoảng cách từ mép trên. của mặt bảng (phấn để viết) đến sàn giảng đường

 

ít nhất là 400cm

ít nhất là 500cm

100cm

 

 

110cm

250cm

Không lớn hơn

2000cm

90cm

Không lớn hơn

250cm

 

 

3.21. Trong các giảng đường không cho phép thiết kế các lối vào, cầu thang và các bậc lên xuống, cản trở các tầm nhìn tới bảng đen.

3.22. Trong trường hợp không có bàn thao tác, mặt sàn trước bảng đen có thể nâng cao hơn 0,35m so với mặt sàn của hàng ghế đầu, chiều rộng của phần sàn nâng cao trước bảng đen ít nhất là 1,5m, còn chiều rộng thông thuỷ của lối đi giữa phần sàn nâng cao và hàng ghế đầu ít nhất là 2,lm. Trong trường hợp có bàn thao tác thì mặt bàn từ bảng đen đến hàng ghế thứ hai không làm độ dốc.

3.23. Kích thước ghế tựa có chỗ để viết cho một chỗ không nhỏ hơn: chiều rộng 0.55m, chiều cao chỗ ngồi 0,40m. Chiều cao mép dưới của mặt bàn viết 0, 70m.

Kích thước bàn cho mỗi chỗ ở giảng đường và phòng học không nhỏ hơn chiều rộng 0,50m, chiều dài 0,60m, chiều cao 0,70m. Mỗi bàn nên làm kiểu 2 chỗ.

3.24. Phòng chuẩn bị trực thuộc giảng đường phải có ít nhất 2 cửa, một của trực tiếp thông với giảng đường và một cửa mở ra hành lang.

3.25. Diện tích các phòng học, phòng vẽ kĩ thuật, phòng thiết kế bài tập năm học và thiết kế tốt nghiệp cùng với diện tích các phòng phụ áp dụng theo bảng 8.

3.26. Diện tích của các phòng học chuyên ngành đặc biệt với các phương tiện dạy học theo chương trình, phòng kĩ thuật máy tính và phòng học ngoại ngữ áp dụng theo bảng 9.

3.27. Các phòng thiết kế tốt nghiệp phải được tính toán để có thể phục vụ cùng một lúc 50% tổng số học sinh tốt nghiệp. Mỗi phòng được thiết kế ít nhất là 12 và nhiều nhất là 50 học sinh tốt nghiệp.

3.28. Trong trường hợp đặt thiết bị trên bàn, lối đi trong phòng thí nghiệm không được nhỏ hơn:

– Giữa các dãy bàn là 70cm;

– Giữa bàn và tờng là 50cm;

– Giữa bàn trên và bàn dưới khi làm việc một hàng là 80cm;

– Giữa bàn trên và bàn dưới khi làm việc 2 hàng là 160cm

Bảng 8

Tên phòng

Đơn vị tính

Diện tích (m2)

1- Phòng học đặt các thiết bị phụ thuộc vào việc bố trí và chức năng thiết bị song không được nhỏ hơn

2- Các phòng vẽ kĩ thuật, phòng thiết kế bài tập môn học và thiết kế tốt nghiệp

3- Các phòng như trên (số 20) của các trường đại học kiến trúc và nghệ thuật cũng như các phòng mĩ thuật, hội hoạ, điêu khắc, các lớp sân khấu, âm nhạc và diễn tập.

4- Phòng lưu trữ thuộc các phòng thiết kế bài tập môn học và thiết kế tốt nghiệp (phục vụ 2 phòng)

– Trong các trường đại học kiến trúc nghệ thuật

– Trong các trường đại học khác

5- Phòng mô hình thuộc các phòng vẽ kĩ thuật

– Trong các trường đại học kĩ thuật

– Trong các trờng đại học kiến trúc xây dựng và mỹ thuật

cho một chỗ

 

 

 

phòng

 

2,2

 

3,6

 

6,0

 

 

36

18

 

36

72

 

Bảng 9

Tên phòng

Đơn vị tính

Diện tích (m2)

1- Các phòng học chuyên ngành đặc biệt với các phương tiện kĩ thuật giảng dạy theo chương trình

– Lớp có các máy giảng dạy và kiểm tra

– Lớp có các máy giảng dạy và kiểm tra với hệ thống thông tin kiểm tra

– Phòng máy tính để bàn

– Phòng máy tính điện từ (phụ thuộc vào loại máy tính)

– Phòng chuẩn bị các điều kiện cho trước

– Phòng lập chương trình

– Phòng phụ đạo về kĩ thuật máy tính

– Phòng phục vụ các phòng kĩ thuật máy tính

2- Các phòng học ngoại ngữ:

– Phòng ghi âm

– Phòng chuẩn bị cho phòng ghi âm và ngữ âm

– Xưởng và phòng máy ghi âm

– Phòng ngữ âm

 

cho 1 chỗ

– phòng

cho 1 chỗ

phòng

cho 1 chỗ

 

 

 

2.2

3

3

6-7,5

54

2,2

36

18

3

1,8

18

36

1,8

 

3.29. Đối với những phòng thí nghiệm có các yêu cầu đặc biệt về môi trường học tập phải có các thiết bị bổ sung (tủ hút hơi độc, tủ đựng quần áo đặc biệt, ống thoát hơi độc, thoát nước, chậu rửa, buồng tắm v. v…)

3.30. Trang bị và bố trí các phương tiện giảng dạy trong các phòng học theo các yêu cầu của việc tổ chức quá trình học tập.

Thư viện

3.31. Thư viện trường đại học thiết kế theo số lượng người như sau:

– 100% số lượng học sinh

– 100% số nghiên cứu sinh hệ dài hạn, số giáo sư, cán bộ giảng dạy và cán bộ khoa học.

3.32. Khối lượng sách của thư viện lấy theo số lượng người:

a) Trong các trường đại học tổng hợp y khoa, văn hóa và nghệ thuật, sư phạm tính 123 đơn vị sách cho mỗi người.

b) Trong các trường đại học kĩ thuật, kinh tế, công nghiệp tính l06 đơn vị sách cho mỗi người.

Khối lượng sách ít sử dụng và sách dự trữ được bảo quản gọn không được chiếm quá 20% tổng số sách của thư viện.

3.33. Tuỳ thuộc vào các điều kiện của trường, có thể thiết kế các chi nhánh thư viện giữa một số khoa, từng khoa hoặc bộ môn cũng như các chi nhánh thư viện ở các bộ phận nghiên khoa học và những bộ phận khác của trường đại học, kể cả ở kí túc xá và câu lạc bộ trực thuộc thư viện chung của trường.

Khối lượng sách nhiều nhất của tất cả chi nhánh không được vượt quá 20% tổng số sách chung của trường.

3.34. Khối lượng sách của thư viện khoa học cần có là 20% tổng số sách phục vụ cho toàn khoa, song không được lớn hơn 30 nghìn đơn vị sách.

3.35. Số chỗ trong các phòng đọc của thư viện lấy theo số phần trăm của tổng số độc giả.

a) Đối với các trường tổng hợp, sư phạm, y khoa và nghệ thuật là 15% trong đó có 2% ở các thư viện khoa.

b) Đối với các trường đại học kĩ thuật, nông nghiệp và dược khoa là 12% trong đó có 2% ở các thư viện khoa.

c) Đối với các trường đại học văn hóa là 20%.

3.36. Trong thành phần thư viện cần có phòng diễn giảng với số chỗ áp dụng theo bảng 10.

3.37. Thư viện phải có các lối vào phục vụ riêng liên hệ với nhóm các phòng phục vụ của thư viện. Không cho phép thiết kế các lối đi xuyên qua các phòng thư viện và các phòng khác của trường.

Bảng 10

Số lượng học sinh

Số chỗ trong phòng diễn giảng

1000

2000

3000

4000

5000

6000

50

50

50

100

100

150

 

3.38. Diện tích các phòng trong thư viện áp dụng theo bảng 11

Bảng 11

Tên phòng

Chỉ số tính toán

Đơn vị

Diện tích m2

1- Diện tích chỗ cho mượn sách về nhà

– Cho người đọc

– Cho nhân viên công tác ở thư viện

2 – Diện tích chỗ cho mượn sách ở phòng đọc

– Cho người đọc

 

– Cho nhân viên công tác ở thư viện

3 – Phòng trưng bày sách

4 – Mục lục sách độc giả

– Diện tích để mục lục

 

 

– Diện tích cho nhân viên

5 – Bộ phận tra cứu thông tin cho người đọc

6- Các phòng đọc dành cho các nhóm học sinh

 

cho 1 người đọc

 cho 1 nhân viên

 

cho 1 người đọc

 

 cho 1 nhân viên

cho 1 người đọc

 

 

cho 1 tủ mục lục

(2 vạn phiếu)

cho 1 nhân viên cho 1 người đọc

 

cho 1 người

20%

chỗ của phòng đọc

 

 

15% số chỗ của phòng đọc

 

 

 

 

 

 

 

 

40% số chỗ của phòng đọc

80% số chỗ của phòng đọc

 

1,8

5,0

 

1,5

 

5,0

0,5

 

 

3,5

 

 

4,0

0,1

2,4

3,0

7 –Các phòng đọc dành cho nghiên cứu khoa học.

 

Trong đó phòng đọc riêng, phòng đọc tài liệu khổ lớn và sách kín

8- Kho sách

– Báo quản chính

 

– Bảo quản kín

– Bảo quản hở dễ lấy

– Diện tích cho nhân viên phục vụ

9 – Chỗ cho mượn sách chung của các thư viện

10- Các bộ phận bổ sung, chỉnh lí và mục lục sách

11- Các phòng thu, chụp micro, phim in lại, bảo quản, đóng sách và phục chế.

12- Các phòng phục vụ sản xuất

13 – Phòng bơi cặp, túi sách

14 – Phòng chủ nhiệm thư viện

8% số chỗ phòng đọc cho bộ phận nghiên cứu KH

cho 1000 đơn vị sách

 

 

cho 1 nhân viên cho 1 nhân viên cho 1 tủ mục lục

4 vạn phiếu

cho 1 vạn cuốn

 

cho 1 vạn phiếu

 cho 1 người đọc

cho 1 chủ nhiệm

 

 

 

 

70% tổng số sách

 

20%

10%

 

5,0

 

 

2,5

 

1,25

5,0

4,0

6,0

 

2,0

2,0

 

3,0

0,04

0,18

Chú thích: Đối với các trường có những yêu cầu đặc biệt như trường âm nhạc, nghệ thuật ngoại ngữ… Cơ cấu các phòng trong thư viện cần thay đồi và bổ sung theo luận chứng kinh tế kỹ thuật.

Hội trường

3.39. Thiết kế và trang bị các phòng của hội trường phải bảo đảm khả năng sử dụng cho hội họp, biểu diễn văn nghệ, chiếu phim màn ảnh rộng và sinh hoạt câu lạc bộ.

3.40. Số chỗ trong hội trường phụ thuộc vào số lượng học sinh tính toán, lấy theo bảng 12

Bảng 12

Phòng

Số lượng học sinh

1000

2000

3000

4000

5000

Hội trường

500

700

800

900

1000

 

Chú ý: Số chỗ trong hội trường cần tính đến khả năng phát triển tương lai của trường đại học.

3.41. Diện tích hội trường và các phòng phụ thuộc áp dụng theo bảng 13.

Bảng 13

Tên phòng

Đơn vị tính

Diện tích m2

1- Hội trường (không kể sân khấu)

cho 1 chỗ ngồi

0,08

2 – Hội nghị kết hợp với lối vào, hành lang, chỗ giải khát…

 

0,20

3 – Các phòng câu lạc bộ

chỗ 100 học sinh

9,00

4 – Các phòng chủ tịch đoàn

phòng

36,00

5 – Phòng hóa trang

phòng

10,00

6 – Kho đặt cạnh sân khấu

tổng cộng

25% diện tích sân khấu

7 – Khu vệ sinh đặt cạnh sân khấu

tổng cộng

2 – 4 chỗ

8 – Nhà tắm đặt cạnh sân khấu

tổng cộng

2 – 4 ngàn

9 – Phòng chiếu phim

tổng cộng

36,00

10- Trạm cứu hoả

phòng

10,00

 

3.42. Trong các trường đại học văn hóa nghệ thuật, hội trường và các giảng đưng chuyên ngành cần có các thiết bị sân khấu đặc biệt thì phải gộp lại trong một tổ hợp kiến trúc dùng để diễn tập, thành phần áp dụng theo bảng 14.

Bảng 14

Loại phòng

Số chỗ trong hội trường của các loại trường khác nhau

Văn hóa

Sân khấu

Nhạc viện

1- Hội trường sử dụng nhiều chức năng

2-Nhà hát diễn tập

3-Phòng hòa nhạc

4-Phòng nhạc kịch

5-Giảng đường có sân khấu

6-Giảng đường có sân khấu biến thế

700

 

 

 

 

250

 

600

 

 

300

230

 

 

500

300

 

3.43. Các hội trường sử dụng nhiều chức năng và nhà hát diễn tập cần được thiết kế bảo đảm cho việc thay đổi các hình thức biểu diễn

Nhà hành chính, làm việc

3.44. Thành phần và diện tích các phòng quản lí, phục vụ (Hiệu bộ, đoàn thể xã hội, các phòng ban, ấn loát tài liệu, các bộ phận liên lạc với nước ngoài, phòng tiếp khách các văn phòng khoa…) được tính toán theo biên chế quy định nhưng diện tích chung của chúng không được lớn hơn:

– 0,6m2/học sinh đối với các trường có từ 4000 đến 6000 học sinh

– 07m2/học sinh đồi với các trường có từ 2000 – 4000 học sinh

– 0,8m2/học sinh đối với các trường có từ 1000 – 2000 học sinh

– 0,1m2/học sinh đối với các trường có từ dưới 1000 học sinh.

3.45. Trong thành phần các phòng của từng bộ môn cần có phòng chủ nhiệm bộ môn với diện tích 18m2 Các phòng làm việc của cán bộ giảng dạy bộ môn 4m2 tính cho toàn bộ cán bộ giảng dạy và phòng phương pháp giảng dạy với diện tích lớn nhất 54m2

3.46. Thành phần và số lượng phòng làm việc của các cán bộ nghiên cứu khoa học được xác định theo luận chứng kinh tế kĩ thuật.

3.47. Thành phần, diện tích và yêu cầu đối với các phòng của trung tâm máy tính cũng như loại máy tính, số lượng máy tính và chức năng của các trung tâm máy tính được quy định trong luận chứng kinh tế kĩ thuật.

Yêu cầu về diện tích và kích thước một số bộ phận khác

3.48. Diện tích sảnh, chỗ để áo, mũ nón khu việc sinh và các loại kho áp dụng theo bảng 15

3.49. Chiều rộng hành lang ít nhất phải là l,4m. Đối với hành lang trong các ngôi nhà trí phòng học và chiều rộng nhà cầu nối các ngôi nhà ít nhất phải là 2,2m.

3.50. Cho phép sử dụng các hành lang có chiều rộng từ 2,6m trở lên kết hợp làm chỗ nghi.

3.51. Trong môi khu vệ sinh cần chia ra buồng vệ sinh cho cán bộ giảng dạy.

3.52. Các thang máy chuyển người được thiết kế trong các ngôi nhà cao trên tầng,cao độ sàn của tầng trên cùng so với cao độ hè hay thềm nhà (ở lối vào chính của ngôi nhà) từ 15m trở lên số lượng thang máy trong nhà được lấy theo tính toán nhưng không được ít hơn 2.

3.53. Các thang máy vận chuyển hàng hóa được bố trí theo yêu cầu của dây chuyền công nghệ và sử dựng.

Bảng 15

Tên phòng

Đơn vị tính

Diện tích m2 hoặc số lượng thiết bị

1

2

3

1- Các sảnh và nơi để mũ nón

2- Khu vệ sinh

 

3- Các phòng kho trong các nhà học cho các thiết bị học tập, sinh hoạt

4- Các kho đồ đạc khác

– Các trường dưới 2000 học sinh

– các trường trên 2000 học sinh

1 chỗ

học sinh

 

100 học sinh

 

 

100 học sinh

0.15

1 xí, tiểu, 1 chậu rửa cho 40 học sinh nữ

1 xí, tiểu, 1 chậu rửa cho 40 học sinh nam

3

 

 

2

1.5

 

Chú thích:

a) Sảnh và nơi để mũ nón áo lấy theo số lượng học sinh tính toán nhân với hệ số 1.4 (tính hệ số lượng giáo sư, cán bộ giảng dạy, nhân viên phục vụ, học viên hệ bồi dưỡng công tác khoa học).

b) Khi thiết kế trường đại học số lượng nữ để tính toán khu vệ sinh phụ thuộc vào thành phần nhân khẩu của học sinh (tỉ lệ học sinh nữ lấy khoảng 30-30% trong các trường đại học tổng hợp, kỹ thuật và nông nghiệp, 60-70% trong các trường sư phạm,kinh tế, y khoa và nghệ thuật.

Công trình thể dục thể thao

3.54. Các loại công trình, số lượng và kích thước các phòng thể dục thể thao của trường đại học áp dụng theo bảng 16

Bảng 16

Các công trình thể thao có mái

Kích thước, m

Số lượng công trình tính theo số học sinh (1000 học sinh)

Dài

Rộng

Cao

1

2

3

4

5

6

1- Phòng thể thao cho thể dục dụng cụ và các môn thể thao khác

36

18

8

 

1

1

1

1

1

2- Phòng thể dục thể thao loại trung bình

24

14

7

1

 

 

 

 

1

Chú thích.

a) Số lượng các công trình thể dục thể thao của trường đại học thể dục thể thao theo luận chững kinh tế kỹ thuật

b)  Cho phép những trường hợp đặc biệt thiết kế bể bơi có mái che kích thước 50 x22 đối với một trường hay một cụm trường đại học có số lượng học sinh tính toán trên 10000 người và bể bơi đặt tại trường có số lượng học sinh lớn nhất

3.55. Số lượng các công trình thể thao ngoài trời của trường đại học áp dụng theo bảng 17.

Báng 17

Tên công trình thể thao ngoài trời

Số lượng công trình tính theo số học sinh

1

2

3

4

5

6

1

2

3

4

5

6

7

1-Sân thể thao cơ bản với sân bóng đá có đường chạy dài 400m

 

 

1

1

1

1

2- Sân bóng chuyền

2

3

4

4

6

6

3- Sân bóng rổ

1

1

1

2

2

2

4- Sân quần vợt

1

1

1

2

2

2

5- Bể bơi ngoài trời 50mx21m

 

 

1

1

1

1

 

Chú thích:

a) Số lượng và loại công trình thể dục thể thao ngoài trời của trường đại học thể dục thể thao theo luận chứng kinh tế kĩ thuật.

b) Đối với trường đại học dưới 2000 học sinh chỉ thiết kế sân thể thao cơ bàn loại nhỏ đường vòng khép kín dài, 50m và bể bơi ngoài trời có kích thước 25x15m

c) Sân bóng chuyền, bóng rổ cho phép hợp /ại tính đến khả năng sử dụng làm bóng ném 3.56. Kích thước các công trình thể dục thể thao, cấu tạo, kết cấu sàn, thành phần và diện tích các phòng phụ trong nhà thể dục thể thao bể bơi và sân bãi lấy theo tiêu chuẩn hiện hành về thiết kế công trình thể dục thể thao.

3.57. Không cho phép bố trí các công trình thể thao có mái ở trên các phòng học.

3.58. Không cho phép bố trí các sân thể thao ngoài trời ở trớc cửa sổ phòng học viện, khoảng cách từ cửa sổ các phòng khác tới sân bóng ít nhất là 20m.

Nhà ở học sinh

3.59. Nhà ở học sinh các trờng đại học phải thiết kế bảo đảm cho học sinh nội trú các hệ:

– 100% học sinh hệ dài hạn

– 100% học sinh hệ chuyên tu

– 20% học sinh hệ tại chức

– 100% học sinh hệ sau, trên đại học, học sinh nước ngoài và hệ bồi dưỡng, dự bị.

3.60. Khi thiết kế nhà ở học sinh cần theo những quy định của tiêu chuẩn nhà ở hiện hành.

3.61. Diện tích ở cho các hệ học sinh áp dụng theo bảng 18.

3.62. Mỗi nhà ở học sinh cần có phòng tiếp khách, sinh hoạt chung… với diện tích không lớn quá 36m2.

3.63. Khu vệ sinh trong các nhà ở học sinh áp dụng theo bảng 19.

Bảng 18

Loại học sinh

Diện tích ở cho mỗi học sinh (m2)

1 – Học sinh nam và nữ

2 -Cán bộ lớn tuổi đi học, thương binh

3 – Học sinh hệ sau và trên đại học, học sinh nước ngoài và học sinh năng khiếu

35-38

5

6

 

Chú thích:

1) Diện tích ở bao gồm cả diện tích để học sinh tự học

2) Đối với nhà ở của học sinh cần thiết kế giường hai tầng cho cả nam và nữ với chiều cao tầng nhà 3,3m.

3) Tuỳ theo loại trường mà tổ chức không gian cho học sinh phù hợp với yêu cầu đào tạo, sinh hoạt, mỗi phòng ở không ít hơn 2 người và không quá 8 người.

4) Khu vệ sinh bố trí theo phòng ở, tránh các khu vệ sinh công cộng

Bảng 19

Thành phần và số người

Số lượng thiết kế (chỗ)

Tắm

Rửa

Giặt

Tiểu

Vệ sinh phụ nữ

1 – Nam: 16 học sinh

2 – Nữ : 16 học sinh

: 25 học sinh

1

1

1

1

1

1

1

1

1

1

1

 

1

 

Nhà ăn học sinh

3.64. Nhà ăn trong các trường đại học thiết kế theo tiêu chuẩn thiết kế nhà ăn hiện hành.

3.65. Tổng số chỗ trong nhà ăn các trờng đại học lấy 50% số lượng học sinh tính toán (ăn cả 2 ca).

3.66. Quy mô nhà ăn ở các trường đại học có thể thiết kế từ 1000 đến 1500 chỗ và chia nhà ăn thành các phòng ăn nhỏ có số chỗ không quá 200 người.

3.67. Trong trường hợp thiết kế một số nhà ăn cho một trường hoặc một nhóm trường đại học thì một trong số các nhà ăn đó phải có cơ sở chế biến thức ăn cung cấp cho các nhà ăn khác với diện tích hợp lí cho gia công, bếp nấu ăn và hệ thống kho các loại.

3.68. Các nhà ăn của trường đại học cần bố trí thành các ngôi nhà riêng biệt và liên hệ thuận tiện với các nhà học, nhà ở.

Khoảng cách xa nhất từ nhà ăn đến các nhà ở không quá 500m.

Các nhà phục vụ học sinh

3.69. Trong khu nhà ở của học sinh có bố trí một số quầy phục vụ, thành phần và diện tích áp dụng theo bảng 20.

3.70. Chỗ để xe đạp tính cho 10% học sinh với diện tích 0,9m2/1 xe.

3.71. Thành phần và diện tích các phòng của trạm y tế áp dụng theo bảng 21.

Bảng 20

Tên quầy phục vụ

Diện tích phòng theo số lượng học sinh(m2)

1000

2000

3000

4000

5000

1

2

3

4

5

6

1- Quầy bách hóa

2 – Quầy giải khát

3 – Cắt tóc

4 – May vá quần áo

5 – Sách báo tem thư

18

16

12

6

12

24

24

12

12

12

24

24

18

12

18

36

36

18

18

18

48

48

24

24

24

Chú thích:

a) Diện tích quầy bách hóa và công nghệ phẩm kể cả chỗ bán hàng và chứa hàng.

b) Diện tích quầy giải khát bao gồm cả chỗ ngồi, nơi bán hàng, chế biến và để cốc chén.

c) Diện tích chỗ cắt tóc, may vá tính 6m2/chỗ.

Bảng 21

Tên phòng

Đơn vị tính

Diện tích (m2)

l – Phòng trạm trưởng và y bác sĩ trực

2 – Phòng khám

3 – Phòng tiêm và thủ thuật

4 – Phòng y tá hồ sơ kiêm phát thuốc

5 – Kho thuốc và dụng cụ

6 -Phòng bệnh nhân

7 – Phòng bệnh nhân nặng và cách li

8 – Phòng ăn cho bệnh nhân

1 phòng

1 phòng

1 phòng

1 phòng

1 phòng

1 giường cho 100 học sinh

Theo chú thích chỗ ngồi

18

18

18

12

12

6/1 giường

9/1 giường

1,2

 

Chú thích:

a) Trạm y tế trường đại học không thiết kế quá 30 giường bệnh nhân. Dành 1/6 – 1/5 giường cho bệnh nhân nặng và cách li, số giường này phân bổ thành phòng một hoặc hai giường.

b) Ngoài các quy định trên, khi thiết kế cần tham khảo, tiêu chuẩn thiết kế bệnh viện hiện hành.

3.72. Đối với các trường đại học xa thành phố, điểm dân cư hoặc ở thành phố, dân cư chưa có tổ chức mạng lưới khách sạn cho phép được thiết kế nhà khách, diện tích áp dụng theo bảng 22.

Bảng 22

Quy mô trường với số lượng học sinh

Số chỗ

Diện tích (m2)

l – Trường có dưới 1000 học sinh

2 -Trường có từ 1000đến 2000 học sinh

3 -Trường có từ 2000 đến 3000 học sinh

4 -Trường có từ 3000 đến 5000 học sinh

5 -Trường trên 5000 học sinh

4 – 6

6 – 8

8 – 10

10 – 12

15

24 – 36

36 – 48

48 – 60

60 – 72

90

 

3.73. Đối với các trường đại học có nữ học sinh có con nhỏ, cần kết hợp tổ chức giữ trẻ trong khu ở của cán bộ công nhân viên, trường hợp cần thiết xây dựng nhà trẻ mẫu giáo trong trường phải được cấp có thể quyền cho phép.

Nhà ở cán bộ, công nhân viên

3.74. Nhà ở và các cơ sở phục vụ sinh hoạt cho cán bộ công nhân viên, các trường đại học đều do thành phố, thị xã, thị trấn xây dựng và quản lí, nếu trường nằm trong thành phố, thị xã, thị trấn.

Chú thích: Trong trường hợp trường cách xa thành phố hoặc thành phố chưa xây dựng nhà ở kịp thời thì nhà trường có thể xây dựng và quản lí khu ở của cán bộ công nhân viên.

3.75. Việc tính toán diện tích đất xây dựng, thành phần và diện tích nhà ở , nhà trẻ, mẫu giáo, các công trình công cộng và dịch vụ cho khu gia đình theo các quy định trong tiêu chuẩn thiết kế nhà ở và tiêu chuẩn thiết kế các công trình công cộng hiện hành..

3.76. Trường hợp cần thiết, trong khu vực có thể xây dựng nhà ở tập thể cho một bộ phận cán bộ có nhiệm vụ thường trực quản lí trường. Các công trình phục vụ sinh hoạt kết hợp xây dựng với các công trình của học sinh.

4. Yêu cầu phòng cháy

4.1. Khi thiết kế các trường đại học phải tuân thủ các quy định trong tiêu chuẩn: phòng cháy và chữa cháy cho nhà và công trình. Yêu cầu thiết kế: TCVN 2622: 1978.

4.2. Trong trường hợp kết hợp 2 cầu thang ở cùng một sảnh thì một cầu thang phải có lối thoát trực tiếp với bên ngoài.

4.3. Các giảng đường, câu lạc bộ phải có ít nhất 2 lối thoát người. Các lối thoát người từ giảng đường, hội trường, câu lạc bộ không được xuyên qua các phòng khác mà phải trực tiếp ra ngoài, hoặc hành lang, vào buồng thang có lối trực tiếp ra ngoài.

4.4. Khi thiết kế giảng đường kiểu sàn bậc thang, hàng ghế đầu và hàng ghế cuối cùng bố trí ớ 2 mức sàn khác nhau, cần tính toán lối thoát ra cho 2/3 khán giả ở tầng sàn dưới và 1/3 khán giả ở tầng sàn trên.

4.5. Các ban công từ 50 chỗ trở lên trong các phòng thể thao, hội trường và phòng khán giả đồng thời các gác lửng phòng đọc thư viện phải có ít nhất 2 lối thoát người.

Các lối thoát người trên ban công không được xuyên qua các phòng thể thao, hội trường và phòng khán giả.

4.6. Kho chứa các vật liệu dễ cháy, nhiên liệu và các chất có nguy hiểm cháy nổ, độc khác không được bố trí trong các nhà chính của trường đại học. Khi thiết kế xây dựng các kho này phải bảo đảm đầy đủ những yêu cầu an toàn phòng cháy chữa cháy, phòng nổ, phòng độc đúng theo các tiêu chuẩn hiện hành.

4.7. Không được bố trí các cầu thang xoáy ốc, chiếu nghỉ ngắt đoạn, bậc thang lượn hình dẻ quạt trên đường thoát nạn, trừ những nơi cùng một lúc không tập trung quá 5 người.

4.8. Các thiết bị hoặc chịu áp lực, nhiệt độ cao không được bố trí sát các hội trường, giảng đường và những nơi thường xuyên tập trung đông người. Phải ngăn cách các thiết bị này bằng tường ngăn cháy có giới hạn chịu lửa ít nhất là 0,75 giờ.

4.9. Các trường đại học có thiết bị nồi hơi để cung cấp nhiệt cho nhà ăn, các phòng thí nghiệm và xưởng… cần theo đúng các quy định về phòng cháy, chữa cháy.

4.10. Phòng thí nghiệm tiến hành các thí nghiệm có liên quan đến cháy, nổ phải bố trí phần ngoài và tầng trên cùng của ngôi nhà.

4.11. Hội trường, câu lạc bộ , v.v… có từ 600 chỗ trở lên nhất thiết phải có hệ thống chữa cháy bên trong, lưu lượng nước cần thiết được tính toán theo tiêu chuẩn phòng cháy và chữa cháy cho nhà và công trình.

4.12. Bố trí giảng đường, hộ trường các tầng nhà áp dụng theo bảng 23.

4.13. Các ghế trong hội trường, giảng đường phải được bắt cố định vào sàn nhà.

4.14. ở các tầng nhà có bố trí hội trường, giảng đường có 300 chỗ trở lên không xây dựng hành lang cụt. Các trường hợp khác được xây dựng hành lang cụt theo định đối với nhà và công trình công cộng.

Bảng 23

Bậc chịu lửa

Số chỗ trong hội trường

Giới hạn tầng cho phép bố trí

II và III

I và II

I và II

III

III

IV

V

Không quá 500

từ 501 đến 600

lớn hơn 600

không quá 300

từ 301đến 600

không quá 300

không quá 300

Không quy định

5

3

3

2

1

1

 

Chú thích: Khi xác định giới hạn tầng cho phép bố trí đối với hội trường giảng đường dốc độ cao của sàn tính theo độ cao của tầng ghế đầu tiên.

5. Các yêu cầu về thiết bị kĩ thuật vệ sinh.

5.1. Thiết kế hệ thống cấp nước cho trường đại học phải tuân theo các tiêu chuẩn hiện hành

Chú thích:

a) Trong trường đại học cần thiết kế hệ thống cấp nước chung cho sinh hoạt, học tập.

Trường hợp cần cấp nước chữa cháy, phải thiết kế hệ thống cấp nước chung cho sinh hoạt học tập và chữa cháy.

b) Khi tính toán mạng lưới đường ống cấp nước bên trong các ngôi nhà, cần phải tính tổng lưu lượng nước tính toán lớn nhất cho nhu cầu sinh hoạt và học tập.

c) Khi cần thiết cho phép thiết kế hệ thống cấp nước nóng cục bộ cho các nhu cầu và sản xuất.

d) Đối với thiết bị công nghệ, trong quá trmh hoạt động cần làm nguội các thiết bị thì phải dự tính hệ thống cấp nước vòng quay.

5.2. Khi thiết kế hệ thống thoát nước cho trường đại học phải tuân thủ các tiêu về thoát nước hiện hành.

Chú thích:

1) Hệ thống thoát nước bên trong cho nước thải sinh hoạt và sản xuất cần thiết kế thành hệ thống chung.

2) Khối lượng và thành phần nước thải sản xuất lấy theo nhiệm vụ thiết kế công nghệ.

3) Nước thải trong các phòng thí nghiệm có chứa axít độ pH dưới 6,5 và kiềm độ pH trên 8,5 cần phải trung hoà trước khi tháo vào hệ thống thoát nước chung.

Hệ thống trung hoà nước cần được đặt trong các phòng dành riêng cho các thiết bị đó.

5.3. Những phòng chính của các ngôi nhà và công trình của trường đại học phải bảo đảm thông gió tự nhiên bằng cách mở cửa sổ ra hướng gió thịnh hành về mùa hè.

5.4. Các loại phòng sau đây phải thông gió tự nhiên, thoáng mát:

Giảng đường, hội trường, phòng học, phòng thể dục thể thao, phòng đọc trong thư viện, phòng ăn, phòng ở, phòng thí nghiệm sản sinh ra hơi và nhiệt thừa.

5.5. Chỉ được thiết kế thông gió cơ khí cho các phòng thí nghiệm có sản sinh ra hơi độc, xưởng có sản sinh ra hơi độc, hỗn hợp khí có nguy hiểm cháy nổ hoặc các xưởng có đặt lò.

Chú thích:

a) Đối với các phòng thí nghiệm có thải độc thì phải bố trí hút hơi tại chỗ bằng các tủ hút hơi. Nơi thoát hơi độc phải bố trí ở các chỗ thoáng, không ảnh hưởng tới người làm việc hay sinh hoạt.

b)  Số lần trao đổi không khí của phòng đqợc tính toán theo nồng độ cho phép của hơi độc trong phòng cháy hay theo lượng nhiệt lửa thừa toả ra.

5.6. Cho phép sử dụng quạt trần trong các phòng: hội trường, giảng đường, phòng học, phòng đọc sách thư viện, phòng ăn.

Phải có đầy đủ biện pháp chống nóng cho các loại phòng sau đây: Giảng đường, hội trường, phòng đọc sách thư viện, phòng thể dục thể thao, các phòng học, phòng vẽ kĩ thuật, phòng thiết kế, phòng vẽ mĩ thuật, phòng ăn, phòng ở, xưởng….

Chú thích: Các loại phòng kể trên đều phải có thiết kế kết cấu che nắng (ô văng hành lang,mái hắt, lôgia, ban công, các loại tấm chắn nắng).

6. Chiếu sáng tự nhiên, chiếu sáng nhân tạo kí thuật điện và thiết bị điện yếu

6.1. Thiết kế chiếu sáng tự nhiên các phòng trong trường đại học áp dụng theo tiêu chuẩn hiện hành.

Hệ số chiếu sáng tự nhiên tiêu chuẩn đối với các loại phòng thí nghiệm lấy theo độ chính xác của công việc.

Chú thích: Cho phép chỉ dùng chiếu sáng nhân tạo đối với các phòng: kho sách, phòng điện quang, phòng truyền hình, phòng ảnh.

6.2. Nếu thiết kế hành lang giữa:

a) Lấy chiếu sáng tự nhiên một đầu khi chiếu dài hành lang không quá 20m.

b) Lấy chiếu sáng tự nhiên hai đầu khi chiều dài hành lang không quá 40m.

c) Khi hành lang dài quá 40m phải thiết kế các khoang lấy ánh sáng có chiều rộng trên 3m, khoảng cách giữa các khoang hay từ khoảng ngoài cùng tới đầu hồi lấy từ 20 đến 25m.

Chú thích: Các buồng thang hở thì cũng được coi như là khoang lấy ánh sáng.

6.3. Chiếu sáng nhân tạo trong các trường đại học phải áp dụng các quy định trong tiêu chuẩn chiếu sáng nhân tạo các công trình công nghiệp, giao thông vận tải và thể dục thể thao hiện hành.

6.4. Trong các ngôi nhà và công trình của khu học tập, cần bố trí các phòng bảng điện ở từng tầng nhà, theo trục thẳng đứng với diện tích từ 8 đến 12m2

6.5. Chiếu sáng cho bảng đen trong các phòng học, giảng đường nên sử dụng bóng đèn huỳnh quang, nhưng phải có chụp tản quang, hướng ánh sáng vào bảng, không để ánh sáng chiếu vào mắt học sinh.

Chú thích: Chiều cao treo đèn, khoảng cách đèn đến bảng và góc độ chiếu của đèn cần bố trí hợp lí, bảo đảm ánh sáng phân bố đều trên toàn bộ mặt bảng và không tạo thành các tia sáng phản chiếu vào mắt học sinh.

6.6. Cấp điện áp danh định trong các trường đại học phải là 380/220V hoặc 220/127V xoay chiều 3 pha, 4 dây có 2 nguồn điện khác nhau cấp đến bảo đảm cung cấp lên tục.

Cung cấp điện cho các phòng thí nghiệm đặc biệt hoặc những động cơ lớn, được phép sử dụng điện cao áp nhưng phải có các biện pháp bảo đảm an toàn theo quy định của ngành điện lực.

Nếu những trường đại học có sử dụng dòng điện một chiều thì phải thiết kế đáp ứng yêu cầu công nghệ.

6.7. Trong các trường đại học cần chú ý đến việc bố trí các hệ thống điện yếu sau đây

a) Hệ thống điện thoại (thành phố, nội bộ, giám đốc, điều hành).

b) Hệ thống điện truyền thanh (thành phố – nội bộ).

c) Hệ thống đồng hồ điện, chuông điện tự động báo hiệu thời gian ấn định quá trình học tập.

d) Hệ thống tín hiệu bảo vệ.

e) Hệ thống thiết bị khuếch đại âm thanh trong hội trường và các giảng đường trên 150 chỗ.

f) Hệ thống truyền hình khép kín.

g) Hệ thống phiên dịch đồng bộ ra 3 – 5 thứ tiếng trong hội trường theo yêu cầu đặc biệt của luận chứng kinh tế kĩ thuật.

6.8. Đặt thiết bị điện và đường dây dẫn trong các trường đại học phải theo quy định trong các tiêu chuẩn hiện hành

Đường dây dẫn điện từ trạm biến áp đến các công trình có thể sử dụng cáp hoặc đường dây trên không tuỳ theo điều kiện kinh tế, kĩ thuật của địa phương

Đường dây dẫn trong các công trình học tập nên đặt ngầm trong tường hoặc sàn.

6.9. Chống sét cho các công trình của trường đại học cần tuân theo các quy định tiêu chuẩn hiện hành

Theo yêu cầu chống sét, các công trình của trường đại học được xếp vào cấp I thuộc công trình thường xuyên đông người.

Leave a Reply

Your email address will not be published. Required fields are marked *