Nội dung toàn văn Tiêu chuẩn xây dựng TCVN 4455:1987 về hệ thống tài liệu thiết kế xây dựng – quy tắc ghi kích thước, chữ tiêu đề, các yêu cầu kỹ thuật và biểu bảng trên bản vẽ
TIÊU CHUẨN VIỆT NAM
TCVN 4455 : 1987
HỆ THỐNG TÀI LIỆU THIẾT KẾ XÂY DỰNG – QUY TẮC GHI KÍCH THƯỚC, CHỮ TIÊU ĐỀ, CÁC YÊU CẦU KĨ THUẬT VÀ BIỂU BẢNG TRÊN BẢN VẼ.
System of ducuments for building design – Rules for demensioning, heading technical requirements and tables on drawings.
Tiêu chuẩn này quy định quy tắc ghi kích thước, chữ tiêu đề, các yêu cầu kỹ thuật và biểu bảng trên bản vẽ để lập tài liệu thiết kế nhà, công trình thuộc tất cả các ngành kinh tế quốc dân.
1. Quy tắc ghi kích thước
1.1. Khi ghi kích thước và kẻ các đường dóng, đường ghi kích thước ngoài các quy định trong tiêu chuẩn này, phải tuân theo tiêu chuẩn: “Hệ thống nhất các tài liệu thiết kế – Quy tắc ghi kích thước”.
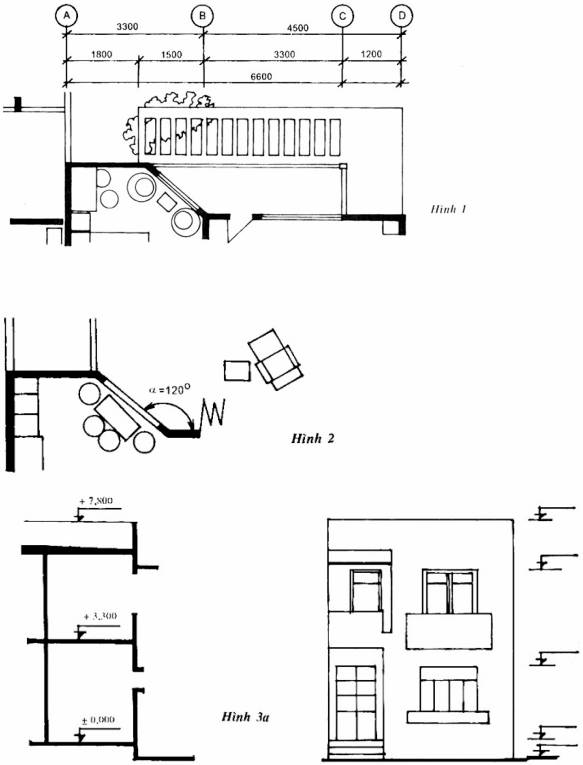
1.2. Đường ghi kích thước phải đặt cách mép vật thể ít nhất 10mm và đầu mép phải kéo dài quá các đường dóng biên từ 1 đến 3mm (hình 1).
Tại điểm giao nhau giữa đường ghi kích thước với các đường dóng kích thước phải dùng nét ngắt có chiều dài từ 2 đến 4 mm nghiêng 45o về bên phải đường dóng để giới hạn phần ghi kích thước.
Các mũi tên được dùng để giới hạn phần ghi kích thước trong những trường hợp sau: Ghi kích thước đường kính, bán kính và kích thước góc.
Ghi kích thước bán kính góc lượn.
Ghi kích thước tính từ một điểm nào đó đến một góc quy ước (hình 2).
Kích thước của mũi tên để giới hạn phần ghi kích thước phải theo quy định của tiêu chuẩn: “Hệ thống thống nhất các tài liệu thiết kế. Quy tắc ghi kích thước”.
1.3. Cao độ của mặt sàn, của các kết cấu so với mặt sàn phải ghi theo đơn vị mét với độ chính xác 3 số lẻ sau dấu phẩy và ghi trên mũi tên kí hiệu.
Kí hiệu cao độ là mũi tên hình tam giác đều, tô nửa đen nửa trắng, độ cao của tam giác bằng độ cao của chữ số ghi cao độ.
Cao độ ± 0,000 được quy ước là mặt sàn tầng 1.
Cao độ của các kết cấu cao hơn ± 0,000 là cao độ dương (+) Cao độ của các kết cấu thấp hơn ± 0,000 là cao độ âm (-)
Phải ghi dấu âm (-) trước chữ số cao độ âm, đối với chỉ số cao độ dương (+) cho phép không ghi dấu (+).
Thí dụ:

1.3.1. Cao độ trên mặt cắt và mặt hiện, mặt đứng ghi theo đường dóng từ các kết cấu và các bộ phận của nhà, công trình (hình 3a). Cao độ trên mặt bằng ghi ngay tại cao độ cần ghi (hình 3b) hoặc dẫn ra ngoài hình vẽ như quy định trong điều 1.3.2. dưới đây.
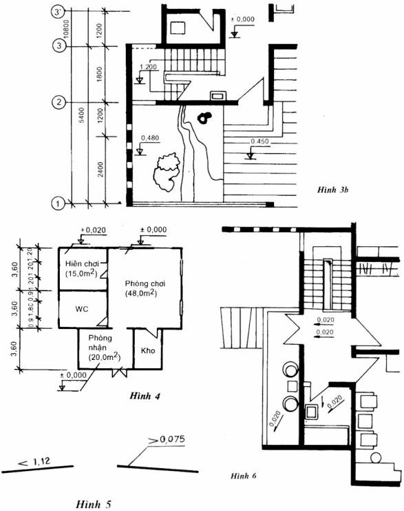
1.3.2. Trường hợp mật độ hình vẽ quá dày đặc, tỉ lệ hình vẽ nhỏ, cho phép ghi chữ số chỉ cao độ trên đường dóng kéo từ vị trí cần ghi cao độ ra ngoài (hình 4)
1.4. Trên bản vẽ, các trị số góc nghiêng phải ghi theo từng góc nghiêng và viết bằng phân số. Trường hợp cần thiết cho phép ghi trị số góc nghiêng bằng số thập phân với độ chính xác 3 số lẻ sau dấy phẩy.
1.4.1. Trên mặt cắt, mặt hiện, trị số góc nghiêng phải ghi kèm theo kí hiệu góc nghiêng:Thí dụ: 0,002.
Kí hiệu góc nghiêng có thể ghi ngay sát trên chi tiết nghiêng của hình hoặc trên đường dóng kéo từ phần chi tiết nghiêng ra ngoài (xem hình 5)
1.4.2. Hướng dốc và độ dốc trên mặt bằng được thể hiện bằng mũi tên ghi trị số dốc bên trên (hình 6).
1.5. Trên bản vẽ tổng mặt bằng cao độ của các kết cấu công trình và hướng dốc, độ dốc được ghi theo quy định đối với mặt bằng trong các điều 1.3; 1.3.1; 1.3.2; 1.4; 1.4.2 của tiêu chuẩn này.
2. Quy tắc ghi chữ tiêu đề, các yêu cầu kĩ thuật và biểu bảng
2.1. Tất cả các tờ của bộ bản vẽ thi công (trong khung tên) phải ghi cùng một kí hiệu hồ sơ.Nếu các chi tiết kết cấu được thể hiện trên nhiều tờ thì tất cả các tờ nói trên phải ghi cùng một kí hiệu.
Phải dùng các thuật ngữ đã được công nhận để ghi tên các chi tiết kết cấu, hình vẽ v.v… nếu tên gọi của các chi tiết kết cấu gồm nhiều từ thì danh từ phải ghi ở vị trí đầu tiên, thí dụ: “dầm cầu thang”
Tên gọi các chi tiết kết cấu ghi trong khung tên phải kèm theo kí hiệu quy ước và số thứ tự theo một hệ thống thống nhất cho toàn bộ bản vẽ.
Thí dụ:
“Dầm cầu thang DT (DT1… DT4)” Kí hiệu quy ước thường được lấy từ các chữ cái đầu tiên của tên các chi tiết kết cấu. Thí dụ “Panen P1,P2…”
2.2. Phải ghi số thứ tự các mặt cắt của các nhà công trình bằng chữ số ả Rập theo một hệ thống thống nhất trong toàn bộ các tờ của bản vẽ thi công. Thí dụ: “Mặt cắt 1 -1, mặt cắt 2-2 v.v…”
Chỉ được phép ghi số thứ tự mặt cắt không theo hệ thống thống nhất trong toàn bộ các tờ của bản vẽ thi công khi từng phần riêng của công trình, nhà được thể hiện gọn trong một tờ hoặc một nhóm các tờ.
Các mặt cắt cũng được phép kí hiệu bằng chữ cái tiếng Việt viết hoa. Thí dụ: “Mặt cắt A – A…”
2.3. Trên hình vẽ mặt bằng phải có dấu nét cắt. Dấu nét cắt có độ đậm 0,5 mm và có mũi tên để chỉ hướng nhìn, cánh mũi tên từ 6 đến 10 mm.
Đối với các mặt cắt phức tạp (chuyển hướng…) dấu nét cắt phải đổi vị trí tại điểm chuyển hướng.
2.4. Tên gọi các mặt bằng của nhà và công trình phải ghi rõ độ cao tầng, số thứ tự của tầng hoặc kí hiệu mặt cắt đi qua để thể hiện mặt bằng. Thí dụ “mặt bằng cao độ ± 0,000”; “Mặt bằng tầng 2″; ” Mặt bằng tầng 3 – Cho phép ghi tên gọi mặt bằng theo công dụng của tầng nhà, công trình. Thí dụ “Mặt bằng tầng kĩ thuật”
Tên gọi các mặt cắt, mặt hiện, hình cắt phải ghi số thứ tự bằng chữ số ả Rập hoặc bằng chữ cái tiếng Việt viết hoa như quy định ở điều 22 của tiêu chuẩn này.
Tên gọi các mặt đứng, các đoạn mặt bằng và đoạn mặt đứng phải ghi rõ các trục giới hạn.
Thí dụ :
“Mặt đứng trục 1 – 12″; ” Đoạn mặt bằng trục 9 – 7″; “Đoạn mặt đứng trục 9 – 7”.
2.5. Cách ghi các kết cấu nhiều lớp theo chỉ dẫn trên hình 7.
2.6. Tên gọi của hình vẽ và tên gọi các cột trong biểu bảng phải ghi như sau:
Đối với hình vẽ- ghi ngay dưới phần thể hiện.
Đối với biểu bảng- ghi ngay trên đầu các cột.
Vị trí biểu bảng nên đặt ở góc bên phải của bản vẽ, giáp cạnh khung tên.
2.7. Trường hợp trong bản vẽ chỉ có một hình vẽ hoặc một biểu bảng thì tên gọi của hình vẽ hay của biểu bảng được ghi ngay trên khung tên bản vẽ.
2.8. Trên sơ đồ bố trí kết cấu của nhà, công trình phải ghi đầy đủ các kí hiệu quy ước cho mỗi loại cấu kiện.
Các kí hiệu quy ước được viết tắt bằng chữ cái đầu tiên của tên gọi cấu kiện và có ghi thêm số thứ tự cần thiết. Thí dụ “Dầm: D1,D2…”.
2.9. Trên sơ đồ bố trí kết cấu, các cấu kiện giống nhau nếu bố trí liên tiếp thì kí hiệu quy ước được ghi chung trên một đường dóng cắt qua các đường dẫn từ các cấu kiện ra (hình 8).
2.10. Kí hiệu các kết cấu và thiết bị công nghệ, thiết bị kĩ thuật phải ghi trên đường dóng kéo từ các kết cấu và các thiết bị ra ngoài (hình vẽ 8a).
Cho phép ghi kí hiệu các kết cấu trên một đường dóng chung, ghi trực tiếp kĩ thuật bên cạnh các kết cấu.
Chiều cao các chữ ghi kí hiệu phải lớn hơn chiều cao của chữ số ghi kích thước từ 1,5 đến 2 lần.
2.11. Trên hình vẽ mặt bằng, mặt đứng, mặt cắt, những vị trí cần vẽ chi tiết phải bao kín bằng một vòng tròn nét liền và mảnh. Độ lớn của vòng tròn tùy theo phần hình vẽ cần thể hiện chi tiết (hình 9).
Trường hợp cần vẽ chi tiết một đoạn mặt đứng, đoạn mặt cắt hay đoạn mặt bằng cho phép dùng dấu móc đơn để giới hạn phần cần vẽ chi tiết (hình 9b) thay cho kí hiệu đường tròn nét liền mảnh. Phía dưới dấu móc -ghi kí hiệu của bản vẽ chi tiết.
2.12. Kí hiệu của chi tiết là vòng tròn có đường kính 12mm và đặt tại đầu mút đường dóng từ chi tiết ra ngoài (hình 10).
Vòng tròn chia làm 2 nửa, nửa trên ghi số thứ tự của chi tiết, nửa dưới ghi kí hiệu hay số liệu của bản vẽ thể hiện chi tiết (hình 10).
Trường hợp hình vẽ và phần chi tiết cần thể hiện được bố trí trên cùng một tờ, kí hiệu chi tiết dùng nét liền gạch ngang đậm trong vòng tròn (hình 10a).
Đối với các chi tiết đã có trong các hồ sơ thiết kế điển hình thì phải ghi rõ kí hiệu hay xê ri thiết kế điển hình nói trên vào nửa dưới của vòng tròn kí hiệu (hình 10b).





