Tiêu chuẩn Việt Nam TCVN 6078:1995 về Bản vẽ nhà và công trình xây dựng – Bản vẽ lắp ghép các kết cấu chế sẵn đã được thay thế bởi Tiêu chuẩn quốc gia TCVN 6078:2012 (ISO 4172:1991) về Bản vẽ kỹ thuật – Bản vẽ xây dựng – Bản vẽ lắp ghép kết cấu chế tạo sẵn .
Nội dung toàn văn Tiêu chuẩn Việt Nam TCVN 6078:1995 về Bản vẽ nhà và công trình xây dựng – Bản vẽ lắp ghép các kết cấu chế sẵn
TIÊU CHUẨN VIỆT NAM
TCVN 6078-1995
BẢN VẼ NHÀ VÀ CÔNG TRÌNH XÂY DỰNG -BẢN VẼ LẮP GHÉP CÁC KẾT CẤU CHẾ SẴN
1. Phạm vi và lĩnh vực áp dụng
Tiêu chuẩn này quy định các nguyên tắc chung để lập các bản vẽ thi công dành cho lĩnh vực lắp ghép kết cấu chế sẵn trong công tác xây dựng và xây dựng nhà ở.
2. Tiêu chuẩn trích dẫn
– TCVN 6082 : 1995 (ISO 1046) Bản vẽ kiến trúc và xây dựng. Từ vựng.
– TCVN 5899 : 1995 (ISO 4157/1) Bản vẽ xây dựng – Phần I: Thiết kế nhà và các bộ phận của nhà.
– ISO 128 – 1982. Bản vẽ kĩ thuật. Nguyên tắc chung để thể hiện.
– ISO 129 -1985. Bản vẽ kĩ thuật. Thể hiện kích thước, nguyên tắc chung, định nghĩa, phương phápthể hiện và những chú dẫn đặc biệt.
– I SO 2444 – Mối liên kết trong xây dựng – Từ vựng.
– ISO 2445 – 1972. Mối liên kết trong xây dựng – Nguyên tắc cơ bản để thiết kế.
– ISO 2553 – 1984. Hàn – Kí hiệu thể hiện trên bản vẽ.
– ISO 4068 – 1978. Bản vẽ nhà và công trình dân dụng – Đường trục ISO 5457 – 1980. Bản vẽ kĩ thuật- Kích thước và bố trí thể hiện
– ISO 6284 – 1985. Dung sai trong xây dựng – Chú dẫn dung sai trên bản vẽ xây dựng.
– ISO 7200 – 1984. Bản vẽ kĩ thuật – Khung tên
– ISO 7437 -1990. Bản vẽ kĩ thuật -Bản vẽ xây dựng -Nguyên tắc chung để lập bản vẽ thi công các kết cấu chế sẵn.
– ISO 8048 – 1984. Bản vẽ kĩ thuật – Bản vẽ xây dựng – Thể hiện mặt nhìn, mặt cắt và tiết diện.
3. Định nghĩa
3.1. Kết cấu chế sẵn: Kết cấu được lắp ráp bằng các cấu kiện chế sẵn.
3.2. Cấu kiện chế sẵn: Bộ phận của kết cấu chế sẵn được chuyển đến công trường xây dựng làm một phần của kết cấu chế sẵn.
4. Hồ sơ
4.1. Phần chung
Hồ sơ kết cấu chế sẵn gồm:
a) Những bản vẽ định vị (Bản vẽ bố trí chung)
b) Những bản vẽ chi tiết
c) Những bản danh mục cấu kiện (và những bản vẽ bố trí các cấu kiện)
d) Qui định kĩ thuật bổ sung và các danh sách vật liệu phụ, những chỉ dẫn riêng về bốc dỡ, vận chuyển
Những tài liệu này phải được chuẩn bị theo đúng tiêu chuẩn thích hợp đã cho ở mục 2.
4.2. Những bản vẽ định vị
4.2.1. Bản vẽ định vị là biểu thị đơn giản hóa một kết cấu chế sẵn và vị trí các cấu kiện đã được kí hiệu. Các cấu kiện thường được trình bày bằng đoạn đường nét rất đậm (xem hình 1, 3 và 4) hoặc bằng đường bao đơn giản Đối với mỗi nhóm các cấu kiện chế sẵn liên hệ bằng những điều kiện xây dựng giống nhau, các bản vẽ định vị phải được ghi theo trình tự quá trình lắp ghép. Nếu cần thiết, sơ đồ tính toán hoặc sơ đồ tải trọng phải được trình bày trên bản vẽ vị trí, nó sẽ cho biết các giới hạn tải trọng, trình tự xây lắp và các chi tiết khác liên quan đến lắp dựng như mối nối liên kết và các công trình tạm để thi công, và sẽ tham khảo những tài liệu có thông tin như vậy.
Những bản vẽ định vị kết cấu chế sẵn phải thể hiện những điều sau:
a) Bố trí trục lưới tọa độ của công trình.
b) Nhãn hiệu các cấu kiện.
c) Quan hệ của các cấu kiện với bố trí trục lưới tọa độ.
d) Cao độ riêng của các cấu kiện.
e) Chỉ dẫn tham khảo các bản vẽ chi tiết.
Cấu kiện phải được thể hiện ở các mặt bằng (hoặc) mặt cắt hoặc mặt nhìn, như đã minh họa trên các hình từ 1 đến 6. Các bản vẽ định vị cho các kết cấu không gian 3 chiều phức tạp phải được thực hiện ở các mặt phẳng khác Các tỉ lệ thích hợp cho các bản vẽ định vị là 1 : 50, 1 : 100; và 1 : 200.
4.2.2. Trên các bản vẽ móng chế sẵn và các kết cấu dưới đất khác cũng nên thể hiện
a) Đường bao đáy móng.
b) Lớp đệm móng (nét đứt quãng).
c) Các kích thước.
d) Quan hệ của chúng với sơ đồ bố trí các trục.
e) Các dầm móng.
f) Các tường tầng hầm.
Các bản vẽ vị trí móng và các kết cấu dưới đất khác sẽ được trình bày với giả thiết rằng nền đất là trong suốt.
4.2.3. Trong phần tên của bản vẽ định vị sàn chế sẵn, phải nêu được số thứ tự các sàn hoặc cao trình của sàn trung gian hoặc chiếu nghỉ cầu thang, phù hợp với TCVN 5899 : 1995 (ISO 4157/1).
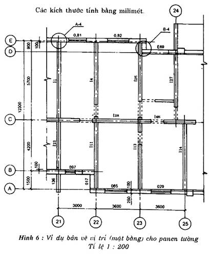
4.2.4. Trong khi phác thảo các bản vẽ định vị cho các kết cấu tường panen chế sẵn cấu kiện phải được thể hiện bằng đường bao nét đậm (xem hình 6).
4.3. Bản vẽ chi tiết.
4.3.1. Các chi tiết có thể được thể hiện ở các bản vẽ riêng hoặc gộp cả như thông tin bổ sung trên bản vẽ định vị. Các tỉ lệ thích hợp cho các chi tiết là 1 : 20; 1 : 10; và 1 : 5 Các chi tiết phải được chú thích chính xác trên bản vẽ định vị tương ứng. Các chi tiết phải được ghi vào cùng thứ tự của chỉ dẫn của mặt cắt tương ứng trên bản vẽ.
4.3.2. Thể hiện mối liên kết phải là một phần chính trong bản vẽ chi tiết. Mối liên kết thường được thể hiện trên một bản vẽ riêng.
– Sự thể hiện mối liên kết phản ánh mối quan hệ giữa các kết cấu chế sẵn tại chỗ lắp ghép và những chỗ cần thể hiện:
a) Mạng lưới trục lắp đặt.
b) Kích thước mối liên kết kèm theo chú giải cần thiết về dung sai.
c) Kí hiệu quy ước của cấu kiện thể hiện trên bản vẽ định vị và nếu cần thiết phải có dấu hiệu kèm theo xác định bề mặt lắp ghép của mối liên kết.
d) Phương pháp nối như hàn, nối bằng bulông hoặc sử dụng các móc cốt thép để nối trên công trường.
e) Những bộ phận cấu thành và các chi tiết nối bao gồm cả những vật liệu sử dụng.
– Hai mối liên kết giống nhau phải được thể hiện như hai mối liên kết độc lập riêng biệt và có kí hiệu quy ước riêng.
– Nếu cần thiết để phân biệt giữa hình vẽ minh họa các liên kết yêu cầu lắp và ghép những liên kết yêu cầu miêu tả sự hoàn thiện mối nối (như chống ăn mòn, giãn nở nhiệt v.v…) hoặc giữa những liên kết đệm, liên kết gắn và liên kết mở cần phải sử dụng những kí hiệu quy ước riêng biệt hoặc kí hiệu có giải thích trên bản vẽ.
Ví dụ về thể hiện hình vẽ của mối liên kết cho trong hình 7 và 8.
Chú thích:
ở những trường hợp cần thiết hình vẽ của mối liên kết phải có lời chú giải kèm theo như trong các trường hợp chú giải quá trình ghép, lắp ráp và chống ăn mòn.
4.4. Các danh mục cấu kiện
4.4.1. Bảng danh mục cấu kiện là tài liệu liệt kê các bộ phận của kết cấu chế sẵn.
4.4.2. Bảng danh mục cấu kiện sẽ bao gồm thông tin theo thứ tự liệt kê dưới đây
a) Kí hiệu duy nhất chỉ cấu kiện
b) Đặt tên cấu kiện
c) Số lượng của các cấu kiện
4.4.3. Bảng danh mục cấu kiện cũng phải bao gồm thông tin sau và nếu như vậy, theo thứ tự liệt kê dưới
a) Khối lượng, tính bằng kilôgam hoặc tấn
b) Các kích thước.
c) Tổng khối lượng, tính bằng kilôgam hoặc tấn.
d) Các tài liệu tham khảo đặc biệt
e) Nhật xét
Nếu bảng danh mục cấu kiện được chuẩn bị trên một vài tờ riêng, mỗi tờ phải có khung tên đặt phía dưới bảng danh mục.
5. Đặt tên các cấu kiện chế sẵn
5.1. Trên bản vẽ định vị các cấu kiện chế sẵn phải được biểu thị bằng kí hiệu quy ước. Các cấu kiện giống nhau phải có kí hiệu quy ước như nhau. Các cấu kiện vận chuyển thủ công phải được chỉ rõ bằng kí hiệu độc lập. Kí hiệu quy ước của các cấu kiện trên bản vẽ định vị và bản vẽ chi tiết phải ghi ngay liền phần hình vẽ của cấu kiện (xem hình 9a và 9b hoặc với đường dóng, xem hình 9c). Các kí hiệu quy ước cho trong các hình vẽ chỉ là các ví dụ.
Chú thích:
Những hình vẽ từ 1 đến 10 thuộc một kết cấu điển hình đơn giản và chỉ sử dụng với mục đích minh họa.












