Nội dung toàn văn Tiêu chuẩn Việt Nam TCVN 8298:2009 về công trình thủy lợi – yêu cầu kỹ thuật trong chế tạo và lắp ráp thiết bị cơ khí, kết cấu thép
TIÊU CHUẨN VIỆT NAM
TCVN 8298:2009
CÔNG TRÌNH THỦY LỢI – YÊU CẦU KỸ THUẬT TRONG CHẾ TẠO VÀ LẮP RÁP THIẾT BỊ CƠ KHÍ, KẾT CẤU THÉP
Hydraulics Structures – Technical requirements for manufacturing and installing mechanical equipment, steel structures
1. Phạm vi áp dụng
1.1 Tiêu chuẩn này quy định các yêu cầu kỹ thuật cơ bản về chế tạo và lắp ráp, nghiệm thu thiết bị cơ khí và kết cấu thép của công trình thủy lợi, thuỷ điện bao gồm các loại máy đóng mở cửa van, các loại cửa van, lưới chắn rác, các đường ống dẫn nước và một số thiết bị chuyên dùng khác được sử dụng trên các công trình thủy lợi, thủy điện, giao thông, cải tạo môi trường.
1.2 Tiêu chuẩn này áp dụng cho các kết cấu liên kết bằng hàn, bu lông và đinh tán, được chế tạo từ thép các bon và thép hợp kim thấp thường được sử dụng để chế tạo cửa van, phải sửa chữa và các kết cấu cơ khí thuỷ công.
1.3 Tiêu chuẩn này cũng áp dụng trong việc chế tạo các bộ phận truyền động bằng bánh răng, đai, vít – đai ốc, bánh vít – trục vít, thanh răng – bánh răng.
1.3 Tiêu chuẩn này không áp dụng trong việc chế tạo xi lanh thủy lực và các bộ phận truyền động thủy lực cao áp.
CHÚ THÍCH: Xem thêm một số thông tin tại Phụ lục B, C, D, E.
2. Thuật ngữ và định nghĩa
2.1 Hàn tay (Electric arc welder)
Hàn hồ quang với điện cực kim loại nóng chảy (que hàn). Trong quá trình hàn, que hàn làm nhiệm vụ gây hồ quang hàn, đồng thời bổ sung kim loại cho mối hàn. Việc gây hồ quang và dịch chuyển que hàn được thực hiện bằng tay.
2.2 Hàn hơi (oxyacetylene welding)
Hàn tay, trong đó kim loại chỗ nối và que hàn được nung chảy bằng ngọn lửa của hỗn hợp khí cháy (như axetilen) với oxi, sau đó kim loại đông đặc thành mối hàn. Hỗn hợp khí cháy được phụt ra qua mỏ hàn và được đốt cháy thành ngọn lửa hàn ngoài mối hàn.
Hàn hơi còn dùng để nung chảy hợp kim có độ bền cao trong công nghệ sửa chữa hoặc để cắt phôi thép và thép tấm.
2.3 Hàn tự động (Automatic welding)
Hàn hồ quang mà trong đó việc chuyển động của dây hàn và hồ quang được thực hiện tự động trên máy, kim loại nóng chảy được bảo vệ không bị ô xy hoá bởi hồ quang được ngập trong lớp thuốc hoặc trong vùng khí bảo vệ.
2.4 Hàn nửa tự động (Semi-automatic welding)
Hàn hồ quang mà trong đó việc chuyển động của dây hàn được thực hiện tự động trên máy, còn dịch chuyển hồ quang được thực hiện bằng tay, kim loại nóng chảy được bảo vệ không bị ô xy hoá bởi hồ quang được ngập trong lớp thuốc hoặc trong vùng khí bảo vệ.
2.5 Gia công kết cấu thép (to manufacture steel structures)
Quá trình công nghệ được thực hiện bằng tay kết hợp với máy móc thiết bị để chế tạo ra sản phẩm bằng các liên kết hàn, bu lông, đinh tán theo bản vẽ thiết kế được duyệt.
2.6 Gia công cơ khí (to manufacture mechanics)
Các thao tác của người và máy công cụ nhằm tạo ra các chi tiết có kích thước, hình dáng theo yêu cầu bản vẽ thiết kế được duyệt.
2.7 Quy trình công nghệ (Technological process)
Thứ tự gia công hay lắp ráp các bộ phận máy và kết cấu thép nhằm bảo đảm độ chính xác cao nhất theo thiết kế.
2.8 Đồ gá (Fixture)
Bộ phận dùng để giữ ổn định, chống biến dạng và sai số cho bộ phận máy và kết cấu thép trong quá trình gia công.
2.9 Thép các bon (Carbon steel)
Một hợp kim có hai thành phần chính là sắt và các bon. Trong thành phần của thép các bon có chứa một hàm lượng rất nhỏ các nguyên tố đồng, mangan và silic nhưng không chứa các nguyên tố kim loại hiếm như crom, coban, niôbi, molipden, niken, titan, vonfram, vanadi, zieconi…
2.10 Thép hợp kim thấp (Low-alloy steel)
Thép có hàm lượng các bon trung bình. Trong thành phần của thép có chứa hàm lượng nhỏ một số nguyên tố kim loại khác như đồng, mangan, silic kể cả kim loại hiếm như crom, coban, molipden, niken, titan v.v…
3. Các quy định chung
3.1 Các kết cấu cơ khí và kết cấu thép phải được gia công và lắp ráp theo đúng hồ sơ thiết kế được cấp có thẩm quyền phê duyệt.
3.2 Khi chế tạo các bộ phận cơ khí và kết cấu thép, nhà chế tạo phải lập quy trình công nghệ sản xuất phù hợp điều kiện máy móc cụ thể, trình độ tay nghề công nhân của đơn vị mình, nhằm đảm bảo chất lượng sản phẩm, thoả mãn yêu cầu kỹ thuật của thiết kế và các quy định chung của tiêu chuẩn này.
3.3 Vật liệu dùng chế tạo phải có nhãn mác đúng với đồ án thiết kế, có xuất xứ rõ ràng, đủ hồ sơ thí nghiệm về cơ – lý – tính đi kèm. Cho phép sử dụng vật liệu khác với đồ án thiết kế nhưng có các chỉ tiêu cơ – lý – tính tương đương và được tư vấn thiết kế đồng ý.
3.4 Việc kiểm tra chất lượng từng công đoạn trong quá trình chế tạo và lắp ráp phải tuân thủ theo tiêu chuẩn này và quy trình công nghệ đã được lựa chọn, phê duyêt và ghi đầy đủ vào biểu mẫu nghiệm thu theo quy định hiện hành.
3.5 Khi xuất xưởng, nhà sản xuất phải cung cấp cho đơn vị lắp đặt toàn bộ sản phẩm thép cũng như thiết bị đóng mở các tài liệu sau:
a) Sơ đồ và trình tự lắp đặt các bộ phận kết cấu thép và thiết bị;
b) Các bản vẽ phục vụ lắp đặt;
c) Hướng dẫn sử dụng;
d) Các văn bản và bản vẽ thay đổi kỹ thuật (nếu có), các văn bản, biên bản kiểm tra kỹ thuật tại nhà máy;
e) Biên bản kiểm tra, nghiệm thu chất lượng sản phẩm.
3.6 Đối với các kết cấu cụ thể, ngoài các quy định chung của tiêu chẩn này còn phải đạt được các yêu cầu kỹ thuật riêng trong từng bản vẽ thiết kế (nếu có).
3.7 Việc tổ chức, bố trí lao động tại xưởng gia công phải hợp lý, khoa học, tuân thủ đầy đủ các quy tắc an toàn lao động cho công nhân, máy móc thiết bị và bảo đảm vệ sinh, chống ô nhiễm môi trường, chống cháy nổ theo quy định hiện hành.
4. Vật liệu
4.1 Khi sử dụng vật liệu để gia công các bộ phận chịu lực chính của kết cấu thép như dầm chính, dầm phụ, càng, bản mặt và các gối đỡ, trục, bánh răng, khớp nối, vít me… đều phải có nhãn mác, chứng chỉ của nhà sản xuất, nguồn gốc xuất xứ rõ ràng. Nếu chưa rõ, phải lấy mẫu để kiểm tra tại các phòng thí nghiệm hợp chuẩn. Vật liệu được sử dụng phải tuân thủ đúng đồ án thiết kế.
4.2 Vật liệu thép để gia công chế tạo phải được phân loại chất lượng, ghi nhãn mác đầy đủ, đánh dấu và sắp xếp theo chủng loại để tiện sử dụng, tránh nhầm lẫn. Thép được xếp thành ô chắc chắn, hoặc trên giá đỡ có mái che, dễ lấy. Trường hợp để ngoài trời thì phải xếp nghiêng dễ thoát nước. Khi xếp các tấm thép phải kê lót chống võng và tránh nước đọng.
4.3 Trước khi sử dụng, thép phải được nắn thẳng, phẳng và làm sạch gỉ, dầu mỡ.
4.4 Khi vận chuyển thép phải gá buộc để thép không bị biến dạng, không bị mòn xước.
4.5 Phôi đúc từ gang hay thép phải có nhãn mác, xuất xứ sản xuất, chứng chỉ chất lượng về thành phần hóa học, tính chất cơ lý, không có khuyết tật quá yêu cầu cho phép.
4.6 Que hàn sử dụng phải bảo đảm chất lượng, phải kiểm tra để bảo đảm các chỉ tiêu phù hợp với loại thép hàn và bản vẽ thiết kế, đảm bảo tính chất cơ lý và độ bền của mối hàn, quy định tại điều A.1 của Phụ lục A.
4.7 Que hàn và thuốc hàn phải bảo quản nơi khô ráo, xếp theo lô và theo số hiệu, phải sấy khô theo chế độ thích hợp (từ 150 oC đến 250 0C, khi lấy ở tủ sấy ra sử dụng chỉ với số lượng đủ dùng trong một ca cho thép các bon và trong hai giờ cho thép hợp kim thấp trong trường hợp độ ẩm môi trường lớn hơn 75 %).
4.8 Que hàn bị tróc vỏ, dây hàn rỉ bẩn, thuốc hàn bị hỏng tuyệt đối không được sử dụng.
4.9 Thép gia công cơ khí phải bảo đảm đúng chủng loại ghi trong bản vẽ, phải bảo đảm tính chất xử lý bề mặt phù hợp khả năng chịu tải khi làm việc của cơ cấu máy. Trong trường hợp không có nhãn mác nhất thiết không được sử dụng (điều A.2 của Phụ lục A).
4.10 Vật liệu sơn phủ, bảo vệ bề mặt làm việc và tiếp xúc môi trường phải được lựa chọn theo yêu cầu bản vẽ thiết kế. Chất lượng của vật liệu sơn phủ phải được ghi đầy đủ nhãn mác, hạn sử dụng, tính chất hoá lý rõ ràng. Không sử dụng các loại sơn phủ tự pha chế chưa được công nhận hay loại sơn phủ không rõ nguồn gốc.
4.11 Vật liệu gioăng chắn nước, chặn dầu mỡ phải được sản xuất tại cơ sở chuyên ngành có chứng nhận hợp chuẩn, có chứng chỉ về các chỉ tiêu cơ lí, hoá học bảo đảm khả năng làm việc ở môi trường khắc nghiệt.
5. Gia công cơ khí
5.1 Yêu cầu chung
5.1.1 Vật liệu dùng chế tạo các chi tiết phải đúng chủng loại và kích thước phôi có tính tới lượng dư gia công theo bản vẽ thiết kế đã duyệt.
5.1.2 Các phôi thép phải cắt bằng máy cắt, máy cưa; trường hợp ngoại lệ có thể cắt bằng khí ôxy – axetilen. Không được cắt thép bằng que hàn .
5.1.3 Dung sai chiều dài, chiều rộng cho phép khi cắt phôi quy định tại điều A.3 Phụ lục A
5.1.4 Phôi thép sau khi cắt phải được làm sạch không còn ba via, xỉ, không để cục nổi gồ ghề quá 1mm trên bề mặt và không có vết rạn nứt.
5.2 Yêu cầu chất lượng phôi đúc bằng gang hoặc thép sử dụng để gia công chế tạo
5.2.1 Khi sử dụng phôi đúc bằng gang hoặc thép, phải bảo đảm chất lượng phôi đúc và bảo đảm kích thước phôi có tính đến độ dư gia công phù hợp yêu cầu bản vẽ thiết kế theo tiêu chuẩn hiện hành.
Cho phép có các khuyết tật nếu chiều sâu khuyết tật không lớn hơn 10 % chiều dày phôi đúc.
5.2.2 Các trường hợp sau đây được hàn vá khuyết tật nếu không ảnh hưởng đến độ bền sản phẩm :
a) Trên các bề mặt không gia công cho phép các vết rỗ riêng, rỗ tổ ong, rỗ cát có diện tích dưới 10 cm2 và chiều sâu vết rỗ không lớn hơn 1/4 chiều dày phôi đúc và diện tích vết rỗ không quá 15 % bề mặt phôi đúc;
b) Trên các mặt phẳng gia công nhưng không phải mặt tựa cho phép các vết rỗ riêng, rỗ tổ ong, rỗ cát có diện tích dưới 5 cm2 và chiều sâu vết rỗ không lớn hơn 1/10 chiều dày thành tại vị trí đó và diện tích vết rỗ không quá 5 % bề mặt gia công;
c) Trên bề mặt tựa được gia công: Các vết rỗ riêng, rỗ tổ ong, rỗ cát có diện tích dưới 2 cm2 và chiều sâu vết rỗ không lớn hơn 1/10 chiều dày phôi đúc và tổng diện tích vết rỗ không quá 3 % bề mặt tựa;
d) Trên các bánh răng thép của cơ cấu nâng: Các vết rỗ có chiều sâu không lớn hơn 10 % chiều dày răng tại vị trí khuyết tật và tổng diện tích khuyết tật nhỏ hơn 10 % diện tích răng và tổng các răng bị khuyết tật không không lớn hơn 15 % tổng số răng. Độ cứng của chỗ đã hàn trên răng so với bề mặt làm việc không được lớn hơn 10 % độ cứng của kim loại chính. Chỉ được phép hàn vá các răng khi đã được sự đồng ý của đơn vị thiết kế bằng văn bản;
e) Trên bề mặt lăn và mayơ của bánh xe chế tạo bằng thép đúc không cho phép có vết nứt. Khi có khuyết tật sau đây, sau khi xử lý không ảnh hưởng đến tính năng sử dụng thì được hàn đắp:
1) Trên bề mặt lăn có vết rỗ không lớn hơn 3 cm2, độ sâu không lớn hơn 1/10 độ dày thành bánh xe nơi có khuyết tật (nhưng không lớn hơn 10 mm), đồng thời trên bề mặt nằm ngang hoặc trên diện tích 100 cm2 không quá 1 điểm khuyết tật;
2) Mặt gia công nhưng không chịu nén của bánh xe có vết rỗ, diện tích khuyết tật không lớn hơn 5 cm2, độ sâu không lớn hơn 1/5 độ dày nơi bị khuyết tật và số khuyết tật không lớn hơn 1 khuyết tật trên diện tích 100 cm2;
3) Vết rỗ mặt đầu mayơ: chiều sâu khuyết tật không lớn hơn 1/15 chiều rộng mayơ, chiều dài không lớn hơn 1/8 chu vi mayơ. Chiều rộng không lớn hơn 1/3 chiều dày mayơ;
4) Lỗ trục có vết rỗ với diện tích không lớn hơn 2 cm2, độ sâu không vượt quá 1/10 chiều dày nơi bị khuyết tật, số khuyết tật không lớn hơn 1 trên diện tích 100 cm2;
g) Đường ray làm bằng thép đúc không có vết nứt. Khi có khuyết tật sau đây, nhưng sau khi hàn và xử lý không ảnh hưởng đến chất lượng làm việc của ray, thì được hàn đắp:
1) Trên bề mặt gia công chịu nén có vết rỗ không lớn hơn 3 cm2, độ sâu không lớn hơn 1/10 độ dày thành nơi bị khuyết tật, đồng thời trên bề mặt nằm ngang hoặc trên diện tích 100 cm2 không quá 1 điểm khuyết tật, tổng diện tích khuyết tật không lớn hơn 2 % tổng diện tích mặt gia công. Nhưng không cho phép hàn đắp đối với đường ray phải qua nhiệt luyện và vị trí khuyết tật nằm trong phạm vi tiếp xúc của bánh xe;
2) Mặt gia công nhưng không chịu nén có vết rỗ, diện tích khuyết tật không lớn hơn 8 cm2, độ sâu không lớn hơn 1/5 độ dày nơi bị khuyết tật và tổng diện tích khuyết tật không quá 5 %;
h) Khi phạm vi khuyết tật của cấu kiện đúc nhiều hơn chút ít so với quy định nêu trên, sau khi được sự đồng ý của các cơ quan kiểm tra chất lượng và thiết kế mới được hàn đắp, đồng thời phải bảo đảm chất lượng sau khi hàn không ảnh hưởng đến chức năng làm việc của cơ cấu;
i) Trước khi hàn phải làm sạch và tạo miệng vát tại chỗ có khuyết tật, phải lựa chọn que hàn phù hợp với vật liệu phôi đúc. Khi chiều dày thành lớn hơn 20 mm, hình dạng đúc phức tạp, nhiệt độ môi trường thấp hơn 100C thì phải gia nhiệt trước khi hàn;
j) Các phôi đúc bằng thép sau khi hàn vá phải nhiệt luyện theo yêu cầu. Trường hợp khuyết tật nhỏ, không ảnh hưởng chất lượng làm việc, được bộ phận kiểm tra chất lượng sản phẩm và thiết kế đồng ý thì không phải nhiệt luyện.
5.3 Yêu cầu chất lượng phôi rèn
5.3.1 Khi sử dụng phôi rèn phải bảo đảm trạng thái bề mặt vật rèn của thép hợp kim và thép các bon theo đúng quy định của các tiêu chuẩn liên quan.
5.3.2 Phôi rèn không có khuyết tật như vết nứt, phân lớp, vẩy, vết cháy, nếp uốn.
5.3.3 Nếu khuyết tật ở trên bề mặt vật rèn được gia công cơ khí mà chiều sâu khuyết tật không lớn hơn 75 % lượng dư gia công thì không phải sửa lại khuyết tật.
5.3.4 Không được dùng hàn vá sửa chữa các chi tiết được chế tạo từ phôi rèn để treo tải trọng, treo cửa van như móc, vòng, quai nâng tải, bộ phận chịu lực của móc nâng.
5.3.5 Trên bề mặt vật rèn, chi tiết chế tạo từ phôi rèn không phải loại bỏ các vết rạn nhỏ có chiều dài không lớn hơn 5mm và chiều rộng không lớn hơn 0,3 mm khi số lượng các vết rạn đó không lớn hơn 2 trên 100 cm2 bề mặt.
5.3.6 Các sản phẩm rèn từ thép C51, C25 và cao hơn phải gia công nhiệt sau khi rèn.
5.3.7 Thành phần que hàn dùng để hàn vá các khuyết tật của vật rèn phải tương đương thành phần vật liệu thép rèn. Độ cứng chỗ hàn vá không lớn hơn 10 % độ cứng của kim loại hàn chính.
5.3.8 Sau khi hàn vá phải tiến hành ủ nhiệt. Nếu kích thước qúa nhỏ và KCS kiểm tra chất lượng thấy không ảnh hưởng thì không phải ủ nhiệt.
5.4 Một số yêu cầu kỹ thuật khác
5.4.1 Độ chính xác chế tạo cơ khí phải tuân thủ bản vẽ thiết kế, trong trường hợp không quy định cụ thể thì các sai số chế tạo không thấp hơn cấp 8 theo các tiêu chuẩn liên quan.
5.4.2 Khi gia công các chi tiết có kích thước lớn và cấp chính xác cao, nhất thiết phải lập quy trình công nghệ chế tạo.
5.4.3 Dung sai chế tạo bánh xe, bạc, trục của cửa van phải phù hợp yêu cầu thiết kế. Nếu không quy định thì chọn trong khoảng IT6 ¸ IT8, độ nhẵn bề mặt Ra < 3,2 mm, độ chính xác hình dạng và vị trí không thấp hơn cấp 9. Sau khi lắp hoàn chỉnh, bánh xe phải quay nhẹ nhàng, không kẹt.
5.4.4 Dung sai chế tạo bánh răng trong hộp giảm tốc phải theo các tiêu chuẩn liên quan .
5.4.5 Độ không đồng trục, độ ô van, độ lệch rãnh then so với đường tâm chuẩn không lớn hơn 1/2 dung sai kích thước đường kính ngõng trục nơi lắp ghép bánh răng, ổ bi.
5.4.6 Độ đảo vai trục lấy theo cấp chính xác IT8 và theo kích thước đường kính trục.
5.4.7 Độ võng cho phép của trục quay lấy theo vận tốc quy định tại điều A.4 Phụ lục A.
5.4.8 Vỏ hộp giảm tốc: các bề mặt lắp ghép các phần vỏ hộp, các nắp phải được gia công nhẵn, phẳng tối thiểu đạt cấp 5 theo các tiêu chuẩn liên quan.
5.4.9 Dung sai khoảng cách trục khi gia công không thấp hơn cấp 8 theo các tiêu chuẩn liên quan.
5.4.10 Tang cuốn cáp chế tạo theo thiết kế. Trong trường hợp không ghi cụ thể có thể lấy sai số gia công theo quy định tại điều A.5 Phụ lục A.
5.4.11 Bánh xe lăn, bánh xe cữ của cửa van nếu chưa quy định có thể lấy theo quy định tại điều A.6 Phụ lục A.
5.4.12 Các khớp nối trục: Độ đảo hướng tâm và mặt mút lấy bằng 0,005.D khớp.
5.4.13 Xích tải và cáp thép được chọn theo tiêu chuẩn hiện hành.
5.4.14 Ren vít – đai ốc: được chế tạo theo ren thang hoặc ren chữ nhật. Sai số đường kính và bước ren được chọn theo cấp chính xác IT8.
5.4.15 Không cho phép ren bị hư hỏng, các bước ren phải đều nhau, khi vặn đai ốc vào trục vít phải đều, chuyển động nhẹ nhàng.
6. Gia công kết cấu thép
6.1 Dụng cụ đo
6.1.1 Dụng cụ đo lường kết cấu thép cửa van phải dùng thước cuộn hay thước lá kim loại có độ chính xác cấp 2 theo các tiêu chuẩn liên quan về dụng cụ đo độ dài và các góc.
6.1.2 Khi gia công chi tiết ở nhiều phân xưởng khác nhau phải có thước chuẩn để làm mẫu đối chứng.
6.2 Chuẩn bị vật liệu
6.2.1 Nắn và uốn thẳng thép trước khi gia công tránh tạo vết xước, lõm và khuyết tật khác trên bề mặt.
6.2.2 Thanh, bản thép bị cong vênh với bán kính cong (r) và độ võng (f) không vượt quá quy định tại điều A.8 của phụ lục A thì cho phép tiến hành nắn và uốn theo phương pháp nguội.
6.2.3 Thanh bản thép bị cong vênh lớn hơn giá trị r và f cho phép quy định tại điều A.8 phụ lục A thì phải nắn và uốn theo phương pháp nóng ở nhiệt độ từ 750 oC – 850 0C đối với thép các bon và 850 oC đến 950 0C đối với thép hợp kim thấp. Sau khi gia nhiệt, thép phải được làm nguội dần sao cho thép không bị tôi, không bị cong vênh, rạn nứt do hạ nhiệt đột ngột. Không cho phép sử dụng hàn đắp hồ quang để gia nhiệt khi nắn và uốn thép.
6.2.4 Khi cắt thép để gia công cấu kiện, cần xác định rõ công nghệ chế tạo để tính độ dư gia công do co ngót khi hàn và lắp ráp.
6.2.5 Chất lượng bề mặt vật liệu: trước khi cắt uốn chi tiết từ vật liệu nguyên thanh hoặc tấm, bề mặt phải đạt chất lượng quy định theo quy định tại điều A.9 Phụ lục A.
6.2.6 Lấy dấu để xác định kích thước chi tiết khi gia công: cho phép sử dụng bản mẫu hoặc vẽ hình với tỷ lệ 1:1 để lấy dấu trực tiếp trên thanh hoặc bản thép. Khi lấy dấu thủ công chỉ được sử dụng mũi vạch và con tu.
6.2.7 Các phôi thép phải cắt bằng máy cắt, máy cưa; trường hợp ngoại lệ có thể cắt bằng khí ôxy. Sai số kích thước theo chiều dài quy định tại điều A.3 Phụ lục A.
6.2.8 Các chi tiết, cấu kiện giống nhau phải được gia công trên cùng một đồ gá, dưỡng.
6.2.9 Quy định về dung sai cho phép đối với hình dạng miệng cắt và độ nhẵn khi cắt thép tấm hoặc thép hình như sau:
h) Nếu là mép chờ hàn thì ba via không được ảnh hưởng tới mối hàn nối, độ nhẵn cắt Ra< 0,05mm; dung sai độ thẳng theo chiều dài nhỏ hơn 0,5/(1 000 L) nhưng không lớn hơn 1,5 mm; độ vuông góc theo chiều dày tấm thép cắt: với thép có độ dày d £ 24 mm dung sai không lớn hơn 0,5 mm, khi d >24 mm thì không lớn hơn 1,0 mm;
i) Nếu là mép cắt không hàn thì phải nhẵn, bóng, không vết xước; dung sai độ thẳng theo chiều dài nhỏ hơn 1/2 dung sai kích thước quy định tại điều A.11 Phụ lục A; độ vuông góc theo chiều dày nhỏ hơn 1/10 chiều dày của nó nhưng không lớn hơn 2 mm;
j) Phải dùng phương pháp gia công cơ khí (phay, bào, mài…) để vát mép chuẩn bị mối hàn theo thiết kế. Mép của chi tiết sau khi gia công phải đạt độ phẳng, mức lồi lõm cho phép không được quá 0,3 mm trên 1 m;
6.2.10 Cho phép gia công nguội chi tiết ống có đường kính trong lớn hơn 15 lần chiều dày của bản thép cần uốn, đảm bảo các trị số bán kinh cong và độ võng quy định tại điều A.8 Phụ lục A, đảm bảo ứng suất góc uốn được phân bố đều.
6.2.11 Cho phép uốn cong theo chiều dài các ống có đường kính ngoài nhỏ hơn 300 mm bằng phương pháp gia công nóng tới 10000C với cát dồn đầy trong lòng ống và bán kính R lớn hơn 3,5.Rnô. Chiều dài chỗ uốn cần đốt nóng bằng 0,0175.R. .
Trong đó:
Rnô là bán kính ngoài của ống;
R là bán kính uốn cong theo đường tâm ống;
là góc uốn với sai số
6.2.12 Khi uốn các chi tiết từ các tấm thép các bon, bán kính uốn tròn phải lớn hơn 1,2 bề dày của tấm nếu chịu tải trọng tĩnh và lớn hơn 2,5 bề dày tấm nếu kết cấu chịu tải trọng động. Trong trường hợp sử dụng thép hợp kim thấp thì bán kính lấy tăng tối thiểu 1,5 lần so với thép các bon.
6.3 Khoan lỗ trên các chi tiết kết cấu thép
6.3.1 Cho phép khoan lỗ trên các chi tiết trước hoặc sau khi đã hàn ghép thành kết cấu và phải khoan tại nhà máy để bảo đảm trục của lỗ thẳng góc với mặt chi tiết. Các lỗ và quy cách khoan phải theo đúng bản vẽ thiết kế và tối thiểu phải đạt được dung sai đường kính và độ ô van theo quy định tại các điều A.12 và A.13 của Phụ lục A.
6.3.2 Cho phép áp dụng phương pháp khoan lỗ trực tiếp theo phương pháp lấy dấu trên máy khoan chạy hơi ép, máy khoan điện. Trường hợp chế tạo hàng loạt phải khoan theo dưỡng hoặc dùng rô bốt khoan điều khiển theo chương trình.
6.4 Hàn
6.4.1 Điều kiện để hàn lắp thành cụm của kết cấu hay hàn hoàn thiện toàn bộ kết cấu cửa van:
a) Các chi tiết đã được nắn thẳng và được làm sạch theo yêu cầu kỹ thuật;
b) Phải có quy trình công nghệ hàn được xây dựng từ trước;
c) Phải có đồ gá để định vị các chi tiết hàn theo đúng bản vẽ thiết kế tổng thể;
d) Phải hàn đính các chi tiết lắp ghép để có liên kết tạm thời tại chỗ các mối hàn chính sau này, chống biến dạng trước khi hàn chính thức;
e) Không được cẩu lật làm thay đổi hình dạng khi mới hàn đính nếu bản vẽ thi công không có quy định riêng;
f) Các chi tiết cần được hàn lắp đúng vị trí theo thiết kế để ứng suất nội tại truyền đều qua phần hàn, tránh phát sinh khuyết tật mối hàn;
g) Cần kiểm tra lại kết cấu và kích thước trước khi tiếp tục hàn nếu như bộ phận tổ hợp chưa hàn hoàn chỉnh của ngày hôm trước.
6.4.2 Khi hàn đính, chỉ cần mối hàn có chiều cao tối thiểu để khi hàn chính thức mối hàn này sẽ làm nóng chảy mối hàn đính. Chiều cao mối hàn đính không lớn hơn 0,5 chiều cao mối hàn chính thức theo thiết kế. Không được bố trí mối hàn đính tại vị trí mối hàn chính giao nhau.
6.4.3 Que hàn đính và hàn chính phải cùng loại và phù hợp với mác thép hàn, chất lượng mối hàn tương tự nhau.
6.4.4 Phải bảo đảm dạng mép vát, kích thước khe hở giữa các chi tiết khi hàn và kích thước mối hàn theo đúng chỉ dẫn trên bản vẽ thiết kế hoặc có thể tham khảo điều B.1 Phụ lục B.
6.4.5 Chỉ được phép hàn chồng lớp tiếp theo khi đã đánh sạch xỉ và khuyết tật lớp hàn trước. Nếu có khuyết tật do hàn phải được dùng máy mài mài sâu không nhỏ hơn 0,5 mm. Chỗ khuyết sâu vào trong thép hàn không được lớn hơn 3 % trị số chiều dày thép hàn.
6.4.6 Khi hàn tay hoặc nửa tự động, nếu nhiệt độ môi trường thấp hơn 100C thì cần đốt nóng vật hàn tới khoảng 120 0C với bề rộng 10 mm ở mỗi bên đường hàn.
6.4.7 Đối với hàn tự động và nửa tự động, các chi tiết đã được tổ hợp phải hàn ngay trong ngày để chống ẩm.
6.4.8 Phải được điền đầy các chỗ lõm ở cuối mỗi đường hàn.
6.4.9 Khi hàn thép đúc có hàm lượng Các bon lớn hơn 3%, nên dùng que hàn chứa ít H2 (E5616, E6015) và gia nhiệt cục bộ với nhiệt độ từ 200oC – 2500C. Sau khi hàn cần xử lý nhiệt.
6.4.10 Khi kết cấu quá lớn phải phân đoạn nhỏ thành các cụm kết cấu riêng biệt thì phải tuân thủ theo bản vẽ quy trình công nghệ riêng. Trong quá trình tổ hợp tổng thể, cần điều chỉnh toàn bộ liên kết, phải gá đặt và có cơ cấu điều chỉnh, định vị chắc chắn trước khi hàn. Phải ghi rõ mã số, vạch đường trục trên tất cả các phần tử trên kết cấu.
6.4.11 Cho phép sử dụng hàn tự động, nửa tự động và hàn tay để hàn các cửa van và các bộ phận khác của kết cấu thép trên công trình thủy lợi nhưng phải đảm bảo các yêu cầu về kích thước hình học và tính chất cơ lý của mối hàn.

6.4.13 Thợ hàn hồ quang phải có chứng chỉ văn bằng hợp cách. Thợ hàn máy tự động và bán tự động phải được đào tạo chính quy và được cấp văn bằng chứng chỉ tương ứng.
6.4.14 Nên ghi rõ số hiệu của mỗi thợ hàn ở gần mối hàn, khoảng cách ghi số hiệu không nhỏ hơn 4cm kể từ mép mối hàn.
6.4.15 Sau khi hàn xong các kết cấu phải tháo bỏ các chi tiết gá lắp và đánh sạch hết xỉ, mạt kim loại trên bề mặt. Khi tẩy bỏ không làm hỏng bề mặt kết cấu và phải bảo đảm bằng phẳng và nhẵn mặt.
6.5 Liên kết các cụm bằng bulông
6.5.1 Khi liên kết các bộ phận kết cấu bằng bu lông, phải đánh sạch các bề mặt lắp ghép, phải đóng chặt chốt định vị trước khi siết chặt bu lông. Độ kín khít khi xiết chặt bu lông được kiểm tra bằng thước lá có bề dày 0,3 mm, thước không thể lùa vào sâu quá 20 mm.
6.5.2 Khi lắp ghép các cụm và kết cấu nguyên vẹn chuyên chở đến nơi sử dụng, cần phải có các biện pháp phòng ngừa phát sinh các biến dạng do hàn và xuất hiện ứng suất dư trong kim loại.
6.6 Chế tạo cửa van và bộ phận đặt sẵn
6.6.1 Yêu cầu kỹ thuật chung
6.6.1.1 Khi hàn các tấm thép tạo thành kết cấu có dạng thép hình đơn, sai số cho phép sau khi hàn được tuân thủ theo điều A.15 Phụ lục A.
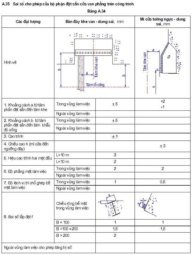
6.6.1.2 Ngoài các quy định theo bản vẽ, các bộ phận đặt sẵn như ngưỡng, khe van, đường ray chính và phụ, ray ngược, mặt tựa gioăng chắn nước, dầm thép cối quay, tường ngực… cần phù hợp quy định theo quy định tại các điều từ A.16 đến A.19 Phụ lục A.
6.6.1.3 Đường ray chính chịu nén của cửa van phẳng được chế tạo theo cấp chính xác IT8, độ nhám bề mặt Ra < 3,2 mm. Khi có yêu cầu nhiệt luyện phải bảo đảm độ cứng bề mặt và chiều sâu lớp biến cứng theo thiết kế. Sau khi lắp đường ray chính với bản chịu nén đặt sẵn, độ lệch vị trí các mối nối đối đầu ray chính và bản tựa gioăng chắn nước không lớn hơn 0,1 mm và ray ngược và ray bánh xe cữ không lớn hơn 0,2 mm. Sai số độ phẳng bề mặt ray phù hợp với quy định tại điều A.18 Phụ lục A.
6.6.1.4 Khi ghép tổ hợp bản tựa gioăng chắn nước, bộ phận đặt sẵn và ray bằng thép không gỉ phải bảo đảm kín khít, khe hở cục bộ không quá 0,2 mm và chiều dài không quá 100 mm cho mỗi khe.
Tổng chiều dài khe hở không quá 15 % chiều dài toàn cấu kiện.
6.6.1.6 Dung sai cho phép chế tạo cấu kiện tường ngực và tấm lót không có yêu cầu chắn nước theo quy định tại điều A.19 phụ lục A.
6.6.1.7 Khi cửa van cung làm việc với cột nước cao (kể cả cửa van cung có trục lệch tâm) có yêu cầu kết cấu mở rộng đột ngột rãnh van thì sai lệch cho phép bán kính cong mặt chuẩn của bản tựa gioăng chắn nước với mặt biên là ±2,0 mm, chiều sai lệch này cùng chiều với sai lệch bán kính cong cung mặt ngoài cánh van thường là ±3,0 mm.
6.6.1.8 Bộ phận đặt sẵn được chế tạo từng phần, cần tổ hợp tại xưởng chế tạo và phải định vị bằng các đồ gá chắc chắn, sai số cho phép khi tổ hợp các bộ phận được quy định như sau:
a) Bề mặt chịu nén của đường ray chính cho cửa van bánh xe không lớn hơn 0,1 mm;
b) Các mặt khác đã qua gia công không được lớn hơn 0,5 mm;
c) Các mặt để thô không lớn hơn 2,0 mm.
Các bộ phận còn lại cần phù hợp với các quy định trong tiêu chuẩn này. Sau khi kiểm tra đạt yêu cầu, cần đánh số ký hiệu rõ ràng tại nơi tổ hợp, sau đó mới tiến hành bao gói và chuyên chở đến nơi lắp đặt theo quy định.
6.6.2 Chế tạo cửa van phẳng
6.6.2.1 Nếu trong bản vẽ thiết kế chưa quy định thì sai số cho phép khi gia công cửa van phẳng phải phù hợp với quy định tại điều A.20 Phụ lục A.
6.6.2.2 Sau khi gia công cửa van phẳng có bánh xe, cần loại trừ ứng suất để bảo đảm ổn định kích thước hình học và hình dạng thiết kế và thỏa mãn các yêu cầu sau:
a) Sai lệch cho phép khoảng cách giữa các mặt phẳng tương ứng ± 0,5 mm;
b) Độ phẳng tiếp xúc giữa đường ray và hai dầm biên không được lớn hơn 0,3 mm;
c) Dung sai của các mặt phằng song song không lớn hơn 0,3 mm;
d) Độ nhám bề mặt gia công cơ khí Ra < 25 mm.
6.6.2.3 Khi lắp ráp bánh xe hay gối trượt động của cửa van, nên lấy mặt tựa gioăng chắn nước làm mặt chuẩn để căn chỉnh, tất cả các bánh xe hay mặt gối trượt phải nằm trên cùng mặt phẳng. Dung sai độ phẳng cho phép quy định như sau:
– Khi khẩu độ bánh xe hay gối trượt không lớn hơn 10 m thì dung sai không lớn hơn 2,0 mm;
– Khi khẩu độ lớn hơn10 m thì dung sai không lớn hơn 3,0 mm;
– Độ nghiêng của bánh xe với mặt phẳng bất kỳ không lớn hơn 2/1 000 đường kính bánh xe.
6.6.2.4 Dung sai cho phép của độ không song song giữa mặt chuẩn lắp gioăng chắn nước với mặt trượt của gối động của cửa van:
– Khi chiều dài gối trượt từ 500 mm trở xuống thì không lớn hơn 0,5 mm;
– Khi chiều dài gối trượt lớn hơn 500 mm thì không được lớn hơn 1,0 mm.
6.6.2.5 Sai lệch cho phép khẩu độ của bánh xe hay gối trượt động nếu không quy định thì lấy theo giá trị quy định tại điều A.21 Phụ lục A.
6.6.2.6 Đường tiếp xúc của các bánh xe trên đường ray phải nằm trên cùng một mặt phẳng, dung sai cho phép về khoảng cách từ đường tiếp xúc của bánh xe trên đường ray và mặt chuẩn lắp gioăng chắn nước của cửa van không lớn hơn 1,5 mm.
6.6.2.7 Sai lệch cho phép khoảng cách giữa đường tâm ngang và dọc của lỗ tai treo van là 2,0 mm. Lỗ tai treo và trục kéo phải bảo đảm đồng tâm, độ nghiêng cho phép không lớn hơn 1/1 000.
6.6.2.8 Tổng hợp tổng thể cửa van phẳng:
a) Không phân biệt cửa van được chế tạo liền khối hay phân đoạn (do siêu trường, siêu trọng), trước khi xuất xưởng cần tổ hợp hoàn chỉnh và tiến hành kiểm tra tổng thể sai số kích thước, vị trí theo quy định; sai lệch của mối ghép không lớn hơn 2,0 mm;
b) Sai lệch khẩu độ bánh xe theo đường ray phải phù hợp giá trị quy định trong điều A.22 Phụ lục A. Sau khi tổ hợp tổng thể, các bánh xe hay gối tựa động phải tiếp xúc đều, chiều dài tiếp xúc của gối tựa động lên đường trượt là 80 %, khe hở cục bộ nhỏ hơn 0,1 mm. Khi cửa van ở vị trí làm việc, mọi thông số đều phải bảo đảm theo thiết kế, phải lấy mặt phẳng và ray hay mặt trượt làm chuẩn để căn chỉnh bánh xe cữ, gioăng chắn nước, bánh xe ngược. Sai số vị trí không được lớn hơn 1,0 mm;
c) Sau khi kiểm tra phù hợp, cần làm dấu, đánh số, định vị để khi tháo ra lắp lại bảo đảm kích thước ban đầu.
6.6.3 Chế tạo cửa van cung
6.6.3.1 Cửa van cung phải chế tạo theo bản vẽ thiết kế được duyệt và phù hợp với tiêu chuẩn liên quan về thiết kế cửa van, khe van bằng thép trong công trình thủy lợi. Nếu trong bản vẽ thiết kế chưa quy định thì sai số cho phép khi gia công cửa van cung phải phù hợp với quy định tại điều A.23 Phụ lục A.
6.6.3.2 Cửa van cung có trục lệch tâm hoặc van cung có yêu cầu mở một phần với mực nước cao, khi gia công bằng máy các mặt ghép khớp với càng, càng với bản mặt, ngoài việc phải dựa theo yêu cầu cửa van cung lỗ chìm theo quy định tại điều A.23 phụ lục A để kiểm tra và chế tạo chính xác, còn phải bảo đảm sai lệch cho phép của bán kính cong bản mặt cửa van là 2,0 mm, đồng thời sai lệch của nó phải cùng chiều với sai lệch bán kính cong mặt chuẩn của bệ chắn nước. Chiều dày sau khi gia công không nhỏ hơn kích thước theo bản vẽ, độ nhám bề mặt Ra<25 m.m. Dung sai hình dạng phù hợp với quy định tại điều A.24 Phụ lục A.
6.6.3.3 Sai lệch khoảng cách đường tâm hướng ngang và hướng dọc của lỗ tai treo cửa van hình cung là 2,0 mm. Lỗ tai treo và trục kéo phải bảo đảm đồng tâm, độ nghiêng cho phép không lớn hơn 1/1 000.
6.6.3.4 Sai lệch vị trí tại mối ghép tổ hợp không lớn hơn 2,0mm.
6.6.4 Chế tạo cửa van chữ nhân
Nếu trong bản vẽ thiết kế chưa quy định thì sai số cho phép khi gia công cửa van chữ nhân phải phù hợp với quy định tại điều A.25 Phụ lục A.
6.6.5 Chế tạo lưới chắn rác
6.6.5.1 Sai số cho phép chế tạo đơn chiếc lưới chắn rác phù hợp với quy định các bản vẽ. Nếu không quy định thì sai số cho phép chế tạo bộ phận đặt sẵn lưới chắn rác phù hợp với giá trị quy định tại điều A.26 phụ lục A
6.6.5.2 Sai lệch cho phép chế tạo thân lưới chắn rác quy định như sau:
a) Sai lệch cho phép chiều rộng và chiều cao lưới chắn rác là ± 8,0 mm;
b) Sai lệch cho phép chiều dày thân lưới chắn rác là ± 4,0 mm;
c) Sai lệch tương đối đường chéo thân lưới không lớn hơn 6 mm, độ uốn cong không lớn hơn 4,0 mm;
d) Các thanh của lưới cần song song với nhau, sai lệch không lớn hơn 5 % cự ly theo thiết kế;
e) Sai lệch cho phép đường tim của lỗ theo thân lưới chắn rác là ± 4,0 mm, khi lưới chắn rác và cửa van sửa chữa dùng chung thiết bị đóng mở thì sai số này là ± 2,0 mm; lỗ trục cần treo và tai treo cần bảo đảm đồng tâm, độ nghiêng cho phép không lớn hơn 1/1 000;
f) Bánh xe hoặc gối đỡ trượt của thân lưới chắn rác phải nằm trên cùng một mặt phẳng, dung sai độ phẳng cho phép không lớn hơn 4,0 mm;
g) Sai lệch cho phép của khẩu độ bánh xe hoặc gối trượt là ± 6,0 mm và đường tim bánh xe hoăc gối trượt cùng một phía là ± 3,0 mm;
h) Tâm chịu nén đầu dưới của 2 dầm bên phải nằm trên cùng mặt phẳng, dung sai cho phép không lớn hơn 3,0 mm.
6.7 Kiểm tra chất lượng mối hàn
6.7.1 Khi kiểm tra xác suất khuyết tật bên trong mối hàn lớn hơn cho phép thì phải tiếp tục kiểm tra thêm ở gần nơi có khuyết tật. Nếu phát hiện khuyết tật quá trị số cho phép thì tiến hành kiểm tra toàn bộ mối hàn (xem điều A.27 Phụ lục A)
6.7.2 Các kết quả kiểm tra mối hàn phải được ghi vào biên bản để đưa vào tài liệu nghiệm thu bàn giao.
6.7.3 Sửa chữa các khuyết tật mối hàn được quy định tại các điều A.28 và A.29 Phụ lục A
7. Quy trình lắp ráp ở nơi chế tạo
7.1 Phải có đủ tài liệu thiết kế, quy trình công nghệ trước khi lắp ráp thành các cụm thiết bị cũng như kết cấu thép tại nơi chế tạo.
7.2 Các chi tiết máy và kết cấu trước khí lắp phải kiểm tra số lượng và chứng nhận chất lượng sau gia công xuất xưởng theo bản vẽ lắp của từng phân xưởng.
7.3 Lắp ráp các cơ cấu cơ khí tại nhà máy như hộp giảm tốc, hộp chịu lực, tời điện và tời quay tay phải được lắp ráp và căn chỉnh thành bộ hoàn chỉnh trước khi đưa tới hiện trường lắp đặt. Sai số lắp ráp và kiểm tra được quy định tại điều A.30 Phụ lục A.
7.4 Sau khi lắp ráp, các bộ phận máy phải được chạy thử không tải theo thiết kế tại nơi chế tạo và có biên bản nghiệp thu cho từng bộ phận. Hộp giảm tốc chạy thử 4 giờ có đảo chiều, các cơ cấu khác chạy thử 2 giờ có đảo chiều.
7.5 Nhiệt độ dầu trong hộp giảm tốc cho phép khi chạy thử quy định tại điều A.31 Phụ lục A.
7.6 Nhiệt độ các ổ trượt cho phép khi chạy thử quy định tại điều A.32 Phụ lục A.
7.7 Lắp ráp và điều chỉnh các bộ phận tựa động của cửa van quy định tại điều A.33 Phụ lục A.
7.8 Nghiệm thu tại nhà máy: sau khi lắp ráp và chạy thử phải tiến hành kiểm tra và có xác nhận của KCS trước khi sơn chống rỉ.
7.9 Các kết quả nghiệm thu của KCS và việc đánh giá chất lượng chế tạo phải được ghi vào biên bản và phải đóng dấu kiểm tra lên sản phẩm mới được xuất xưởng.
7.10 Nội dung kiểm tra:
a) Sự phù hợp của vật liệu đã dùng để chế tạo so với thiết kế;
b) Không có khuyết tật bên ngoài vật liệu;
c) Độ chính xác kích thước và dung sai lắp ghép cho phép;
d) Chất lượng các mối ghép hàn, các mối ghép bu lông;
e) Kết quả chạy thử;
f) Chất lượng lớp sơn chống rỉ;
g) Kiểm tra độ chính xác các số liệu ghi nhật ký chế taọ, lý lịch máy và tài liệu nghiệm thu.
7.11 Yêu cầu về sơn phủ bảo vệ :
a) Tất cả các bộ phận, kết cấu sau khi chế tạo xong, được KCS xác nhận mới được sơn phủ;
b) Loại sơn và chiều dày lớp sơn phủ phải tuân thủ thiết kế quy định và phải phù hợp mục đích sử dụng, điều kiện môi trường;
c) Loại sơn phải có chứng chỉ nguồn gốc, còn hạn sử dụng;
d) Bề mặt kim loại phải được làm nhẵn bề mặt, lau khô ráo, sạch dầu mỡ trước khi sơn.
7.12 Yêu cầu về gắn nhãn và đánh dấu :
a) Phải sơn lại hoặc gắn nhãn hiệu loại màu dễ phân biệt;
b) Phải ghi rõ trọng lượng của kết cấu, máy khi có trọng lượng lớn hơn 5 000 kg;
c) Phải bao gói, định vị các tấm, bản ốp và các chi tiết hàn nối khác kèm theo cấu kiện lớn để không nhầm lẫn, thất lạc;
d) Phải có biện pháp che chắn bao bọc các bộ phận trượt, khớp nối, các bộ phận đặt sẵn tránh cong vênh, xây xước, sai lệch trong quá trình vận chuyển;
e) Các chi tiết riêng lẻ, bộ phận đo, thiết bị điện phải được đóng hộp bảo vệ;
f) Phải hàn quai móc để cẩu hoặc đánh dấu vị trí được phép móc cáp cẩu đối với vật có tải trọng trên 5.000 kg;
g) Các loại xích, cáp nâng phải được bôi mỡ theo thiết kế.
7.13 Khi giao hàng tại nhà máy cần có các tài liệu sau đây:
a) Phiếu ghi các cơ cấu và kết cấu thép chuyển giao có nhãn hiệu và trọng lượng;
b) Các giấy xác nhận của KCS của từng công đoạn;
c) Các tài liệu kiểm tra và chứng nhận của đơn vị thiết kế;
d) Bảng kê xác nhận chất lượng thép, que hàn, bulông và các vật liệu khác;
e) Các biên bản kiểm tra chất lượng que hàn trước khi hàn;
f) Bản ghi chứng nhận bậc thợ của từng thợ hàn;
g) Biên bản kiểm tra chất lượng mối hàn và xử lý sau khi hàn;
h) Biên bản thử nghiệm, chạy thử các cơ cấu;
i) Biên bản thử nghiệm các kết cấu chi tiết khi có yêu cầu;
j) Biên bản nghiệm thu chất lượng sơn.
8. Quy trình vận chuyển và xếp kho
8.1 Cần xác định kích thước, trọng lượng hàng và quãng đường vận chuyển để lựa chọn phương tiện thích hợp.
8.2 Cần có phương án kê kích và chằng buộc để bảo đảm an toàn cho người và phương tiện vận chuyển.
8.3 Phải kiểm tra lại toàn bộ danh mục hàng, các tài liệu liên quan và quan sát để phát hiện những sai hỏng, thiếu hụt khi giao nhận tại nhà máy cũng như khi dỡ hàng sau vận chuyển. Tất cả sai sót thiếu hụt đều phải ghi biên bản.
8.4 Bảo quản và xếp kho trước khi lắp đặt thực hiện theo quy định sau:
a) Kết cấu lớn cồng kềnh cho phép để ngoài trời nhưng phải che kín, dùng gỗ kê cao khỏi mặt đất từ 20 cm trở lên;
b) Các bộ phận bôi trơn hở đều phải thay mỡ mới, các lỗ tra dầu phải nút kín, chi tiết máy chưa sơn phải bôi mỡ bảo quản;
c) Các chi tiết máy rời, cụm máy đóng mở, xích, cáp thép, động cơ và thiết bị điện phải để trong kho, kê cao, khô ráo trên các giá gỗ;
d) Bộ phận chắn nước bằng cao su được bảo quản riêng, để xa dầu mỡ, nơi có độ ẩm thấp hơn 50%, nhiệt độ nhỏ hơn 25 0C;
e) Que hàn, dây hàn và thuốc hàn phải được bảo quản ở nơi khô ráo, kín, trên các giá đỡ;
f) Các đường ống phải xếp đặt trên các tấm kê bằng gỗ và xếp phân theo từng loại;
g) Khi xếp các kết cấu thành nhiều lớp, nhất thiết phải có lớp đệm giữa các lớp;
h) Cửa van đã lắp hoàn chỉnh phải được kê kích sao cho không gây biến dạng. Phần trượt phải được bôi trơn, bảo vệ bằng gỗ tấm, không bị biến dạng, không bị đọng nước.
8.5 Trước khi đưa ra lắp đặt thiết bị, mọi sai sót đều phải được sửa chữa, thay thế và phải được sự đồng ý của thiết kế bằng văn bản.
8.6 Trước khi lắp đặt thiết bị cơ khí, kết cấu thép, phải có đủ các tài liệu kỹ thuật như bản vẽ lắp tổng thể, quy trình lắp ráp, biên bản giao hàng, biên bản bàn giao mặt bằng, thiết bị sử dụng và các điều kiện kỹ thuật tại hiện trường.
9. Lắp đặt cửa van và thiết bị đóng mở
9.1 Lắp đặt bộ phận đặt sẵn
9.1.1 Công tác chuẩn bị
9.1.1.1 Lấy dấu và định tim mốc lắp ráp, đánh dấu toạ độ, cao độ, mốc định vị theo bản vẽ thiết kế. Các ký hiệu đánh dấu phải dễ nhìn thấy và phải bảo đảm các điểm toạ độ đó được bảo vệ trong quá trình thi công và bàn giao. Sai số chiều dài tim lắp ráp cho phép là 1mm/10m.
9.1.1.2 Phải dùng thiết bị đo như máy kinh vĩ có độ chính xác cao để xác định tim tuyến, đo góc, xác định độ cao; đo chiều dài bằng thước kim loại có độ chính xác cấp 2 theo tiêu chuẩn liên quan về dụng cụ đo độ dài và các góc. Trước khi lắp ráp, các dấu hiệu thực tế và tim lắp ráp phải được kiểm tra. Thành phần ban kiểm tra phải có đại diện đơn vị lắp ráp và kết quả phải được ghi vào biên bản. Chưa có kết quả của ban kiểm tra không được tiến hành lắp ráp.
9.1.2 Lắp đặt các bộ phận đặt sẵn
9.1.2.1 Phải làm sạch dầu mỡ, cáu bẩn, sơn cũ bề mặt đặt sẵn tiếp giáp với bê tông.
9.1.2.2 Trong quá trình đổ bê tông, các bộ phận đặt sẵn phải được cố định chắc chắn, bảo đảm không bị sai lệch trong quá trình thi công.
9.1.2.3 Đối với phương pháp đổ bê tông sau, phải kiểm tra tim lắp ráp, kích thước các bộ phận chừa lại, các cốt thép nhô ra để liên kết với phần đặt sẵn đảm bảo khả năng chịu lực và phù hợp với sai số cho phép về vị trí và kích thước theo bản vẽ thiết kế, hoặc phù hợp với quy định tại các điều A.33 và A.34 phụ lục A. Kết quả kiểm tra phải ghi vào biên bản trước khi đổ bê tông hoàn thiện.
9.1.2.4 Trước khi đổ bê tông lần sau của phần đặt sẵn, phải đánh xờm và làm sạch vết bẩn của phần bê tông đổ trước. Các phần nhô ra của cốt thép phải làm sạch dầu mỡ.
9.1.2.5 Hàn nối phần đặt sẵn với cốt thép chờ được thực hiện. Các thanh nối cốt thép phải thẳng và đặt theo hướng chịu lực khi đổ bê tông. Độ dài mối hàn nối của thanh giằng với phần đặt sẵn không nhỏ hơn 50 cm. Vị trí hàn nối cốt thép với bộ phận đặt sẵn phải nằm trong bê tông sau khi đổ.
9.1.2.6 Các công tác kiểm tra phải do ban giám sát gồm các bên xây lắp, lắp ráp, giám sát A tiến hành và ghi biên bản.
9.1.2.7 Sau 5 ngày kể từ ngày kiểm tra mà chưa đổ bê tông phần đặt sẵn thì phải tiến hành kiểm tra lại độ chính xác của kết cấu.
9.1.2.8 Trước khi tháo ván khuôn phải kiểm tra lại vị trí tim lắp ráp để ghi biên bản nghiệm thu.
9.1.2.9 Khi lắp đặt bộ phận đặt sẵn của cửa van phẳng có bánh xe, ngoài việc phù hợp quy định cho trong điều A.18 phụ lục A, độ lệch đầu nối mặt chịu lực không lớn hơn 0,2 mm đồng thời cần xử lý để mái dốc thoải và chỉnh để mặt chịu lực của đường ray chính hai bên cùng nằm trong một mặt phẳng. Dung sai cho phép của độ phẳng của nó phù hợp quy định tại điều A.18 Phụ lục A
9.1.2.10 Sai lệch vị trí giữa tim thiết kế với bulông móng cối quay cửa van cung không được lớn hơn 1,0 mm.
9.1.2.11 Nếu trong bản vẽ thiết kế không quy định, dung sai và sai lệch lắp ráp bộ phận đặt sẵn cửa van cung phải phù hợp với quy định cho các điều A.35, A.36 Phụ lục A.
9.1.2.12 Đối với cửa van cung cột nước cao (kể cả cửa van có khớp lệch tâm) với kết cấu rãnh van mở rộng đột ngột, sai lệch cho phép của cự li tính từ đường tim mặt chuẩn bệ tựa gioăng chắn nước đến tim miệng cống là ± 2,0 mm; sai lệch bán kính cong cho phép là ±3,0 mm; chiều sai lệch phải trùng với chiều sai lệch bán kính cong của cung ngoài tấm mặt cánh van; dung sai khe hở giữa mặt ngoài van cung đến mặt chuẩn bệ tựa gioăng chắn nước không được lớn hơn 3,0 mm.
9.1.2.13 Khi lắp riêng dầm thép bệ cối quay van cung, sai lệch cho phép của cao trình và cự ly đối với đường tim miệng cống là ± 1,5 mm. Độ nghiêng của dầm thép bệ cối (điều A.14, Hình A.2 Phụ lục A) được khống chế theo trị số sai lệch kích thước L không được lớn hơn L/1 000.
9.1.2.14 Sai lệch tim của cung bề mặt tựa gioăng và dung sai độ vuông góc bề mặt đều không được lớn hơn 1,0 mm (nếu là mặt không gia công, thì dung sai độ vuông góc là 2,0 mm), sai lệch cho phép cự ly bề mặt của nó đối với đường tim miệng cống là mm.
9.1.2.15 Sau khi bộ phận đặt sẵn đã được lắp đặt và căn chỉnh, cần hàn cố định bu lông điều chỉnh với các bu lông néo hoặc tấm néo, đảm bảo các cấu kiện đặt sẵn không bị biến dạng hoặc xê dịch trong qúa trình đổ bê tông đợt 2. Nếu có yêu cầu gia cố khác đối với các bộ phận đặt sẵn, thì làm theo yêu cầu bản vẽ thiết kế.
9.1.2.16 Cần mài nhẵn, phẳng các mối hàn giáp mép bề mặt làm việc của bộ phận đặt sẵn.
9.1.2.17 Sau 5 ngày đến 7 ngày kể từ khi lắp xong cấu kiện đặt sẵn và kiểm tra đạt yêu cầu, thì phải đổ bê tông đợt 2, nếu quá hạn nói trên hoặc bị va chạm, cần kiểm tra lại mới được đổ bê tông. Chiều cao lớp bê tông đổ một lần không nên cao quá 5 m, khi đổ cần đầm chặt và tránh va đập với cấu kiện.
9.1.2.18 Sau khi tháo ván khuôn bê tông đợt 2, cần kiểm tra lại và ghi chép, đồng thời kiểm tra kích thước bố trí thiết bị, dọn sạch cốt thép và rác bẩn để tiện cho việc đóng mở cửa van sau này.
9.1.2.19 Trước khi chắn nước công trình, cần kiểm tra thử nghiệm đối với tất cả các rãnh cửa van sửa chữa và cửa van dùng chung.
9.2 Lắp cửa van phẳng
9.2.1 Lắp thành cụm các cấu kiện của cửa chỉ khi đã có các tài liệu kỹ thuật, có thiết bị thi công theo đúng yêu cầu và các dụng cụ cần thiết khác. Đối với cửa van quá cỡ cần thực hiện theo quy trình thiết kế công nghệ riêng và sai số lắp ráp tuân thủ các quy định tại điều A.20 Phụ lục A. Chất lượng mối ghép bằng bu lông hay hàn cũng phải bảo đảm như ở nhà máy chế tạo và quy trình đã nêu tại điều 6 trong tiêu chuẩn này. Sau khi lắp ráp thành cụm phải có biên bản kiểm tra chất lượng.
9.2.2 Tính chất cơ lý và chủng loại, kích thước của gioăng chắn nước cần phù hợp yêu cầu thiết kế. Sai lệch chiều dày là 1,0 mm, sai lệch kích thước khác bằng 2 % kích thước thiết kế.
9.2.3 Đường tâm các lỗ gioăng chắn nước, tấm ép gioăng và lỗ trên cánh van phải trùng nhau. Đường kính lỗ trên gioăng nhỏ hơn đường kính bu lông 1,0 mm. Sau khi xiết chặt bulông, phần nhô của bulông ít nhất phải thấp hơn mặt làm việc của gioăng 8,0 mm.
9.2.4 Sau khi lắp gioăng, sai lệch cho phép của cự ly 2 tâm chắn nước bên và chắn nước đỉnh đến mép chắn nước đáy là 3,0 mm, độ bằng mặt chắn nước là 2,0 mm. Cửa van tại vị trí làm việc, độ co ép của gioăng cao su cần phù hợp quy định của bản vẽ, sai lệch cho phép là mm.
9.2.5 Cần làm thí nghiệm cân bằng tĩnh đối với cửa van phẳng theo phương pháp sau: nâng cẩu cửa van cao hơn mặt đất 100 mm, thông qua tim của bánh xe hay rãnh trượt đo độ nghiêng phía thượng và hạ lưu, bên trái và bên phải. Đối với cửa van phẳng loại có điểm treo đơn, độ nghiêng không được lớn hơn 1/1000 chiều cao cửa van, đồng thời không được lớn hơn 8,0 mm. Đối với cửa van phẳng có bánh xe thì độ nghiêng của nó không được lớn hơn 1/1500 chiều cao cửa van nhưng cũng không được lớn hơn 3,0 mm. Nếu vượt quá qui định nói trên, cần lắp thêm đối trọng thích hợp để bảo đảm cửa van được cân bằng tĩnh.
9.2.6 Khi lắp cửa van phẳng vào vị trí làm việc phải theo đúng yêu cầu thiết kế và tiêu chuẩn cửa van phẳng đã chọn. Các cửa van khi cẩu vào vị trí lắp đặt phải là cửa van hoàn thiện, các bộ phận như gioăng chắn nước, gối tựa động, các chi tiết cơ khí được lắp ráp đầy đủ theo thiết kế và đã sơn phủ đầy đủ.
9.2.7 Bộ phận gối tựa động phải tiếp xúc đều vào đường trượt.
9.2.8 Khe hở của bánh xe cữ so với đường trượt cữ không sai khác so với thiết kế quá 5,0 mm.
9.3 Lắp đặt cửa van cung
9.3.1 Dung sai và sai lệch cho phép lắp đặt cối quay có khớp bi trụ, khớp cầu, khớp hình côn của cửa van cung cần phù hợp qui định tại điều A.36 Phụ lục A.
9.3.2 Khi tổ hợp cửa van cung kiểu phân mảnh thành cửa van hoàn chỉnh; ngoài việc phải kiểm tra lại các kích thước qui định của bản tiêu chuẩn này, cần áp dụng công nghệ hàn đã được quy định theo yêu cầu thiết kế, hoặc áp dụng phương pháp hàn nối và kiểm tra theo tiêu chuẩn này, khi hàn cần áp dụng các biện pháp chống biến dạng.
9.3.3 Các cửa van khi cẩu vào vị trí lắp đặt phải là cửa van hoàn thiện, các bộ phận được lắp ráp đầy đủ theo thiết kế.
9.3.4 Bộ phận gối tựa động phải tiếp xúc đều vào đường trượt khe van.
9.3.5 Khe hở của bánh xe cữ so với mặt thép tấm trượt khe van không sai khác so với thiết kế quá 5,0 mm.
9.3.6 Kiểm tra cửa ở vị trí tựa trên ngưỡng và mở hết không bị kẹt, bảo đảm dung sai theo bản vẽ thiết kế mới được lắp bộ phận làm kín nước.
9.3.7 Bộ phận kín nước phải căn chỉnh đảm bảo kín khít, tiếp xúc đều và không bị kẹt. Sai lệch cho phép lắp đặt gioăng chắn nước bên và đỉnh và chất lượng gioăng cao su cần phù hợp qui định cho ở điều 9.2.2 đến điều 9.2.4.
9.3.8 Sai lệch cho phép bán kính cong R từ tim trục khớp quay đến mép ngoài bản mặt:
a) Đối với van cung kiểu lồi đỉnh là ± 8,0 mm, sai lệch 2 bên đối nhau không được lớn hơn 3,0 mm;
b) Đối với van cung cột nước cao, rãnh van mở rộng đột ngột (kể cả van cung khớp lệch tâm) là ± 3,0 mm, đồng thời sai lệch của nó cùng chiều với sai lệch bán kính cong của cung ngoài bản mặt, dung sai khe hở từ mặt chuẩn bệ chắn nước bên đến mặt cung ngoài van cung không được lớn hơn 3,0 mm và sai lệch tương đối của bán kính 2 bên không được lớn hơn 1,5 mm.
9.4 Lắp đặt van chữ nhân
9.4.1 Kỹ thuật khi lắp đặt trục quay đáy của cửa van chữ nhân (Hình A.3) đáp ứng yêu cầu sau:
a) Sai lệch cho phép tim của cối trục không được lớn hơn 2,0 mm, sai lệch cho phép cao trình không quá ± 3,0 mm, sai lệch tương đối cao độ của 2 cối trái và phải không được lớn hơn 2,0 mm;
b) Sai lệch chiều ngang bệ trục đáy không được lớn hơn 1/1 000.
9.4.2 Yêu cầu kỹ thuật khi lắp đặt trục quay đỉnh của cửa van chữ nhân (điều A.14 hình A.4 phụ lục A):
a) Lắp đặt bộ phận đặt sẵn trục quay đỉnh theo cao độ thực tế của bệ trục quay đỉnh trên cánh van, sai lệch cao độ 2 đầu thanh kéo không được lớn hơn 1,0 mm;
b) Giao điểm đường tim của 2 thanh kéo phải trùng với tim của trục quay đỉnh, sai lệch của nó không được lớn hơn 2,0 mm;
c) Đường tim trục quay đỉnh và đáy phải trùng nhau, dung sai độ đồng trục này là 2,0 mm;
d) Hai tấm bệ của trục quay đỉnh phải đồng tâm, độ nghiêng của nó không được lớn hơn 1/1000.
9.4.3 Bệ trục và gối đỡ khi lắp đặt, lấy đường thẳng nối liền tim gối đỡ hoặc bệ đỡ đỉnh, đáy để kiểm tra đường tim của bệ đỡ trung gian, dung sai độ đối xứng của nó không được lớn hơn 2,0 mm, đồng thời dung sai độ song song của đường trục quay đỉnh và trục quay đáy không được lớn hơn 3,0 mm.
9.4.4 Sau khi căn chỉnh miếng đệm và gối đỡ (điều A.14 Hình A.5 Phụ lục A) cần phù hợp các qui định sau đây:
a) Đối với miếng chèn không kết hợp gioăng chắn nước thì khe hở giữa miếng chèn và gối đỡ không được lớn hơn 0,15 mm khe hở liên tục, khe hở cục bộ không được lớn hơn 0,4 mm. Nếu nó kết hợp cả gioăng chắn nước, thì các trị số tương ứng nói trên là 0,15 mm, khe hở cục bộ không được lớn hơn 0,3 mm; chiều dài khe hở luỹ tiến không lớn hơn 10 % chiều dài miếng chèn gối trục và đỡ trục;
b) Dung sai độ đối xứng C của đường tim miếng chèn của gối trục và bệ đỡ của mỗi đôi tiếp xúc nhau không được lớn hơn 5,0 mm.
9.4.5 Vật liệu chèn 3 (để nhét kín khe hở) phải phù hợp với yêu cầu thiết kế. Nếu vật liệu chèn được làm bằng hoá chất thì thành phần và tỷ lệ phối hợp phải thích hợp và chiều dày vật liệu chèn này không nên nhỏ hơn 20,0 mm. Nếu chèn bằng hợp kim ba-bít, thì khe hở nói trên nhỏ hơn 7,0 mm, sau khi gia nhiệt đệm và bệ ổ trục đạt tới 200oC mới được đổ vật liệu chèn. Nghiêm cấm gia nhiệt bằng lửa hàn ôxi – axetilen.
9.4.6 Trong quá trình cửa van đóng từ độ mở hoàn toàn đến đóng hoàn toàn, độ nhảy lớn nhất của một điểm bất kỳ trên trụ nối nghiêng như sau: khi chiều rộng cửa van từ 12 m trở xuống là -1,0 mm; khi chiều rộng cửa van lớn hơn 12 m là -2,0 mm.
9.4.7 Sau khi lắp đặt xong cửa van chữ nhân, độ vuông góc (dưới) của dầm ngang đáy cánh van tại một đầu trụ nối không được lớn hơn 5,0 mm.
9.4.8 Khi đóng hoàn toàn cửa van chữ nhân, độ co ép của các gioăng cao su là 2,0 mm 4,0 mm; gioăng cao su ở đáy van cần tiếp xúc đều đặn với mặt đứng thép góc ngưỡng đáy cửa van.
9.4.9 Khi chạy thử cửa van chữ nhân ở trạng thái không có nước, cần tính đến ảnh hưởng độ chênh của nhiệt độ hàn với nhiệt độ môi trường, xử lý chính xác khả năng làm thay đổi vị trí tương đối và các kích thước hình học liên quan của khối van.
9.4.10 Quy trình thử nghiệm cửa van như sau:
a) Sau khi lắp đặt cửa van, cần tiến hành thử nghiệm đóng mở cửa van hoàn toàn ở trạng thái không có nước. Trước khi thử nghiệm, cần kiểm tra bộ phận móc treo và móc nhả dầm treo tự động có làm việc linh hoạt và tin cậy hay không; van mồi nước trong phạm vi hành trình lên xuống có nhẹ nhàng không, ở vị trí thấp nhất, gioăng chắn nước có kín chặt không; đồng thời còn phải dọn sạch rác trên cửa van và trong các rãnh van, kiểm tra sự nối tiếp của các dầm nâng hạ cửa van. Khi đóng mở cửa van, cần đổ nước bôi trơn vào gioăng cao su. Có điều kiện, nên thử nghiệm đóng mở cửa van công tác ở điều kiện thủy động;
b) Trong khi đóng mở cửa van, cần kiểm tra tình trạng làm việc của các bộ phận truyền động như trục quay, ổ trục v.v.,trong khi nâng hạ cửa van hoặc quay cửa van có bị kẹt không, thiết bị đóng mở 2 bên có đồng bộ không, gioăng cao su chắn nước có bị hư hỏng không;
c) Khi cửa van hoàn toàn ở trạng thái làm việc, kiểm tra mức độ co ép của gioăng cao su bằng các phương pháp đèn chiếu sáng hay các phương pháp khác sao cho không có ánh sáng xuyên qua gioăng. Nếu gioăng chắn nước nằm phía thượng lưu cửa van, thì cần kiểm tra sau khi thiết bị đỡ van tiếp xúc với đường ray;
d) Khi cửa van làm việc với cột nước tính toán, lượng rò rĩ nước trên 1 mét chiều dài gioăng chắn nước không nên vượt quá 0,1 L/s .
9.5 Lắp đặt thiết bị tời
9.5.1 Phải dùng thiết bị cẩu đúng tải trọng, tốc độ và chiều cao nâng phù hợp, phải móc cẩu đúng vị trí đã đánh dấu trên thiết bị tời.
9.5.2 Chiều dày lớp bê tông dưới bệ lắp tời không nhỏ hơn 50 mm.
9.5.3 Sai số chiều cao đặt máy so với thiết kế trong khoảng ±100 mm.
9.5.4 Sai lệch vị trí tai treo trên cửa van phẳng so với máy theo hướng thượng hạ lưu là 10 mm, theo hướng ngang khe van là ± 5,0 mm.
9.5.5 Đối với cửa quay ngang, vị trí tai trên cửa để mắc cáp hoặc xích và máy phải nằm trong mặt phẳng thẳng đứng vuông góc với trục quay. Sai lệch cho phép của cáp so với mặt phẳng đứng là 5,0 mm và xích là ± 3,0 mm.
9.5.6 Dung sai về kích thước so với thiết kế trong phạm vi mặt phẳng đứng cho cáp và xích là 10,0 mm.
9.5.7 Dung sai cho phép theo phương ngang cho tời cáp và xích:
a) Theo phương thẳng góc với lực kéo là ±1,0 mm/1 m của khoảng cách e giữa các gối trục (điều A.14, Hình A.6 Phụ lục A);
b) Theo phương song song với lực kéo là ± 3 mm/1 m của khoảng cách m giữa các gối trục.
9.5.8 Độ thăng bằng của máy được nối với cánh cửa bằng chốt cứng trong mặt phẳng nằm ngang không vượt quá ±1,0 mm/1 m chiều dài khoảng cách giữa 2 gối trục.
9.5.9 Khi lắp tời từ các bộ phận, chi tiết riêng lẻ phải tuân thủ theo quy định tại điều 7.3.
9.6 Lắp đặt máy vít
9.6.1 Phải dùng thiết bị cẩu đúng tải trọng, tốc độ và chiều cao nâng phù hợp, phải móc cẩu đúng vị trí đã đánh dấu trên máy vít.
9.6.2 Chiều dày lớp bê tông dưới bệ lắp máy và hộp chịu lực không nhỏ hơn 50,0 mm.
9.6.3 Sai số chiều cao đặt máy so với thiết kế trong khoảng ± 50,0 mm.
9.6.4 Sai lệch vị trí tai treo trên cửa van phẳng theo hướng kéo cửa so với thiết kế là ± 5,0 mm.
9.6.5 Dung sai về kích thước so với thiết kế trong phạm vi mặt phẳng đứng cho vít me là ± 5,0 mm.
9.6.6 Dung sai cho phép theo phương thẳng góc với lực kéo của vít kép là ± 0,5 mm trên 1,0 m của khoảng cách giữa hai vít.
9.6.7 Độ thăng bằng của máy được nối với cánh cửa bằng chốt cứng trong mặt phẳng nằm ngang không vượt quá ± 0,5 mm trên 1 m chiều dài khoảng cách giữa 2 hộp chịu lực.
9.7 Lắp đặt thiết bị nâng kiểu xi lanh thuỷ lực
9.7.1 Phần xi lanh thủy lực, bơm và động cơ phải được chế tạo, lắp ráp, kiểm tra, thử nghiệm hoàn chỉnh tại nơi chế tạo.
9.7.2 Phải dùng thiết bị cẩu đúng tải trọng, tốc độ và chiều cao nâng phù hợp, phải móc cẩu đúng vị trí đã đánh dấu cẩu trên xi lanh và bể dầu.
9.7.3 Tiến hành lắp ráp gối treo xi lanh, nên để nguyên nút nhựa bảo vệ.
9.7.4 Lắp ráp hệ thống đường ống dẫn dầu trong hệ thống điều khiển thuỷ lực phải thực hiện theo quy định sau:
a) Sử dụng các dụng cụ cờ lê tiêu chuẩn đúng kích cỡ để lắp ráp, các thiết bị được lắp ráp phải sạch sẽ, lau khô và bôi mỡ phù hợp;
b) Đường ống không hàn được lắp vào các đầu nối thuỷ lực tiêu chuẩn theo bản vẽ kỹ thuật;
c) Sử dụng ống kẹp thông dụng để định vị các đường ống;
d) Lắp hệ thống van, hệ thống điều khiển thuỷ lực đúng vị trí;
e) Kiểm tra tổng thể;
f) Đổ dầu vào trạm nguồn;
g) Chạy thử không tải, kiểm tra lọc dầu, hồi lưu. Thay toàn bộ dầu sau khi chạy thử có tải;
h) Các ống dẫn được thử độ kín khít bằng áp lực theo quy định của thiết kế và thời gian duy trì tối thiểu phải để trên 15 phút và áp lực dầu khi thử không bị hạ thấp 5 % áp lực dầu tối đa.
9.7.5 Sai lệch vị trí treo hai xi lanh theo hướng kéo cửa so với thiết kế là ± 2 mm.
9.7.6 Độ thăng bằng của máy được nối với cánh cửa bằng chốt cứng trong mặt phẳng nằm ngang không vượt quá ±0,5 mm trên 1m chiều dài khoảng cách giữa 2 xi lanh.
9.8 Lắp đặt lưới chắn rác
9.8.1 Sai lệch cho phép lắp đặt bộ phận đặt sẵn lưới chắn rác kiểu di động phải phù hợp với giá trị quy định tại điều A.37 Phụ lục A
9.8.2 Khi lưới chắn rác đặt nghiêng, sai lệch cho phép của góc nghiêng của bộ phận đặt sẵn là ± 10’.
9.8.3 Khi lắp đặt lưới chắn rác kiểu cố định, bề mặt làm việc các dầm ngang cần nằm trên cùng một mặt phẳng, trị số sai lệch giữa điểm cao nhất và điểm thấp nhất không được lớn hơn 3,0 mm.
9.8.4 Sau khi cẩu đặt lưới chắn rác vào khe, cần kiểm tra lưới chắn rác có bị kẹt hay không, kiểm tra sự nối tiếp các mảnh lưới chắn rác khi lắp.
9.8.5 Cần thỏa mãn các điều kiện phù hợp và hiệu quả khi sử dụng máy vớt rác của lưới chắn rác.
9.9 Lắp đặt cầu trục
Cầu trục và đường ray cầu trục phải tuân thủ các quy định trong các tiêu chuẩn liên quan về thiết bị nâng – Yêu cầu về an toàn trong lắp đặt và sử dụng.
9.10 Sơn phủ hoàn thiện
Sau khi lắp đặt phải sơn phủ hoàn thiện toàn bộ thiết bị trước khi chạy thử.
10. Bàn giao, nghiệm thu tại hiện trường
10.1 Nghiêm thu tĩnh
10.1.1 Đơn vị lắp ráp thiết bị cần trình ra hội đồng nghiệm thu các tài liệu sau đây:
a) Bản vẽ thi công của kết cấu bàn giao;
b) Biên bản nghiệm thu của nhà máy chế tạo;
c) Biên bản nghiệm thu vạch tuyến tim lắp ráp;
d) Nhật ký của người kiểm tra;
e) Phiếu ghi tên kết cấu, thiết bị bàn giao;
f) Những sai lệch so với thiết kế, các biên bản xử lý;
g) Biên bản kiểm tra các mối hàn;
h) Bản vẽ hoàn công của phần đã làm;
i) Những sai sót về vật liệu;
j) Chất lượng các mối hàn nối, ghép bu lông và dung sai;
k) Chất lượng gá giữ bảo đảm những phần đặt sẵn trước khi đổ bê tông và sai số sau khi đổ bê tông không sai khác so với thiết kế;
l) Biên bản thử nghiệm.
10.1.2 Sau khi xem xét có đủ hồ sơ, thiết bị đạt đúng chất lượng lắp đặt thì ký biên bản nghiệm thu tĩnh. Thành phần nghiệm thu theo quy định liên quan.
10.2 Nghiệm thu chạy thử không tải
10.2.1 Sau khi nghiệm thu tĩnh, đơn vị lắp ráp tiếp tục hoàn chỉnh, kiểm tra bên ngoài và tiến hành chạy thử nghiệm không tải. Hồ sơ nghiệm thu gồm có:
a) Biên bản nghiệm thu tĩnh;
b) Toàn bộ bản vẽ thi công các thiết bị được lắp đặt hoàn chỉnh trên công trình;
c) Biên bản nghiệm thu tim mốc lắp ráp và các phụ lục;
d) Biên bản nghiệm thu các bộ phận đặt sẵn trước và sau đổ bê tông kèm theo phụ lục;
e) Bản kê các tài liệu, số liệu khi lắp đặt so với thiết kế và các phụ đính bản thảo hoặc bản sao;
f) Bản sao tài liệu về hàn điện khi lắp ráp và các phụ bản;
g) Nhật trình ghi chép của hội đồng kiểm tra các thiết bị cơ khí;
h) Biên bản kiểm tra về khe hở, thử nghiệm áp lực đường ống, các thông số tải trọng, vận tốc, kích thước hình học của thiết bị đóng mở.
10.2.2 Nội dung kiểm tra bên ngoài tại hiện trường:
a) Những sai hỏng bên ngoài của vật liệu;
b) Độ chính xác chế tạo và lắp ráp đạt được;
c) Độ chính xác của bộ phận di trượt đặt sẵn;
d) Chất lượng lắp ráp gioăng chắn nước (độ kín khít khi đóng hết);
e) Chất lượng các mối hàn, mối ghép khi thực hiện tại công trường;
f) Độ chính xác lắp đặt máy đóng mở;
g) Độ ăn khớp của các bộ truyền hở, phanh hãm, độ đồng trục của các bộ truyền kép;
h) Tình trạng làm việc của hệ thống bôi trơn ;
i) Độ ổn định của các cụm và bộ phận bắt chặt;
j) Độ chính xác vị trí của các bộ phận đóng mở;
k) Chất lượng khớp nối co dãn;
l) Kiểm tra chất lượng sơn phủ;
m) Kiểm tra độ chính xác của việc ghi chép các phiếu và tài liệu;
n) Cho chạy thử không tải từng phần theo hành trình đóng mở, kiểm tra hệ thống điều khiển khi đóng hết và mở hết theo thời gian quy định. Sau khi chạy thử theo thời gian quy định và đo đạc các thông số kỹ thuật; nếu đạt được yêu cầu theo thiết kế và tiêu chuẩn đã chọn thì ký biên bản nghiệm thu chạy thử không tải.
10.3 Đo đạc khi chạy thử
Trình tự và nội dung đo đạc khi chạy thử như sau:
a) Chuẩn bị đầy đủ phương tiện thiết bị đo kiểm tra cần thiết, hợp chuẩn;
b) Đo công suất tiêu thụ của động cơ điện ở các chế độ làm việc khác nhau;
c) Đo kiểm tra nhiệt động cơ, cường độ dòng điện, kiểm tra thiết bị điện;
d) Đo tốc độ đóng mở cửa van, thời gian đóng mở;
e) Kiểm tra sự ăn khớp. Đối với bánh răng để hở phải kiểm tra khe hở các bánh răng khi làm việc có tải;
f) Kiểm tra độ chính xác của cáp cuốn lên tang, tốc độ đồng đều của các nhánh cáp đối với máy nâng kép;
g) Kiểm tra sự bôi trơn của các bộ phận;
h) Kiểm tra nhiệt của các bộ phận ổ, phanh hãm, hộp giảm tốc;
i) Kiểm tra sự chính xác và tin cậy của thiết bị phanh hãm, điều khiển, an toàn.
CHÚ THÍCH:
1) Các kết quả trong quá trình kiểm tra, thử nghiệm và kết luận nghiệm thu phải ghi đầy đủ vào biên bản nghiệm thu theo mẫu quy định hiện hành;
2) Sau khi kiểm tra, nghiệm thu nếu có sai sót cần có phương án sửa chữa. Sai sót thuộc đơn vị nào thì đơn vị đó phải bỏ kinh phí thực hiện;
3) Tuỳ theo điều kiện của công trình mà cho nghiệm thu chạy thử có tải. Cách thức nghiệm thu chạy thử có tải tiến hành như nghiệm thu chạy thử không tải, chỉ khác là có tải tác dụng.
PHỤ LỤC A
(Quy đinh)
CÁC BẢNG BIỂU
A 1 Một số loại thép và que hàn được dùng cho kết cấu thép công trình thủy lợi
Bảng A.1
|
Loại |
Mác thép |
Hàn tay |
Hàn dưới lớp thuốc hàn |
Hàn trong khí bảo vệ |
||
|
Mác que hàn |
Mác que hàn |
Mác que hàn |
Khí bảo vệ |
|||
|
Thép các bon |
CT34 CT38 CT42 |
E4316 E4303 E4315 |
H08A |
HJ401 |
H08Mn2SiA |
CO2 |
|
Thép hợp kim thấp |
16Mn 16Mnq 09Mn2 |
E5016 E5015 |
H08MnA H10MnSi H10Mn2 |
HJ401 HJ401 HJ402 |
H08Mn2SiA |
CO2 |
|
15MnV
15MnTi |
E5016 E5015 E5016-G E5015-G |
H08MnA
H10MnSi H10Mn2 |
HJ401
HJ401 HJ402 |
H08Mn2SiA |
CO2 |
|
|
Thép không rỉ |
0Cr18Ni9Ti 1Cr18Ni9Ti |
E0-19-10Nb-16 E0-19-10Nb-15 |
|
|
H0Cr20Ni10Ti H0Cr19Ni9Ti |
Ar Ar |
A 2 Một số loại thép dùng chế tạo cơ khí thủy công
Bảng A.2
|
Tên bộ phận máy |
Vật liệu |
Tên bộ phận máy |
Vật liệu |
|
1. Bộ phận tựa động: bánh xe, trục, đế cối quay, bánh răng, vit me, trục vít |
C45, C45đúc C35, C35 đúc, C50, 65Mn, 20Cr13, 40Cr, 40CrMn, 18CrMnTi, 30Cr13 |
2. Bạc trượt |
БРОЦС 6-6-3 БРАЖЯ 9-4 БРОФ 10-1 |
A.3 Dung sai chiều dài, chiều rộng cho phép khi cắt phôi thép gia công
Bảng A.3
|
Hạng mục |
Sai lệch cho phép về kích thước so với thiết kế, ±mm |
||||||
|
Khi khoảng dài của chi tiết , m |
|||||||
|
<1,5 |
1,5¸2,5 |
2,5¸4,5 |
4,5 9 |
9¸15 |
15¸21 |
> 21 |
|
|
1. Chiều dài, rộng chi tiết |
|
|
|
|
|
|
|
|
– Cắt thủ công bằng ô xi |
2,5 |
3 |
3,5 |
4 |
4,5 |
5 |
|
|
– Cắt nửa tự động, tự động theo khuôn hay đường kẻ |
1,5 |
2 |
2,5 |
3 |
3,5 |
4 |
|
|
– Cắt bằng máy trên đường chuyền tự động |
1 |
1,5 |
2 |
2,5 |
3 |
3,5 |
|
|
– Cắt bằng dao hoặc phay |
0,5 |
1 |
1,5 |
2 |
2,5 |
3 |
|
|
2. Hiệu số chiều dài hai đường chéo của tấm thép |
|
|
|
|
|
|
|
|
– Khi hàn giáp mép |
– |
– |
4 |
5 |
6 |
– |
– |
|
– Khi hàn chồng |
– |
– |
6 |
8 |
10 |
– |
– |
A.4 Độ võng cho phép của trục theo tốc độ quay
Bảng A.4
|
TT |
Tốc độ của trục quay, vg/ph |
Trị số độ võng cho phép, mm |
|
1 |
< 100 |
0,2/1 m dài nhưng nhỏ hơn 0,4 |
|
2 |
100 ¸ 300 |
0,15/1 m dài nhưng nhỏ hơn 0,3 |
|
3 |
> 300 |
0,1/1 m dài nhưng nhỏ hơn 0,2 |
A.5 Sai số chế tạo tang cuốn cáp
Bảng A.5
|
Tên các sai số |
Trị số cho phép, mm |
|
Chiều dày thành tang đúc, tang hàn |
± 0,06 chiều dày thành tang theo thiết kế |
|
Độ ô van |
0,003.Dng |
|
Sai số đường kính so với thiết kế |
± 3 |
|
Sai lệch chiều sâu rãnh để cuốn cáp so với thiết kế |
±1 |
|
Sai lêch về hiệu số đường kính của hai tang trong cùng một cơ cấu (nâng cùng một cửa) |
< 0,5 |
|
Độ côn cho phép |
0,001 |
A 6 Sai số chế tạo bánh xe
Bảng A.6
|
Tên các sai số |
Trị số cho phép, mm |
|
Sai số đường kính làm việc của bánh xe |
± 0,005.D |
|
Sai số chiều rộng làm việc của bánh xe |
0,0 ¸ +2,0 |
|
Độ ô van và độ côn bề mặt lăn |
± 0,005.D |
|
Dung sai lắp ghép giữa trục và bạc |
Theo IT9 (H9/d9) |
|
Dung sai lắp ghép giữa bánh xe và bạc |
Theo IT8 (H8/t8) |
|
Sai số bán kính chuyển tiếp từ bề mặt lăn đến bề mặt mép bánh xe |
0,0 ¸+2,0 |
A 7 Sai số chế tạo ròng rọc
Bảng A.7
|
Tên các sai số |
Trị số cho phép, mm |
|
Sai số khe hở giữa dưỡng và biên dạng rãnh (đo từ phía dưới lên hay cùng một phía) |
0,5 |
|
Độ đảo hướng tâm của rãnh |
0,2 |
|
Độ xê dịch tâm biên dạng đĩa so với tâm đĩa |
± 0,1 |
A.8 Bán kính cong và độ võng cho phép để tiến hành uốn nắn nguội
Bảng A.8

A.9 Chất lượng bề mặt và mặt cắt của vật liệu
Bảng A.9
A .10 Sai số kích thước giữa mặt phẳng gia công của các kết cấu máy
Bảng A.10
Đơn vị tính tính bằng mm
|
Kích thước |
Dung sai |
Kích thước |
Dung sai |
|
10 ¸ 50 |
± 0,3 |
1.501 ¸ 2.500 |
± 1,5 |
|
51 ¸ 120 |
± 0,5 |
2.501 ¸ 3.500 |
± 2,0 |
|
121 ¸ 260 |
± 0,6 |
3.50 1 ¸ 5.000 |
± 2,5 |
|
261 ¸ 500 |
± 0,8 |
5.001 ¸ 10.000 |
± 3,0 |
|
501 ¸7 50 |
± 0,9 |
10.001 ¸15.000 |
± 4,0 |
|
751 ¸1.000 |
± 1,0 |
15.001 ¸20.000 |
± 5,0 |
|
1.000 ¸15.000 |
± 1,2 |
|
|
A.11 Sai lệch cho phép của kích thước dài các chi tiết kết cấu khi cắt
Bảng A.11
|
TT |
Hạng mục |
Chiều dài của chi tiết kết cấu, m |
||||||
|
<1,5 |
1,5-2,5 |
2,5-4,5 |
4,5-9,0 |
9,0-15,0 |
15,0-21,0 |
>21,0 |
||
|
1 |
Sai lệch về chiều dài, chiều rộng chi tiết |
|
|
|
|
|
|
|
|
|
– Cắt thủ công bằng ô xy, mm |
± 2,5 |
± 3,0 |
± 3,5 |
± 4,0 |
± 4,5 |
± 5,0 |
|
|
|
– Cắt nửa tự động, tự động theo khuôn hay đường kẻ, mm |
± 1,5 |
± 2,0 |
± 2,5 |
± 3,0 |
± 3,5 |
± 4,0 |
|
|
|
– Cắt bằng máy trên đường chuyền tự động, mm |
± 1,0 |
± 1,5 |
± 2,0 |
± 2,5 |
± 3,0 |
± 3,5 |
|
|
|
– Cắt bằng dao hoặc phay, mm |
± 0,5 |
± 1,0 |
± 1,5 |
± 2,0 |
± 2,5 |
± 3,0 |
|
|
2 |
Sai lệch về hiệu số chiều dài hai đường chéo của tấm thép |
|
|
|
|
|
|
|
|
|
– Khi hàn giáp mép, mm |
|
|
± 4,0 |
± 5,0 |
± 6,0 |
|
|
|
|
– Khi hàn chống, mm |
|
|
± 6,0 |
± 8,0 |
± 10,0 |
|
|
A.12 Sai số kích thước cho phép của thép hình khi cắt
Bảng A.12

A.13 Dung sai đường kính của lỗ khoan lắp bu lông
Bảng A.13
Đơn vị tính tính bằng mm
|
Ký hiệu bulông |
Đường kính thân bulông , mm |
Đường kính lỗ bulông và sai số cho phép, mm |
||
|
Loại thô |
Loại tinh |
Loại thô |
Loại tinh |
|
|
M12 |
12 |
12,8 |
13 (0,+ 0,5) |
13 (0,+ 0,2) |
|
M14 |
14 |
14,8 |
15 (0,+ 0,5) |
15 (0,+ 0,2) |
|
M16 |
16 |
16,8 |
17 (0,+ 0,5) |
17 (0,+0,2) |
|
M18 |
18 |
19,0 |
19 (0,+ 0,5) |
19 (0,+ 0,3) |
|
M20 |
20 |
20,7 |
21 (0,+ 0,5) |
21 (0,+ 0,3) |
|
M22 |
22 |
22,7 |
23 (0,+ 0,5) |
23 (0,+ 0,3) |
|
M24 |
24 |
25,6 |
26 (0,+1,0) |
26 (0,+ 0,3) |
|
M27 |
27 |
27,6 |
29 (0,+1,0) |
29 (0,+ 0,3) |
|
M30 |
30 |
31,6 |
32 (0,+1,0) |
32 (0,+ 0,4) |
|
M36 |
36 |
37,5 |
38 (0,+1,0) |
38 (0,+ 0,4) |
|
M42 |
42 |
44,5 |
45 (0,+1,0) |
45 (0,+ 0,4) |
A. 14 Sai số cho phép của lỗ khoan khi lắp ghép từ các chi tiết rời
Bảng A.14
|
Quy cách |
Tên sai lệch |
Trị số cho phép, mm |
Tỷ lệ sai lệch cho phép của các lỗ trong một cụm chi tiết |
|
Mối ghép bu lông thô |
Độ không trùng khớp |
< 0,5 |
Cho phép |
|
0,5¸1 |
50 % |
||
|
1,0 1,5 |
10 % |
||
|
Độ xiên đường tâmD |
3% s<D < 2 |
Cho phép |
|
|
D> 2 |
Không cho phép |
||
|
Mối ghép bu lông tinh |
Độ không trùng khớp |
< 0,1 |
Cho phép |
|
0,1¸0,3 |
25 % |
||
|
> 0,3 |
Không cho phép |
||
|
Độ xiên đường tâm D |
1 % s<D < 1 |
Cho phép |
|
|
D> 1 |
Không cho phép |
A.15 Các hình minh họa

A.16 Sai số kích thước cho phép của tiết diện ghép hàn
Bảng A.15

A.17 Sai số chế tạo bộ phận đặt sẵn
Bảng A.16

A.18 Sai số chế tạo bộ phận đặt sẵn – ray và tựa gioăng chắn nước
Bảng A.17

A.19 Sai số độ phẳng, thẳng cho phép của ray theo chiều dài
Bảng A.18
|
Độ dài đường chạy, mm |
Loại sai số |
||
|
Độ lõm của đường ray, mm |
Độ lõm của mặt chịu áp làm đường chạy, mm |
Độ phẳng của đường ray, mm |
|
|
|
0,15 |
0,20 |
0,4 |
|
|
0,20 |
0,30 |
0,5 |
|
|
0,25 |
0,40 |
0,6 |
|
|
0,30 |
0,50 |
0,8 |
|
|
0,40 |
0,60 |
1,0 |
A.20 Sai số cấu kiện đặt sẵn cho tường ngực và tấm tựa gioăng chắn nước
Bảng A.19

A.21 Sai lệch cho phép khi gia công cửa van phẳng
Bảng A.20

Bảng 20 (tiếp theo)






A.27 Sai số cho phép của lưới chắn rác
Bảng A.26
|
Hạng mục |
Dung sai và sai lệch cho phép, mm |
|
1. Độ phẳng bề mặt làm việc |
1/1 000 chiều dài cấu kiện, nhưng không lớn hơn 6 mm |
|
2. Độ phẳng bề mặt bên |
1/750 chiều dài cấu kiện, nhưng không lớn hơn 8 mm |
|
3. Độ phẳng cục bộ bề mặt làm việc |
Không lớn hơn 2 mm trên 1 m2 diện tích |
|
4. Độ uốn cong |
Không lớn hơn 3 mm |
A.28 Các phương pháp kiểm tra chất lượng mối hàn kết cấu thép
Bảng A.27
|
Phương pháp kiểm tra |
Dạng kết cấu |
|
1. Rà soát toàn bộ các bước trong quy trình công nghệ hàn |
Tất cả các kết cấu |
|
2. Quan sát bề ngoài bằng kính lúp và đo kích thước mối hàn bằng dưỡng để so sánh với thiết kế |
Tất cả các kết cấu |
|
3. Kiểm tra xác suất mối hàn bằng siêu âm hoặc bằng tia phát xạ xuyên thấu |
Các cửa van loại vừa và lớn |
|
4. Kiểm tra 100 % mối hàn bằng siêu âm |
Các kết cấu chịu lực chính do thiết kế quy định. |
|
Phương pháp kiểm tra |
Dạng kết cấu |
|
5. Kiểm tra bằng thấm dầu hoả trong 2 giờ hoặc chân không |
Kết cấu thép dạng tấm và mối hàn yêu cầu kín, đặc. |
|
6. Thử mối hàn bằng thuỷ lực và khí nén |
Theo yêu cầu thiết kế |
|
7. Kiểm tra bằng phương pháp không phá hỏng liên kết |
Dạng kết cấu do thiết kế quy định |
|
8. Thử nghiệm cơ tính trên các mẫu |
Do thiết kế yêu cầu và quy định |
|
9. Quan sát kim tương mối hàn |
Do thiết kế yêu cầu và quy định |

A.30 Cho phép xử lý khuyết tật mối hàn
Bảng A.29
|
Loại khuyết tật cho phép xử lý |
Phương pháp xử lý |
|
1. Lồi lõm, lẹm trên bề mặt bản thép |
Phải hàn đắp và dùng máy mài, phay bằng mặt thép hàn, tạo nên chỗ chuyển tiếp đều từ kim loại mối hàn đến thép hàn |
|
2. Hàn chưa ngấu nên có bọt, xỉ, rỗ.. |
Loại bỏ khuyết tật bằng cách tạo rãnh lòng máng và hàn đắp lại |
|
3. Lồi lõm trên bề mặt mạch hàn |
Dùng máy mài sửa bằng mặt |
|
4. Khuyết chân mối hàn |
Độ sâu < 0,5 mm thì dùng máy mài nhẵn. Độ sâu lớn thì hàn đắp và mài bằng mặt |
|
5. Lấn đè lên nhau |
Dùng máy mài tạo lòng máng và hàn đắp lại |
|
6. Nứt ở chi tiết chịu hàn do uốn |
Xác định nguyên nhân gây nứt, tẩy bỏ toàn bộ phần nứt và hàn đắp lại một cách cẩn trọng để tránh bị nứt lại. Đối với chi tiết chịu lực: khoan chặn các đầu nứt 15 mm bằng mũi khoan F5 mm – F8 mm, vát mép đường nứt và hàn đắp lại. |
|
7. Khuyết tật duy nhất : bọt khí, ngậm xỉ |
Cho phép khoan lỗ và hàn vá lại lỗ. Nếu dùng dây hàn f2 thì mũi khoan là F8 mm – F16 mm, chiều sâu lỗ < 50 mm, góc côn lỗ 60 mm – 120 mm. Nếu dùng dây hàn f5 thì múi khoan là F15 mm – F28 mm, chiều sâu lỗ < 100 mm, góc côn lỗ 70 mm -120 mm |
|
8. Khuyết tật trên toàn bộ mối hàn lớn hơn trị số cho phép |
Loại bỏ bằng phương pháp cơ khí, thổi ô xy (cấm dùng hồ quang) sau đó tiến hành hàn lại và kiểm tra lại mối hàn đó. |
|
CHÚ THÍCH: Quá trình nắn sửa cong vênh do hàn phải rất thận trọng để không gây hư hại các chi tiết đã hàn và các kết cấu đã được tổ hợp. |
|
A.31 Sai số cho phép khi lắp ráp
Bảng A.30
|
Bộ phận lắp |
Tên các sai số |
Trị số cho phép |
|
|
Hộp giảm tốc kín |
Khe hở hướng tâm răng |
Theo TCVN hiện hành |
|
|
Khe hở biên của răng |
Theo TCVN hiện hành |
||
|
Sai số khoảng cách trục |
Theo TCVN hiện hành |
||
|
Bộ truyền hở
Bộ truyền hở
|
Vết tiếp xúc mặt răng khi lắp ghép theo diện tích |
Tiếp xúc trên 40% diện tích |
|
|
Chiều dài tiếp xúc |
Trên 30% B |
||
|
Khe hở hướng tâm: – Đối với răng tiêu chuẩn – Đối với răng ngắn |
0,2 mô đuyn 0,25 mô đuyn |
||
|
Khe hở mặt bên của răng |
Khoảng cách giữa các tâm, mm |
Trị số cho phép, mm |
|
|
Đến 50 |
0,08 ¸0,17 |
||
|
51¸80 |
0,10 ¸0,21 |
||
|
81¸120 |
0,13 ¸0,26 |
||
|
121¸200 |
0,17¸0,34 |
||
|
201¸320 |
0,21 0,42 |
||
|
321¸500 |
0,26 ¸0,53 |
||
|
501¸800 |
0,34 ¸0,67 |
||
|
801¸1 250 |
0,42 ¸0,85 |
||
|
1 251¸2 000 |
0,53 ¸1,06 |
||
|
2 001¸3 150 |
0,71¸1,40 |
||
|
3 151¸5 000 |
0,85¸1,70 |
||
|
Các trục truyền của bộ truyền hở và hộp giảm tốc hở |
Độ dịch chuyển trục theo tim trục theo khoảng cách giữa các ổ trục |
Khoảng cách giữa các ổ trục, mm |
Trị số cho phép, mm |
|
100¸400 |
0,10¸0,50 |
||
|
401¸600 |
0,50¸0,70 |
||
|
601¸800 |
0,70¸0,90 |
||
|
801¸1000 |
0,90¸1,10 |
||
|
1 001¸1 500 |
1,10¸1,40 |
||
|
1 501¸2 000 |
1,40¸1,70 |
||
|
Chú ý: Riêng bánh răng chữ V không có độ dịch chuyển trục theo tim trục |
|||
Bảng A.30 (tiếp theo)
|
Bộ phận lắp |
Tên các sai số |
Trị số cho phép |
|
||
|
Các ổ trượt |
Khe hở giữa đường kính trong của bạc đồng và trục theo đường kính trục |
Đường kính trục, mm |
Trị số cho phép, mm |
||
|
30¸50 |
0,05¸0,02 |
||||
|
51¸80 |
0,06¸0,24 |
||||
|
81¸120 |
0,08¸0,26 |
||||
|
121¸180 |
0,08 0,28 |
||||
|
181¸260 |
0,09 ¸0,30 |
||||
|
261¸360 |
0,10¸0,35 |
||||
|
Tiếp xúc trục và bạc lót ổ theo vận tốc |
Trục quay < 300vg/ph |
Độ áp sát bề mặt > 55% |
|||
|
Trục quay > 300vg/ph |
Độ áp sát bề mặt > 65% |
||||
|
Đường kính ngoài bạc lót và lỗ trên vỏ hộp |
|
|
|||
|
Ổ bi |
Đường kính trong và ngoài |
Phụ thuộc vòng trong hay vòng ngoài quay |
Theo TCVN hiện hành |
||
|
Các bộ phận phanh hãm |
Độ không đồng tâm của má phanh và bánh phanh |
0,1 mm/100 mm chiều rộng má phanh |
|||
|
Khe hở giữa 2 má phanh và mặt đai đều nhau |
1,0 mm ¸1,5 mm |
||||
|
Khe hở hướng tâm của phanh đai khi nhả hết |
1,0 mm ¸1,5 mm |
||||
|
Độ đảo hướng tâm và mặt đầu của bánh phanh |
0,05 mm |
||||
|
Độ tiếp xúc của bề mặt má phanh lên mặt bánh |
100% |
||||
|
Hiệu chỉnh khi lắp lên bệ máy |
Các tấm đệm đế hộp giảm tốc, động cơ, gối đỡ |
< 2 tấm theo chiều cao |
|||
|
Phần bu lông nhô khỏi đai ốc khi vặn chặt |
2 ¸ 5 vòng ren |
||||
|
Độ không đồng tâm trục động cơ và hộp giảm tốc, gối đỡ |
< 0,3 mm |
||||
|
Bôi trơn |
Hộp giảm tốc kín bằng dầu |
< 1/3 |
|||
|
Hộp giảm tốc hở, bạc… bằng mỡ |
Theo yêu cầu |
||||
A.32 Nhiệt độ dầu trong hộp giảm tốc cho phép khi chạy thử
Bảng A.31
|
Loại hộp giảm tốc |
Nhiệt độ môi trường, oC |
Nhiệt độ cuối thời gian thử, oC |
|
Răng trụ và côn xoắn |
10 ¸20 |
40 |
|
Bánh vít trục vít |
10¸20 |
60 |
A.33 Nhiệt độ ổ trượt cho phép khi chạy thử
Bảng A.32
|
Tốc độ quay của trục, vg/ph |
Nhiệt độ cuối thời gian thử, oC |
|
20 |
Không lớn hơn nhiệt độ môi trường |
|
20 ¸100 |
Cho phép lớn hơn 20 0C so với môi trường |
|
> 100 |
Cho phép lớn hơn 30 0C so với môi trường |
A.34 Lắp ráp các bộ phận tựa động
Bảng A.33
|
Loại cửa van |
Kích cỡ |
Các bộ phận |
Điều kiện |
|
Cửa van phẳng |
Đúng cỡ |
Bánh xe, bộ phận trượt |
Phải lắp và điều chỉnh tại nhà máy sau khi đã hàn kết cấu hoàn chỉnh |
|
Bánh xe cữ |
Lắp tại hiện trường |
||
|
Loại một tai treo phải cân bằng sau khi lắp hoàn chỉnh |
Độ nghiêng tim hình học thẳng đứng không lớn hơn 1 mm/1 m chiều dài |
||
|
Loại hai tai treo |
Sai số 2 vít khi nâng hết khe van không lớn hơn 0,5 mm/1 m chiều dài |
||
|
Ngoại cỡ |
Kết cấu thép |
Phải gá lắp định hình tổng thể tại nhà máy, xác định đường chuẩn, chốt định vị, số thứ tự, đánh dấu bằng sơn dễ phân biệt |
|
|
Bộ phận kéo (tời, vít me, xi lanh thuỷ lực) |
Phải kiểm tra lên xuống từng đôi một. |
||
|
Cửa van cung |
Đúng cỡ |
Bánh xe, bộ phận trượt |
Phải lắp và điều chỉnh tại nhà máy sau khi đã hàn kết cấu hoàn chỉnh |
|
Bộ phận kéo (tời, xi lanh thủy lực) |
Sai số 2 nhánh khi nâng hết khe van không lớn hơn 0,5 mm/1 m chiều dài |
||
|
Ngoại cỡ |
Kết cấu thép |
Phải gá lắp định hình tổng thể tại nhà máy, xác định đường chuẩn, chốt định vị, số thứ tự, đánh dấu bằng sơn dễ phân biệt. |
|
|
Bộ phận kéo (Tời, |
Phải kiểm tra lên xuống từng đôi một. |



A.39 Sai số cho phép khi lắp đặt cối quay
Bảng A.38
|
Hạng mục |
Dung sai và sai lệch, mm |
|
1. Cự ly giữa tâm bệ khớp và tim lỗ. 2. Cao trình. 3. Độ nghiêng lỗ bệ đỡ. 4. Độ đồng trục 2 tim trục cối quay bệ đỡ. |
± 1.5 ± 2.0 l/1000 2.0 |
CHÚ THÍCH:
Độ nghiêng lỗ trục bệ đỡ chỉ độ nghiêng theo hướng bất kỳ.
A.40 Sai lệch bộ phận đặt sẵn lưới chắn rác
Bảng A.39
|
Hạng mục |
Ngưỡng đáy |
Đường ray chính |
Đường ray ngược |
|
Sai lệch cho phép, mm |
|||
|
1. Cao trình (phía trong) |
±5,0 |
|
|
|
2. Cao trình |
±5,0 |
|
|
|
3. Sai lệch chiều cao giữa hai mặt đầu bề mặt làm việc |
3,0 |
|
|
|
4. Đường tâm khe của lưới chắn rác |
|
+3,0 -2.0 |
+5,0 -2,0 |
|
5. Đường tâm miệng khe lưới chắn rác |
±5,0 |
±5,0 |
±5,0 |
A.41 Tiêu chuẩn dung sai lắp ghép bề mặt trơn
Bảng A.40 – Sai số kích thước giữa mặt phẳng không gia công của các kết cấu
|
Kích thước, mm |
Dung sai, mm |
Kích thước, mm |
Dung sai, mm |
|
250 ¸ 600 |
± 2,0 |
5 001 ¸ 6 000 |
± 7,0 |
|
601 ¸ 1 500 |
± 3,0 |
6 001 ¸ 8 000 |
± 8,0 |
|
1 501 ¸ 3 000 |
± 4,0 |
8 001 ¸ 10 000 |
± 9,0 |
|
3 001 ¸ 4 000 |
± 5,0 |
10 001 ¸ 15 000 |
± 10,0 |
|
4 001 ¸ 5 000 |
± 6,0 |
15 001 ¸ 20 000 |
± 11,0 |
|
|
|
> 20 001 |
± 12,0 |
Bảng A.41 – Công thức tính trị số dung sai tiêu chuẩn (IT=a.i)
|
Kích thước danh nghĩa, mm |
Cấp dung sai tiêu chuẩn |
||||||
|
IT5 |
IT6 |
IT7 |
IT8 |
IT9 |
IT10 |
||
|
Trên |
đến |
Công thức tính dung sai tiêu chuẩn (kết quả tính bằng micrômét) |
|||||
|
– |
500 |
7i |
10i |
16i |
25i |
40i |
64i |
|
500 |
3150 |
7i |
10i |
16i |
25i |
40i |
64i |
|
Kích thước danh nghĩa, mm |
Cấp dung sai tiêu chuẩn |
||||||||
|
IT11 |
IT12 |
IT13 |
IT14 |
IT15 |
IT16 |
IT17 |
IT 18 |
||
|
Trên |
đến |
Công thức tính dung sai tiêu chuẩn (kết quả tính bằng mic rômét) |
|||||||
|
– |
500 |
100i |
160i |
250i |
400i |
640i |
1 000i |
1 600i |
2 500i |
|
500 |
3 150 |
100i |
160i |
250i |
400i |
640i |
1 000i |
1 600i |
2 500i |
Bảng A.42 – Trị số dung sai tiêu chuẩn
|
Kích thước danh nghĩa, mm |
Cấp dung sai tiêu chuẩn |
||||||||
|
IT11 |
IT12 |
IT13 |
IT14 |
IT15 |
IT16 |
IT17 |
IT 18 |
||
|
Trên |
đến |
Dung sai, mm |
|||||||
|
50 |
80 |
0,19 |
0,30 |
0,46 |
0,74 |
1,20 |
1,90 |
3,00 |
4,60 |
|
80 |
120 |
0,22 |
0,35 |
0,54 |
0,87 |
1,40 |
2,20 |
3,50 |
5,40 |
|
120 |
180 |
0,25 |
0,40 |
0,63 |
1,00 |
1,60 |
2,50 |
4,00 |
6,30 |
|
180 |
250 |
0,29 |
0,48 |
0,72 |
1,15 |
1,85 |
2,90 |
4,60 |
7,20 |
|
250 |
315 |
0,32 |
0,52 |
0,81 |
1,30 |
2,10 |
3,20 |
5,20 |
8,10 |
|
315 |
400 |
0,36 |
0,57 |
0,89 |
1,55 |
2,30 |
3,60 |
5,70 |
8,90 |
|
400 |
500 |
0,40 |
0,63 |
0,97 |
1,75 |
2,50 |
4,00 |
6,30 |
9,70 |
|
500 |
630 |
0,44 |
0,70 |
1,10 |
2,00 |
2,80 |
4,40 |
7,00 |
11,00 |
|
630 |
800 |
0,50 |
0,80 |
1,25 |
2,30 |
3,20 |
5,00 |
8,00 |
12,50 |
|
800 |
1 000 |
0,56 |
0,90 |
1,40 |
2,60 |
3,60 |
5,60 |
9,00 |
14,00 |
|
1 000 |
1 250 |
0,66 |
1,05 |
1,65 |
3,10 |
4,20 |
6,60 |
10,50 |
16,50 |
|
1 250 |
1 600 |
0,78 |
1,25 |
1,95 |
3,70 |
5,00 |
7,80 |
12,50 |
16,50 |
|
1 600 |
2 000 |
0,92 |
1,50 |
2,30 |
4, 40 |
6,00 |
9,20 |
15,00 |
23,00 |
|
2 000 |
2 500 |
1,10 |
1,75 |
2,80 |
5,40 |
7,00 |
11,00 |
17,50 |
28,00 |
|
2 500 |
3 150 |
0,19 |
2,10 |
3,30 |
0,74 |
8,60 |
13,50 |
21,00 |
33,00 |
PHỤ LỤC B
(tham khảo)
HÀN KIM LOẠI


Bảng B.2 – Đối chiếu tương đương các loại thép theo tiêu chuẩn một số nước
|
Loại thép |
Mác thép |
|||||
|
TCVN |
DIN |
ASTM |
JIS |
GB |
Nga |
|
|
Thép các bon kết cấu thông thường |
CT31 |
USt 37-2 RSt 37-2 |
– |
– |
|
|
|
CT33 |
– |
– |
|
|
||
|
CT34 |
A36A, A36M-94 |
SS330 |
|
|
||
|
CT38 |
A570Gr33,36 |
SS330 |
C3;CY3; CJ3 |
|
||
|
CT42 |
A570Gr40 |
SS400 |
|
|
||
|
CT51 |
A570Gr50 |
SS490 |
|
|
||
|
|
A572Gr50 |
– |
|
|
||
|
CT61 |
A572Gr65 |
SS540, SM570 |
|
|
||
|
Thép kết cấu hợp kim thấp |
09Mn2 |
StE355 TstE 355 TstE 460 |
– |
– |
09Mn2 |
09Mn2 |
|
19Mn |
– |
– |
|
|
||
|
14Mn2 |
A516Gr70, |
|
14Mn2 |
14Mn2 |
||
|
|
A515Gr70, |
|
|
|
||
|
|
A414Gr F, G |
|
|
|
||
|
18Mn2 |
A537Gr1 |
SGV410, SGV450 |
|
|
||
|
|
A414GrG, A612 |
SGV480 |
|
|
||
|
09Mn2Si |
– |
– |
09Mn2Si |
09Mn2Si |
||
|
17MnSi |
A288/A288 M-93a |
SM490A,B,C,YA,YB |
|
|
||
|
|
|
SM570, SM520B,C |
|
|
||
|
10Mn2Si1 |
– |
– |
10Mn2Si1 |
10Mn2Si1 |
||
|
15MnV |
A588 |
SM490A,B,C,YA,YB |
|
|
||
|
Thép không rỉ |
14CrMnSi |
WTSt 360-3 WTSt 510-3 |
– |
– |
14CrMnSi |
14CrMnSi |
|
10CrSiNiCu |
|
|
10CrSiNiCu |
10CrSiNiCu |
||
|
15CrSiNiCu |
|
|
15CrSiNiCu |
15CrSiNiCu |
||
|
0Cr19Ni9 |
|
|
0Cr19Ni9 |
|
||
|
1Cr18Ni9 |
|
|
1Cr18Ni9 |
|
||
|
1Cr18Ni11Ti |
|
|
1Cr18Ni11Ti |
|
||
|
0Cr18Ni9Ti |
|
|
0Cr18Ni9Ti |
|
||




PHỤ LỤC C
(tham khảo)
BU LÔNG LẮP GHÉP

PHỤ LỤC D
(tham khảo)
CHỈ TIÊU CƠ LÝ CỦA VẬT LIỆU CHẮN NƯỚC

PHỤ LỤC E
(tham khảo)
XÍCH

Bảng E.1 – Các tiêu chuẩn của xích thường dung (tiếp theo)
|
Ký hiệu xích |
Thông số cơ bản, mm |
Kích thước ngoài không lớn hơn, mm |
Khối lượng 1m xích, kg |
||||||
|
Bước t |
Khoảng cách giữa các má trong B, không nhỏ hơn |
Đường kính con lăn D |
Đường kính chốt d |
Tải trọng phá huỷ không nhỏ hơn, N |
Chiều rộng má trong b |
Chiều rộng A |
Chiều dài chốt l |
||
|
CLD-63,5-55000 |
63,5 |
19,05 |
19,05 |
9,55 |
55.000 |
30,18 |
27,46 |
46,0 |
2,60 |
|
CLD-76,2-100000 |
76,2 |
25,4 |
22,23 |
11,12 |
100.000 |
36,10 |
35,46 |
56,9 |
3,80 |
|
Xích kiểu CLK và CLN – Xích truyền động con lăn một dẫy loại khoẻ và loại nặng: |
|||||||||
|
CLK-19,05-32000 |
19,05 |
12,07 |
11,91 |
5,96 |
32.000 |
18,06 |
17,75 |
30,6 |
1,52 |
|
CLK-25,4-60000 |
25,4 |
15,88 |
15,88 |
7,95 |
60.000 |
24,13 |
22,61 |
38,5 |
2,57 |
|
CLK-31,75-89000 |
31,75 |
19,05 |
19,05 |
9,55 |
89.000 |
30,18 |
27,46 |
46,0 |
3,73 |
|
CLK-38,1-127000 |
38,1 |
25,40 |
22,23 |
11,12 |
127.000 |
36,1 |
35,40 |
56,9 |
5,50 |
|
CLK-44,45-172000 |
44,45 |
25,40 |
25,40 |
12,72 |
172.000 |
42,24 |
37,19 |
61,5 |
7,50 |
|
CLK-50,8-227000 |
50,6 |
31,75 |
28,58 |
14,29 |
227.000 |
48,26 |
45,21 |
72,0 |
9,70 |
|
CLK-63,5-354000 |
63,5 |
38,1 |
39,80 |
19,86 |
354.000 |
60,33 |
54,89 |
89,0 |
16,0 |
|
CLK-63,5-520000 |
63,5 |
38,10 |
39,80 |
22,20 |
520.000 |
60,33 |
57,39 |
103,2 |
19,5 |




