Nội dung toàn văn Tiêu chuẩn quốc gia TCVN 8868:2011 về Thí nghiệm xác định sức kháng cắt không cố kết – Không thoát nước và cố kết – Thoát nước của đất dính trên thiết bị nén ba trục
TIÊU CHUẨN VIỆT NAM
TCVN 8868:2011
THÍ NGHIỆM XÁC ĐỊNH SỨC KHÁNG CẮT KHÔNG CỐ KẾT – KHÔNG THOÁT NƯỚC VÀ CỐ KẾT – THOÁT NƯỚC CỦA ĐẤT DÍNH TRÊN THIẾT BỊ NÉN BA TRỤC
Test method for Unconsolidated – Undrained and Consolidated – Drained for cohesive soils on triaxial compression equipment
Lời nói đầu
TCVN 8868:2011 do Viện Khoa học và Công nghệ Giao thông Vận tải biên soạn, Bộ Giao thông Vận tải đề nghị, Tổng cục Tiêu chuẩn Đo lường Chất lượng thẩm định, Bộ Khoa học và Công nghệ công bố.
THÍ NGHIỆM XÁC ĐỊNH SỨC KHÁNG CẮT KHÔNG CỐ KẾT – KHÔNG THOÁT NƯỚC VÀ CỐ KẾT – THOÁT NƯỚC CỦA ĐẤT DÍNH TRÊN THIẾT BỊ NÉN BA TRỤC
Test method for Unconsolidated – Undrained and Consolidated – Drained for cohesive soils on triaxial compression equipment
1 Phạm vi áp dụng
Tiêu chuẩn này qui định trình tự thí nghiệm để xác định sức kháng cắt không cố kết – không thoát nước; cố kết – không thoát nước và cố kết – thoát nước của đất dính trên thiết bị nén ba trục.
TIêu chuẩn thí nghiệm này nằm trong hệ thống của tiêu chuẩn thí nghiệm địa chất công trình phục vụ tính toán thiết kế nền móng công trình xây dựng.
2 Tài liệu viện dẫn
Các tài liệu viện dẫn sau là cần thiết cho việc áp dụng các tiêu chuẩn này. Đối với các tài liệu viện dẫn ghi năm công bố thì áp dụng bản được nêu. Đối với các tài liệu viện dẫn không ghi năm công bố thì áp dụng phiên bản mới nhất, bao gồm cả các sửa đổi (nếu có).
TCVN 4195 – Đất xây dựng – Phương pháp xác định khối lượng riêng trong phòng thí nghiệm;
TCVN 4196 – Đất xây dựng – Phương pháp xác định độ ẩm và độ hút ẩm trong phòng thí nghiệm;
TCVN 4202 – Đất xây dựng – Các phương pháp xác định khối lượng thể tích trong phòng thí nghiệm.
3 Thuật ngữ và định nghĩa
3.1 Độ lệch ứng suất (deviator stress):
Độ lệch ứng suất (s1 – s3) là độ chênh lệch giữa ứng suất chính lớn nhất (s1 ) và nhỏ nhất (s3 ).
3.2 Biến dạng dọc trục tương đối ( cumulative strain):
Biến dạng dọc trục tương đối (ɛ) là sự thay đổi kích thước được thể hiện bằng tỷ lệ hoặc phần trăm so với kích thước ban đầu.
3.3 Áp lực buồng (cell pressure):
Áp lực buồng (s3 ) là áp lực của dung dịch chứa trong buồng để tạo nên một ứng suất đều lên mẫu.
Trong thí nghiệm nén hướng trục đó là ứng suất chính nhỏ nhất toàn phần.
3.4 Áp lực nước lỗ rỗng (pore pressure):
Áp lực nước lỗ rỗng (u) là áp lực nước trong các lỗ rỗng giữa các hạt rắn của mẫu đất đo được trong thí nghiệm ba trục.
3.5 Áp lực ngược (back pressure):
Áp lực ngược (ub) là áp lực tác dụng trực tiếp lên nước trong lỗ rỗng của mẫu.
3.6 Áp lực hông hiệu quả (effective confining pressure):
Áp lực hông hiệu quả (s3-u) là sự chênh lệch giữa áp lực buồng và áp lực nước lỗ rỗng.
3.7 Áp lực cố kết hiệu quả (effective consolidation pressure):
Áp lực cố kết hiệu quả (s3-ub) là sự chênh lệch giữa áp lực buồng và áp lực nước trong lỗ rỗng mà nhờ ó nước lỗ rỗng thoát ra trong quá trình cố kết.
3.8 Phá hoại (failure).
Tiêu chuẩn cho điều kiện ứng suất tại thời điểm phá hoại là:
(a) Giá trị lớn nhất của ứng suất lệch, là sự khác nhau của các ứng suất chính, kí hiệu (s‘1– s‘3)f ;
(b) Giá trị lớn nhất của tỉ số ứng suất chính hiệu quả (s‘1– s‘3);
(c) Khi cắt liên tục với áp lực nước lỗ rỗng không thay đổi (không thoát nước) hoặc không có sự thay đổi về thể tích (có thoát nước), trong cả hai trường hợp với ứng suất cắt không thay đổi.
3.9 Độ bền kháng cắt lớn nhất (shear strength):
Độ bền kháng cắt lớn nhất (t1) là ứng suất cắt trên mặt phẳng phá hoại, là sức kháng cắt cực đại.
3.10 Vòng tròn Mohr ứng suất hiệu quả ( mohr circle of effective stress failure):
Vòng tròn Mohr ứng suất hiệu quả (có hiệu) tại thời điểm phá hoại: Vòng tròn Mohr thể hiện trạng thái của ứng suất hiệu quả tại thời điểm phá hoại, đường kính xác định bởi các điểm đặc trưng cho ứng suất chính hiệu quả lớn nhất và nhỏ nhất tại thời điểm phá huỷ.
3.11 Góc ma sát trong theo ứng suất hiệu quả (angle of shear resistance in terms of effective stress):
Góc ma sát trong theo ứng suất hiệu quả (j‘) là độ dốc của đường bao ứng suất hiệu quả Mohr – Coulomb (Xem chú thích 3.13).
3.12 Lực dính kết theo ứng suất hiệu quả (cohesion intercept in terms of effective stress):
Lực dính kết theo ứng suất hiệu quả (c’) là phần bị chặn của đường bao ứng suất hiệu quả Mohr – Coulomb.
CHÚ THÍCH: j‘ và c’ cũng được gọi là các thông số của lực kháng cắt hiệu quả.
3.13 Các hệ số áp lực nước lỗ rỗng A và B ( pore pressure coefficients A and B):
Các hệ số áp lực nước lỗ rỗng A và B. Những thay đổi trong ứng suất toàn phần tác động lên mẫu khi cắt không thoát nước gây nên sự thay đổi của áp lực nước lỗ rỗng theo công thức:
Δu = B x [Δs3 + A x (Δ s1 – s3)] (1)
trong đó:
Δu là biến đổi áp lực nước lỗ rỗng;
Δs3 là biến đổi ứng suất chính toàn phần nhỏ nhất;
(Δs1 – Δs3) là biến đổi độ lệch ứng suất;
A và B là các hệ số áp lực nước lỗ rỗng.
CHÚ THÍCH : Trong đất bão hoà (trừ đất trạng thái cứng), giá trị B theo lý thuyết là bằng 1.
3.14 Hệ số áp lực nước lỗ rỗng tại thời điểm phá hoại (pore pressure coefficients at failure):
Hệ số áp lực nước lỗ rỗng tại thời điểm phá hoại (Af) là giá trị hệ số áp lực nước lỗ rỗng tại thời điểm mẫu bị phá hoại.
3.15 Thời gian tới phá hoại theo tính toán (calculated time to failure):
Thời gian tới phá hoại theo tính toán (tf) là khoảng thời gian bắt đầu nén mẫu tới khi mẫu bị phá hoại.
3.16 Thông số đường ứng suất (stress path parameters):
Thông số đường ứng suất (s’, t’) là các thông số đường ứng suất (theo ứng suất hiệu quả) được xác lập từ công thức sau:

3.17 Thí nghiệm nén ba trục mẫu không cố kết không thoát nước (unconsolidated-undrained triaxial compression test):
Mẫu đất thí nghiệm chịu tác động áp lực hông không đổi, đồng thời chịu tác dụng một tải trọng dọc trục, khi không cho phép thay đổi tổng độ ẩm của mẫu. Thí nghiệm được dùng để xác định độ bền không thoát nước cu và chỉ thích hợp cho đất sét bão hoà, khi j=0.
3.18 Thí nghiệm nén ba trục mẫu cố kết không thoát nước có kết hợp đo áp lực nước lỗ rỗng (consolidated-undrained triaxial compression test with measurement of pore pressure):
Mẫu đất thí nghiệm trước hết được cho cố kết trong điều kiện ứng suất đẳng hướng là hằng số và thoát nước hoàn toàn (giai đoạn cố kết), sau đó tăng tải trọng dọc trục và không cho thoát nước (giai đoạn nén). Giai đoạn cố kết ban đầu chuyển tới trạng thái thể tích và áp lực nước lỗ rỗng đã quy định, từ đó có thể đo đạc chính xác thay đổi tiếp theo của thể tích hoặc áp lực nước lỗ rỗng.
Thí nghiệm cố kết – không thoát nước được dùng để xác định các thông số độ bền của ứng suất hiệu quả c’ và ’, sự thay đổi thể tích và các đặc trưng độ cứng của đất.
3.19 Thí nghiệm nén ba trục mẫu cố kết thoát nước có đo sự thay đổi của thể tích (consolidated- drained triaxial compression test with measurement of volume change):
Mẫu đất thí nghiệm trước tiên được cố kết trong điều kiện ứng suất đẳng hướng là hằng số và thoát nước hoàn toàn (giai đoạn cố kết). Khi giai đoạn cố kết hoàn thành, tăng tải trọng dọc trục với tốc độ nhỏ đủ để đảm bảo không xảy ra việc tăng áp lực nước lỗ rỗng (giai đoạn nén). Độ tăng ứng suất hiệu quả (Δs‘) bằng độ tăng ứng suất tổng (Δs).
Từ thí nghiệm có thể thu được các thông số độ bền cắt c’ và j‘ khi mẫu bị phá hoại.
4 Thí nghiệm sức kháng cắt không cố kết – không thoát nước – sơ đồ UU
4.1 Nội dung phương pháp thí nghiệm
Nguyên tắc phương pháp này gồm việc xác định sức kháng cắt không thoát nước của mẫu đất dính khi mẫu chịu tác động áp lực hông không đổi, đồng thời chịu tác dụng của tải trọng dọc trục, không cho phép thay đổi tổng độ ẩm của mẫu. Thí nghiệm được dùng để xác định độ bền không thoát nước cu và chỉ thích hợp cho đất sét bão hoà, khi j=0.
4.2 Điều kiện thí nghiệm.
Những điều kiện thí nghiệm sau phải được chỉ rõ trước khi bắt đầu thí nghiệm:
a) Kích thước mẫu;
b) Số lượng mẫu được thí nghiệm;
c) Áp lực hông.
CHÚ THÍCH:
1) Đối với một tập hợp thí nghiệm có 3 mẫu tương tự của đất nguyên trạng được cố kết bình thường áp lực hông vào khoảng 0,5 sv, 1,0 sv, 2,0 sv.
2) Trong đó: sv – Tổng ứng suất thẳng đứng tại hiện trường, áp lực sử dụng nên bao trùm khoảng ứng suất thẳng đứng có khả năng xảy ra đổi với đất tại hiện trường.
3) Đối với đất sét quá cố kết, áp lực hông thấp nhất thường không được nhỏ hơn tổng ứng suất thẳng đứng tại hiện trường.
4.3 Thiết bị, dụng cụ thí nghiệm
Trước khi tiến hành thí nghiệm các thiết bị, dụng cụ thí nghiệm phải được kiểm tra như quy định tại phụ lục C.
4.3.1 Thiết bị thí nghiệm.
Thí nghiệm được tiến hành trên máy nén 3 trục với mẫu hình trụ thẳng có chiều cao xấp xỉ bằng hai lần đường kính. Đường kính mẫu dao động từ 38 mm đến 100 mm.
CHÚ THÍCH:
1) Đường kính mẫu cần được lựa chọn dựa trên đặc tính của đất và kích thước hạt lớn nhất có mặt trong mẫu. Những mẫu với đường kính mẫu 38 mm thường chỉ phù hợp đối với loại đất dính hạt mịn, đồng nhất. Nói chung nên sứ dụng kích thước mẫu lớn nhất có thể được. Thí nghiệm này không áp dụng cho những mẫu đường kính nhỏ hơn 35mm
2) Trong thí nghiệm, mẫu được bọc trong một màng cao su không thấm nước giữa hai nắp không thấm nước đặt trong buồng
ba trục, trong đó có thể tạo áp lực buồng (s3) bằng nước. Lực nén dọc trục được tăng lên với tốc độ biến dạng không đổi cho đến khi mẫu phá hủy. thường ở trong khoảng thời gian từ 5 phút đến 15 phút.
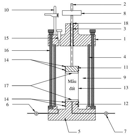
4.3.2 Buồng ba trục: Kích thước phù hợp với kích thước của mẫu thí nghiệm, thích hợp cho sử dụng nước tạo áp lực làm việc không nhỏ hơn 1.700 kPa để thực hiện thí nghiệm.
Bốn yếu tố chính của buồng được nêu trong Hình B.1- Phụ lục B và như sau:
a) Nắp buồng phải làm bằng vật liệu không gỉ, bố trí một nút lỗ thoát khí và ống lót pittông gắn khít;
b) Pittông truyền tải để tác dụng lực nén dọc trục lên mẫu. Sự uốn ngang của pittông trong quá trình thí nghiệm phải là không đáng kể. Ma sát giữa pittông hoặc vòng đệm và ống lót của nó phải đủ nhỏ, cho phép pittông trượt tự do bằng chính trọng lượng của nó khi buồng nén không có mẫu;
CHÚ THÍCH 1: Pittông phải hoàn toàn sạch và được tra một lớp dầu mỏng.
Khe hở giữa pittông và ống lót hoặc vòng đệm của nó phải đủ kín sao cho lượng nước rò rỉ từ buồng ra là nhỏ nhất;
c) Thân buồng hình trụ, có thể tháo ra để lắp mẫu thí nghiệm và được lắp đủ kín với nắp trên và tấm đế buồng;
CHÚ THÍCH 2: Thân buồng nên được chế tạo từ vật liệu trong suốt hoặc có những lỗ để quan sát được mẫu trong quá trình thi nghiệm.
d) Đế buồng được chế tạo bằng vật liệu cứng không gỉ, liên kết liền với đế buồng có những cửa nối ống như thể hiện ở Hình B.1 – Phụ lục B.
Mỗi cửa nối phải có một van hoặc nút (nếu không sử dụng trong thí nghiệm). Các cửa van được nối như sau:
+ Từ đế buồng nối đến hệ thống tạo áp lực buồng;
+ Từ đế buồng nối đến van xả đáy (cần ghi chú khi sử dụng buồng không có van xả đáy).
4.3.3 Thiết bị dùng để tạo và duy trì áp lực nước liên tục trong suốt quá trình thí nghiệm trong buồng kèm theo thiết bị đo áp lực.
Thiết bị đo áp lực có khả năng đo áp lực không nhỏ hơn 1.700 kPa, độ chính xác tới ± 5 kPa, phải có vạch chia, có khả năng đọc được đến 0,5% của toàn bộ thang chia đối với những áp lực vượt quá 10% áp lực đọc của thang.
4.3.4 Máy nén có tính năng nén dọc trục với tốc độ đều lên mẫu trong khoảng từ 0,05 mm/phút tới 4mm/phút. Máy phải có khả năng tạo một biến dạng dọc trục tới 1/3 chiều cao của mẫu thí nghiệm.
4.3.5 Thiết bị đo biến dạng dọc trục của mẫu, độ chính xác tới 0,01 mm.
CHÚ THÍCH: Thiết bị đo biến dạng dọc trục có thể là một đồng hồ chia độ hoặc đầu đo điện tử phải đảm bảo đo được chuyển vị tối thiểu 25 % so với chiều cao mẫu thí nghiệm.
4.3.6 Thiết bị đo lực đã được hiệu chuẩn có khả năng đo thích hợp được đỡ trên một giá chữ thập của máy nén để tránh trọng lượng của nó truyền lên mẫu thí nghiệm.
CHÚ THÍCH:
1) Thiết bị đo lực có thể là vòng lực, đầu đo điện tử hoặc đầu đo chìm dưới nước lắp bên trong buồng nén 3 trục.
2) Cần phải có sẵn một loạt các thiết bị đo lực đã được hiệu chuẩn để có thể chọn một thiết bị phù hợp nhất đố i với độ bền của mẫu thí nghiệm.
4.3.7 Tấm nén trên phải cứng bằng vật liệu không gỉ hoặc bằng nhựa, nhẹ, có đường kính bằng đường kính mẫu thí nghiệm. Phải có một bộ phận tự định vị nằm giữa tấm nén trên và pittông gia tải.
4.3.8 Màng cao su hình ống có độ đàn hồi cao để bó chặt mẫu, tránh rò rỉ nước từ buồng nén vào mẫu. Đường kính ban đầu của ống màng cao su không nhỏ hơn 90 % đường kính mẫu hay lớn hơn so với đường kính mẫu. Chiều dài màng cao su đủ bao phủ mẫu và 2 tấm đệm. Chiều dầy màng cao su nhỏ hơn 1 % của đường kính mẫu.
CHÚ THÍCH: Thường sử dụng màng cao su bằng cao su tự nhiên. Đối với đường kính mẫu đến 50 mm thì chiều dày phù hợp của màng cao su là 0,2 mm, đối với mẫu lớn hơn cần có màng cao su dày hơn. Có thể lồng hai màng cao su riêng bi ệt vào nhau, giữa có lớp mỡ silicon hoặc một lớp cao su khi có nguy hiểm làm thủng màng do các hạt sắc nhọn.
Trước khi sử dụng cần kiểm tra màng cao su có bị khuyết tật gì không và loại bỏ những màng khuyết tật.
4.3.9 Ống lồng màng cao su – phù hợp với kích thước mẫu.
4.3.10 Hai gioăng cao su hình tròn để giữ chặt hai đầu của màng cao su với tấm nén trên và tấm đế dưới. Gioăng cao su có đường kính khi chưa kéo giãn trong khoảng từ 80% đến 90% của đường kính mẫu. Khi kéo giãn, các gioăng cao su không được có các khuyết tật và thót cổ chai.
4.3.11 Thiết bị để xác định độ ẩm như mô tả trong TCVN 4196.
4.4 Chuẩn bị mẫu thí nghiệm
4.4.1 Mẫu thí nghiệm: Mẫu hình trụ phải có chiều cao khoảng bằng hai lần đường kính với hai đầu bằng phẳng vuông góc với trục. Kích thước hạt lớn nhất của đất không lớn hơn một phần năm của đường kính mẫu. Thông thường một tập hợp mẫu là 3 mẫu.
CHÚ THÍCH: Nếu sau thí nghiệm nhận thấy mẫu chứa nhiều hạt có kích thước lớn thì kích thước và khối lượng của những hạt này cần được ghi rõ.
4.4.2 Chuẩn bị mẫu
4.4.2.1 Tháo mẫu từ ống lấy mẫu hoặc vật đựng mẫu và cẩn thận xem xét mẫu để biết rõ trạng thái của nó. Ghi nhận mọi dấu hiệu mẫu bị mềm cục bộ, xáo động, có nhưng hạt lớn hoặc những bất đồng nhất khác. Nếu những khuyết tật này không thể tránh được thì phải sử dụng mẫu khác thay thế để chuẩn bị mẫu cho thí nghiệm.
CHÚ THÍCH: Nếu những khuyết tật như trên xảy ra một cách tự nhiên cần phải sử dụng mẫu thí nghiệm lớn hơn để đại diện hơn cho đất nói chung.
4.4.2.2 Bảo vệ mẫu đất khỏi bị mất ẩm trong quá trình chuẩn bị mẫu.
4.4.2.3 Phương pháp chuẩn bị mẫu phụ thuộc vào kiểu của mẫu thu được và kích thước của mẫu thí nghiệm cần thiết. Các phương pháp chuẩn bị cho các loại mẫu sau:
a) Mẫu có đường kính bằng đường kính ống lấy mẫu: đặt mẫu trên giá giữ mẫu sử dụng dụng cụ đùn ép mẫu ra ngoài ống đủ chiều dài yêu cầu.
b) Mẫu được gọt bằng tay từ mẫu khối: Sử dụng dao gọt có dạng cưa dây, đường kính dây không lớn hơn 0,4mm. Mẫu đất được đặt lên giá giữ mẫu xoay được trong quá trình gọt mẫu. Dùng dao gọt đều đến đường kính cần thí nghiệm.
c) Mẫu được tạo ra từ dụng cụ dao lấy mẫu dạng hình trụ thành mỏng từ khối mẫu: Sử dụng dao lấy mẫu có tỷ số diện tích A nhỏ hơn 20 % (xem chú thích). Chiều dài dao lớn hơn 1,5 lần chiều dài yêu cầu của mẫu thử. Mẫu đất được đặt lên giá giữ mẫu, dùng dao ấn từ từ trên mẫu đến đủ chiều dài cần thí nghiệm. Lấy mẫu ra khỏi dao thực hiện như điểm a của 4.4.2.3.
CHÚ THÍCH: Tỷ số diện tích A là tỷ số giữa thể tích đất bị ống mẫu chiếm chỗ và thể tích mẫu, theo công thức sau :
![]()
trong đó :
A là tỷ số diện tích, tính bằng phần trăm (%);
Do là đường kính ngoài của dao, tính bằng mm;
D1 là đường kính trong của dao, tính bằng mm.
Cắt bỏ phần đất bị xáo trộn ở phần đầu và đáy mẫu đủ chiều cao theo yêu cầu thí nghiệm.
4.4.2.4 Khi yêu cầu một tập hợp mẫu để thí nghiệm với những áp lực hông khác nhau, cần phải lựa chọn mẫu sao cho chúng tương tự nhau. Ghi lại vị trí và định hướng của từng mẫu một trong mẫu khối.
4.4.2.5 Đo chiều dài Lo (mm), đường kính Do (mm) và cân khối lượng m (g) cho từng mẫu đã chuẩn bị với sự chính xác cần thiết để tính toán khối lượng thể tích tự nhiên, chính xác tới ±1 %.
4.4.2.6 Đặt mẫu cần thí nghiệm giữa 2 tấm đệm trong màng cao su (như mô tả trong 4.5.1) nhanh đến mức có thể được để tránh mất mát độ ẩm. Bảo quản những mẫu chưa thí nghiệm để tránh thay đổi độ ẩm.
CHÚ THÍCH: Sự mất độ ẩm từ mẫu chưa sử dụng ngay cần phải đề phòng bằng cách gói mẫu trong những tấm vải nhựa mỏng.
4.4.2.7 Sau khi chuẩn bị mẫu đất thí nghiệm xong, bẻ một phần còn lại của mẫu đất và ghi lại những mô tả chi tiết của kết cấu đất.
4.5 Cách tiến hành
4.5.1 Lắp đặt
4.5.1.1 Đặt mẫu thí nghiệm đã được chuẩn bị theo một trong những trình tự nêu ở 4.4.2.
4.5.1.2 Đặt mẫu lên tấm đế dưới và đặt tấm nén trên lên trên mẫu.
4.5.1.3 Lồng màng cao su đều trên ống lồng.
4.5.1.4 Lồng màng cao su vào mẫu, tháo ống kéo căng màng cao su.
4.5.1.5 Nịt chặt màng cao su với đầu tấm đế dưới và tấm nén trên bằng gioăng cao su, không để không khí bị giữ lại trong màng.
4.5.1.6 Chỉnh mẫu vào chính giữa đế buồng nén 3 trục, bảo đảm ở tư thế thẳng đứng.
4.5.1.7 Lắp thân buồng nén với pittông truyền tải không chạm vào tấm nén trên của mẫu. Kiểm tra độ thẳng tâm bằng cách cho Pittông trượt chậm xuống cho tới khi nó tiếp xúc với bề mặt chịu lực của tấm nén trên, sau đó kéo pittông lên. Nếu cần thiết, tháo bỏ thân buồng nén và chỉnh lại mẫu cho đúng tâm. Vặn chặt các bu lông liên kết thân buồng và đế buồng nén.
4.5.1.8 Cho nước vào đầy buồng nén, bảo đảm sao cho tất cả không khí trong buồng bị đẩy ra qua lỗ thoát khí (Hình B.1- Phụ lục B). Đóng lỗ thoát khí sau khi đã đầy nước.
4.5.2 Tạo áp lực buồng
4.5.2.1 Tạo áp lực buồng nén 3 trục và tiến hành những điều chỉnh cuối cùng như mô tả trong mục 4.5.2.2 đến 4.5.2.5.
4.5.2.2. Tăng áp lực nước trong buồng tới giá trị cần thí nghiệm, đồng thời giữ pittông truyền tải bằng khung nén hoặc thiết bị đo lực.
4.5.2.3 Điều chỉnh máy nén để đưa pittông xuống cách bệ tì của tấm nén trên của mẫu trong phạm vi vài mm. Ghi số đọc của thiết bị đo lực trong thời gian chuyển động đều của pittông như là số đọc ban đầu.
4.5.4.4 Điều chỉnh máy tiếp theo để đưa pittông truyền tải vừa vặn tiếp xúc với tấm nén trên. Ghi lại số đọc của thiết bị đo biến dạng dọc trục (hoặc chỉnh về giá trị 0).
4.5.2.5 Lựa chọn tốc độ của máy nén sao cho biến dạng dọc trục phù hợp với trạng thái của đất đến khi sự phá hủy mẫu xảy ra trong khoảng thời gian từ 5 tới 15 phút.
4.5.3 Thí nghiệm nén
4.5.3.1 Bật máy nén, bắt đầu thí nghiệm.
4.5.3.2 Ghi nhận số đọc của thiết bị đo lực và thiết bị đo biến dạng ở từng khoảng đều đặn của thiết bị đo biến dạng, sao cho tối thiểu ghi nhận được 15 số đọc đến thời điểm phá hủy mẫu.
CHÚ THÍCH 1: Đối với đất có tính nén lún trung bình nên đọc số ở từng khoảng biến dạng 0,25 % cho đến khi đạt 1,0 % và sau đó theo từng khoảng biến dạng 0,5 %. Đối với đất rất cứng thường đột nhiên phá hủy ở biến dạng nhỏ nên tiến hành đọc số theo các khoảng lực thay cho các khoảng biến dạng.
CHÚ THÍCH 2: Vẽ đồ thị biểu thị ứng suất dọc trục ứng với biến dạng nén trong quá trình thí nghiệm, để thấy rõ điểm xảy ra phá hủy (Tham khảo biểu mẫu UU-03 – Phụ lục A).
4.5.3.3 Tiếp tục thí nghiệm cho đến khi vượt qua giá trị cực đại của ứng suất dọc trục và xác định được rõ điểm cực đại hoặc cho đến khi đã đạt được biến dạng dọc trục lớn hơn 20%.
4.5.4 Dỡ tải
4.5.4.1 Ngừng thí nghiệm và dỡ tải.
4.5.4.2 Tháo nước khỏi buồng nén, tháo buồng và dỡ mẫu ra.
4.5.4.3 Tháo bỏ màng cao su bọc mẫu và ghi lại kiểu phá hủy mẫu cùng với bản vẽ phác họa kèm theo.
4.5.4.4 Bẻ mẫu ra, mô tả và ghi lại kết cấu, kiến trúc của đất.
CHÚ THÍCH: thao tác theo 4.5.4.3 và 4.5.4.4 cần phải hoàn thành ngay để tránh mất ẩm của mẫu.
4.5.4.5 Xác định độ ẩm của toàn bộ mẫu hoặc những phần đại diện của mẫu theo TCVN 4196. Nếu có những mặt phá hủy, các mẫu xác tính độ ẩm phải được lấy ở gần chúng.
4.6 Tính toán, báo cáo kết quả thí nghiệm
4.6.1 Vẽ đồ thị và tính toán
CHÚ THÍCH: Xem biểu mẫu UU-02 và UU-03 – Phụ lục A.
4.6.1.1 Từ mỗi tập hợp số đọc, tính lực dọc trục P(N) tác dụng lên mẫu bằng cách nhân hiệu số giữa số đọc đó và số đọc ban đầu (xem 4.5.2.3) của thiết bị trên thiết bị đo lực (vạch chia hoặc số hiện) với hệ số hiệu chuẩn của nó (N/vạch chia hoặc N/trên số hiện)
4.6.1.2 Tính toán diện tích tiết diện ngang của mẫu, với giả thiết rằng biến dạng của nó theo hình trụ thẳng, từ công thức:
![]()
trong đó:
Ao là diện tích tiết diện ngang ban đầu của mẫu, A là diện tích tiết diện ngang của mẫu, tính bằng milimet vuông.
ɛ là biến dạng dọc trục tương đối được tính theo công thức (6).

trong đó:
Lo là chiều dài ban đầu của mẫu (mm);
ΔL là độ thay đổi chiều dài mẫu, được đo bằng thiết bị đo biến dạng dọc trục (mm).
4.6.1.3 Tính độ lệch ứng suất chính (s1 – s3) (kPa) đối với những tập hợp số đọc đủ để cho phép xác định giá trị cực đại theo công thức (7):
![]()
CHÚ THÍCH: Đối với một vài trường hợp có thể áp dụng đồ thị quan hệ giữa ứng suất lệch (kPa) ứng với biến dạng dọc trục (%).
4.6.1.4 Hiệu chỉnh độ lệch ứng suất lớn nhất được tính toán đối với hiệu ứng của màng cao su. Việc điều chỉnh được tiến hành trực tiếp (hình B.5 – Phụ lục B), tại độ biến dạng tương ứng với phá hủy, đối với các mẫu đường kính 38 mm lắp trong một màng cao su tự nhiên dày 0,2 mm khi xảy ra kiểu biến dạng chủ yếu là hình trống. Đối với mẫu có đường kính khác bất kỳ, D (mm) và màng bọc cao su với chiều dày bất kỳ khác t (mm) (có thể làm bằng hai màng cao su trở lên), nhân hệ số điều chỉnh thu được từ (hình B.5 – Phụ lục B) với một hệ số bằng

Lấy độ lệch ứng suất cực đại đã tính được (s1 – s3) max trừ đi hiệu chỉnh màng cao su ta thu được độ
lệch ứng suất đã hiệu chỉnh, biểu diễn bằng (s1 – s3)f
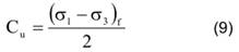
4.6.1.5 Tính toán giá trị sức kháng cắt Cu (kPa) từ công thức (9).
![]()
CHÚ THÍCH: Đối với một vài ứng dụng có thể cần một đồ thị ứng suất lệch (kPa) ứng với biến dạng dọc trục (%)
4.6.1.6 Tính toán khối lượng thể tích tự nhiên của mẫu theo công thức sau:

trong đó:
P là khối lượng thể tích tự nhiên của mẫu, tính bằng (Mg/m3)
mo là khối lượng của mẫu tính bằng gam (g).
( Xem TCVN 4202)
4.6.2 Báo cáo thí nghiệm
Báo cáo kết quả phải thể hiện những nội dung sau:
a) Tên của phương pháp sử dụng, tức là xác định sức kháng cắt không thoát nước trên máy nén 3 trục;
b) Kích thước ban đầu của mẫu;
c) Mẫu là nguyên trạng hay tái tạo và phương pháp chuẩn bị mẫu;
d) Độ ẩm ban đầu, khối lượng thể tích tự nhiên và khối lượng thể tích khô;
e) Đặc điểm và chiều sâu của mẫu thí nghiệm;
f) Tốc độ biến dạng (mm/min) áp dụng trong thí nghiệm;
g) Chiều dày và kiểu của màng cao su sử dụng, phép hiệu chỉnh được áp dụng;
h) Bảng số liệu liên quan đến mẫu tại thời điểm phá hủy, bao gồm:
– Áp lực buồng s3 (kPa);
– Độ lệch ứng suất cực đại đã hiệu chỉnh ở thời điểm phá hủy (s1 – s3)f (kPa) tới số nguyên gần nhất;
– Biến dạng ở thời điểm phá hủy (%);
– Kiểu phá hủy;
– Giá trị của
(kPa) tới số nguyên gần nhất.
i) Khi thí nghiệm từ 2 hoặc nhiều mẫu tương tự thành một tập hợp mẫu, những số liệu trên cho từng
mẫu phải được lập thành bảng trong tập hợp mẫu.
5 Thí nghiệm sức kháng cắt cố kết–không thoát nước–sơ đồ CU
5.1 Nội dung phương pháp thí nghiệm
Mẫu trước hết được cố kết trong điều kiện ứng suất đẳng hướng không đổi, thoát nước hoàn toàn (giai đoạn cố kết); sau giai đoạn cố kết tăng tải trọng dọc trục và không cho thoát nước (giai đoạn nén). Trong giai đoạn nén đo sự thay đổi của áp lực nước lỗ rỗng.
Thí nghiệm này được dùng để xác định các thông số của ứng suất tổng c, j và ứng suất hiệu quả c’,j‘; sự thay đổi áp lực nước lỗ rỗng.
Thí nghiệm được tiến hành theo ba bước:
Bước 1- Làm bão hoà mẫu (xem 5.5.2);
Bước 2- Cố kết mẫu (xem 5.5.3);
Bước 3- Nén mẫu (xem 5.5.4).
5.2 Điều kiện thí nghiệm.
Những điều kiện thí nghiệm sau phải được chỉ rõ trước khi bắt đầu thí nghiệm:
a) Kích thước mẫu;
b) Số lượng mẫu được thí nghiệm;
c) Áp lực hông: Việc xác định các thông số về độ bền thường thí nghiệm với một tập hợp mẫu gồm ba mẫu, áp lực nén hiệu quả lần lượt là 0,5; 1,0 ; 2,0 lần áp lực nén hiệu quả thực tế.
CHÚ THÍCH: Đối với loại đất chặt, áp lực cố kết hiệu quả phải được xem xét làm sao tương ứng với ứng suất hiệu quả cực đại tính toán được ở thực tế (sv) và các tích của nó với 1/2; 1 và 2 thường là thích hợp.
d) Áp lực ngược.
5.3 Thiết bị, dụng cụ thí nghiệm
Trước khi tiến hành thí nghiệm các thiết bị, dụng cụ thí nghiệm phải được kiểm tra như quy định tại phụ lục C.
5.3.1 Thiết bị thí nghiệm
Thiết bị thí nghiệm quy định trong 4.3.1.
5.3.2 Buồng ba trục
Buồng ba trục phải có kích thước phù hợp với kích thước của mẫu thí nghiệm, cho phép sử dụng nước đã khử khí với áp lực làm việc không nhỏ hơn 1.700 kPa (xem chú thích 1). Không được dùng khí để tạo áp lực trong buồng.
CHÚ THÍCH 1: Không dùng nước cất hoặc nước có tính khử lớn vì chúng có tính ăn mòn đối với một số loại vòng đệm.
Các chi tiết chính của buồng được mô tả trong hình B.2 – phụ lục B và được qui định như sau:
a) Tấm nắp buồng được qui định trong 4.3.2 (a).
b) Pittông truyền tải được qui định trong 4.3.2 (b).
c) Thân buồng hình trụ được qui định trong 4.3.2 (c).
d) Đế buồng được làm bằng loại vật liệu không gỉ, cứng, liên kết với đế buồng có các cửa nối ống được mô tả trong Hình B.2 – Phụ lục B.
Mỗi cửa nối ống phải có một van, hoặc nút (nếu cửa van không cần cho thí nghiệm). Các cửa được nối như sau:
– Từ đế buồng nối với hệ thống tạo áp lực buồng;
– Từ đế buồng nối với thiết bị đo áp lực nước lỗ rỗng;
– Từ đế buồng nối với thiết bị đo áp lực ngược nối và đến hệ thống tạo áp lực ngược;
– Từ đế buồng nối với thiết bị xả đáy (cần ghi chú khi sử dụng buồng không có van xả đáy).
CHÚ THÍCH 2: Buồng có hai van đáy là loại buồng tốt nhất được dùng trong thí nghiệm ứng suất hiệu quả ba trục. Cũng có thể dùng buồng có một van đáy, nhưng khi đó lại phải bổ sung thêm một số thao tác trong quá trình thí nghiệm (Nếu dùng loại buồng này làm thí nghiệm thì phải ghi vào sổ ghi chép).
Phần trên của đế buồng là một mặt tròn phẳng có đường kính bằng đường kính mẫu thí nghiệm. Tấm đế dưới phải có đủ chiều cao để lắp màng, thành phải phẳng nhẵn không lồi lõm.
e) Tấm nén trên (đế trên) được làm bằng vật liệu nhẹ không gỉ, không thấm nước, đủ cứng để không bị biến dạng khi bị nén mẫu đất. Đế trên có lỗ để thoát nước và được nối với đường vào của áp lực ngược qua đế buồng bằng một ống mềm có đường kính trong không lớn quá 2,5 mm, ống mềm phải không thấm nước, có hệ số giãn nở tuỳ thuộc vào áp lực bên trong và không quá 0,001 ml/m cho mỗi độ tăng áp lực là 1 kPa. Mặt trên của tấm đế phải phẳng nhẵn không bị xước, phải có bộ phận tự định vị nằm giữa tấm nén trên và pittông gia tải.
CHÚ THÍCH 3: Một hốc nhỏ hình côn ở giữa có góc nửa là 60o để đặt một viên bi thép hoặc nửa đầu hình cầu của pittông là đáp ứng được việc này.
f) Van đóng – mở, có khả năng giữ được áp lực làm việc lớn nhất mà không bị rò rỉ. Chúng phải giữ được thể tích, thay đổi không đáng kể trong quá trình đóng mở.
5.3.3 Màng hình ống làm bằng nhựa cao su có mật độ cao hoặc vật liệu không thấm để bọc ngoài mẫu thí nghiệm. Đường kính khi chưa căng không được lớn hơn đường kính mẫu thí nghiệm và không nhỏ hơn 90 % đường kính mẫu thí nghiệm. Chiều dài, dài hơn mẫu là 50 mm. Độ dày của màng không quá 1 % đường kính mẫu (xem chú thích 4).
CHÚ THÍCH 4: Màng thường được làm bằng nhựa cao su tự nhiên. Có thể dùng hai hay vài cái màng để bọc nếu có nguy cơ bị rách hoặc thí nghiệm quá lâu đối với mẫu có đường kính lớn.
Phải ngâm màng trong nước khử khí 12 giờ trước khi sử dụng.
5.3.4 Bốn vòng cao su dùng để gắn màng lên tấm nén trên và tấm đế dưới (mỗi đầu hai vòng). Vòng có đường kính khi chưa căng từ 80 % đến 90 % so với đường kính mẫu. Chúng không được có khuyết tật hoặc thắt lại khi kéo giãn.
5.3.5 Dụng cụ căng màng để làm cho màng vừa với kích thước của mẫu.
5.3.6 Dụng cụ căng vòng cao su có dạng một ống hình trụ hở.
5.3.7 Đá thấm để đặt giữa hai đầu của mẫu với tấm nén trên và tấm đế dưới. Đường kính phải bằng đường kính mẫu, mặt đá thấm phẳng và trơn. Khả năng thấm nước phải lớn hơn khả năng thấm nước của đất và nó phải chịu được áp lực thẳng đứng lớn nhất (áp lực buồng cộng với áp lực nén dọc trục) tác động lên (xem chú thích 5). Trước mỗi lần sử dụng phải kiểm tra lại để đảm bảo chúng không bị các hạt đất nhét vào lỗ hổng. Phải đun sôi chúng trong nước cất ít nhất là 10 phút trước khi đem ra sử dụng và ngâm trong nước khử khí cho tới khi sử dụng.
CHÚ THÍCH 5: Đá thấm có thể là đĩa sứ xốp hoặc đĩa bằng đồng thau xốp.
5.3.8 Giấy thấm dùng để thoát nước bên (khi cần), bề mặt bao phủ không quá 50% bề mặt cong của mẫu (xem chú thích 6). Giấy thấm không được tan trong nước và phải có hệ số thấm không nhỏ hơn 1×10-5 cm/s với áp lực 550 kPa.
CHÚ THÍCH 6: Chỉ dùng biện pháp thoát nước bên đối với các mẫu có tính thấm rất yếu để làm giảm chiều dài đường thoát nước cực đại xuống bằng bán kính của mẫu.
5.3.9 Hệ thống áp lực và thiết bị phụ trợ
a) Hai hệ thống riêng biệt dùng để tạo áp lực nén và ổn định áp lực cần thiết trong buồng (hệ thống áp lực buồng) và trong đường thoát nước từ mẫu (hệ thống áp lực ngược). Các hệ thống này phải duy trì được áp lực không đổi ở mỗi cấp áp lực thí nghiệm, khoảng ± 0,5 % (xem chú thích 1).
CHÚ THÍCH 1 : Hệ thống áp lực có thể là hộp thuỷ ngân tự bù; bộ phận đều hoà áp lực bằng dầu, khí nén.
b) Thiết bị đo áp lực có độ chính xác tới ± 5 kPa (thiết bị có chia vạch hoặc hiện số) đã được hiệu chuẩn để đo các số áp lực buồng và áp lực ngược (xem chú thích 2).
CHÚ THÍCH 2: Để đo áp lực nhỏ hơn 50 kPa nên dùng áp kế thuỷ ngân hoặc bộ hiển thị ứng suất.
c) Thiết bị đo áp lực nước lỗ rỗng đã được hiệu chuẩn, bao gồm bộ phận đo áp lực đọc được đến 1 kPa, gắn trên hộp khử khí nối với van xả khí. Một bên của hộp được nối với van áp lực nước lỗ rỗng nằm trên đáy buồng và bên kia nối với hệ thống van xả. Toàn bộ hệ thống này khi đóng lại sẽ không cho phép nước chảy ra hoặc vào dẫn sang bệ đáy buồng.
d) Buret thuỷ tinh là buret thông với khí quyển chia độ đến 0,1 ml, có một màng mỏng bằng dầu hoả trải trên mặt nước để ngăn sự bốc hơi.
CHÚ THÍCH 3: Dụng cụ này chỉ dùng cho đất bão hoà nước không yêu cầu áp lực ngược và có thể thay thế cho bộ phân ghi sự thay đổi thể tích đã hiệu chuẩn.
e) Ống để nối các bộ phận của từng hệ thống áp lực với buồng. Hệ số giãn nở của ống phụ thuộc vào áp lực bên trong và không được vượt quá 0,001 ml/m đối với từng mức gia tăng áp lực là 1 kPa.
f) Dụng cụ đo thời gian, xác định được đến 1 giây.
g) Dụng cụ cung cấp nước sạch đã khử khí.
h) Mỡ silicon hoặc vadơlin.
CHÚ THÍCH 4: Cách bố trí thích hợp của hệ thống thiết bị hoàn chỉnh được mô tả bằng sơ đồ trong hình B.3 – Phụ lục B.
5.3.10 Thiết bị thí nghiệm nén.
Thiết bị thí nghiệm nén phải như sau:
a) Máy nén có tính năng tạo biến dạng dọc trục trên mẫu đất, tốc độ điều chỉnh được từ 0,001 mm/phút đến 0,5 mm/phút. Tốc độ thực của máy không được quá 10 % của giá trị khi dỡ tải.
b) Thiết bị đo biến dạng dọc trục của mẫu đã được hiệu chuẩn, chia vạch tới 0,01mm; chiều dài bảng chia độ không ngắn hơn một phần ba chiều dài mẫu. Dụng cụ có thể là đồng hồ micromet hoặc chuyển vị kế.
c) Thiết bị đo lực đã được hiệu chuẩn có khả năng đo thích hợp theo yêu cầu của mẫu thí nghiệm nhưng phải có vạch chia đến 1 N (xem chú thích 1 và 2). Dụng cụ đo lực gắn bên ngoài, được cố định bằng thanh đỡ để trọng lượng của máy không đè lên mẫu đất thí nghiệm. Nếu dụng cụ đo lực được gắn trong buồng ba trục thì khi xác định biến dạng dọc trục của mẫu, phải tính cả đến sự nén của dụng cụ này.
CHÚ THÍCH 1: Dụng cụ đo lực có thể là vòng lực hoặc thiết bị chuyển đổi tải trọng lắp ở trong buồng ba trục
CHÚ THÍCH 2: Phải có một loạt dụng cụ đo lực đã định chuẩn để lựa chọn được dụng cụ phù hợp nhất với mẫu thí nghiệm.
Trước khi tiến hành thí nghiệm các thiết bị phải được kiểm tra như quy định tại phụ lục C.
5.4 Chuẩn bị mẫu thí nghiệm
5.4.1 Mẫu thí nghiệm: Mẫu hình trụ phải có chiều cao khoảng bằng hai lần đường kính với 2 đầu phẳng vuông góc với trục. Kích thước hạt lớn nhất của đất không lớn hơn 1/5 của đường kính mẫu. Một tập hợp mẫu thông thường chuẩn bị 3 mẫu.
CHÚ THÍCH: Nếu sau thí nghiệm nhận thấy mẫu chứa nhiều hạt có kích thước lớn thì kích thước và khối lượng của những hạt này cần được ghi rõ.
5.4.2 Chuẩn bị mẫu.
Mẫu được chuẩn bị theo quy định tại 4.4.2.
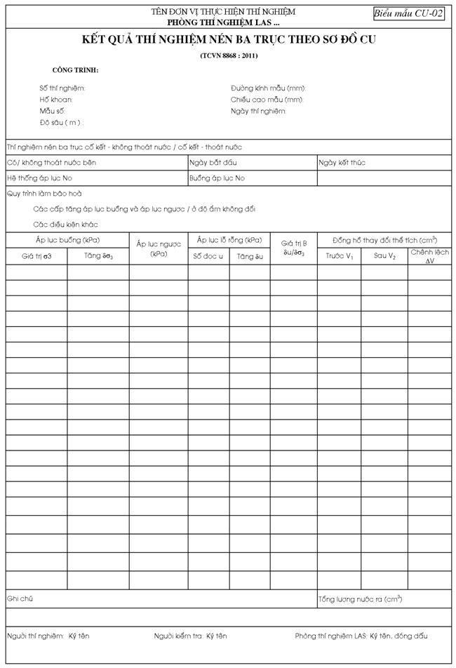
CHÚ THÍCH: Biểu mẫu ghi chép xem CU-01 trong Phụ lục A.
5.5 Cách tiến hành
5.5.1 Lắp đặt
5.5.1.1 Đặt đá thấm đã bão hoà nước bằng cách đẩy trượt nó trên lớp nước trên tấm đế dưới của buồng ba trục để tránh cho không khí không bị lọt vào. Gạn hết nước thừa ra.
5.5.1.2 Đặt nhanh mẫu đất lên đá thấm và không để cho không khí lọt vào.
5.5.1.3 Đặt đá thấm đã bão hoà nước thứ hai lên trên mẫu thí nghiệm sau khi đã gạn nước thừa ra.
5.5.1.4 Nếu có sử dụng biện pháp thoát nước bên thì cho phép nước thừa chảy qua giấy thấm đã bão hoà nước và đặt nó vào mặt cong của mẫu thí nghiệm (xem chú thích). Gõ nhẹ để cho thoát hết bọt khí ra ngoài. Phải đảm bảo cho phần thoát nước phủ chờm lên đá thấm.
CHÚ THÍCH: Sức hút nước lỗ rỗng trong đất thường giữ giấy thấm tại chỗ. Để tiện lợi hơn, thường đặt giấy thấm vào trước khi đặt mẫu lên tấm đế dưới.
5.5.1.5 Sử dụng vòng căng màng ống. Cuộn màng cao su xung quanh mẫu thí nghiệm sau khi đã loại hết nước thừa ra. Dùng hai vòng cao su để vít màng chặt vào tấm đế dưới (xem chú thích). Gõ nhẹ ngược lên để bọt khí ở giữa mẫu thí nghiệm và màng thoát ra hết. Không để không khí và nước nào len thêm vào giữa mẫu và màng.
CHÚ THÍCH: Bôi một lớp dầu cao su mỏng lên mặt cong của bệ đáy và tấm nén trên để tăng khả năng chống thấm của vòng đệm. Không được để cho dầu lan vào đá thấm hoặc giấy thấm.
5.5.1.6 Đặt hai vòng cao su quanh đầu ống thoát nước nơi nối với tấm nén trên.
5.5.1.7 Mở van áp lực ngược (xem hình B.2 Phụ lục B), thấm ướt sơ qua đá thấm trên rồi đậy đá thấm lại, không để cho không khí lọt vào. Thít chặt màng vào mũ của tấm nén trên bằng hai vòng cao su, dùng vòng căng chẻ đôi để thắt chặt vòng cao su (xem chú thích 5.5.1.5).
5.5.1.8 Đảm bảo mẫu được đặt thẳng đứng và đường thoát nước từ tấm nén trên không cản trở việc lắp thân buồng.
5.5.1.9 Lắp thân buồng có pittông truyền tải thật khớp với tấm nén trên đặt trên đầu mẫu thí nghiệm. Kiểm tra sự thẳng hàng của mẫu bằng cách cho pittông di động chậm cho tới lúc chạm vào bề mặt tấm nén trên, sau đó kéo lùi pittông lại. Nếu cần thiết thì tháo buồng ra để chỉnh cho hết độ lệch tâm.
5.5.1.10 Đổ đầy nước đã khử bọt khí vào buồng ba trục, đảm bảo tất cả khí có trong buồng đều thoát qua van thông khí và được thay thế bằng nước (xem hình B.2 phụ lục B). Cho nước vào buồng thật nhanh, không làm khuấy động nước để không tạo bọt trong nước. Đổ một lớp mỏng dầu thầu dầu trên mặt nước để làm trơn pittông và hạn chế sự rò rỉ nước qua pittông.
5.5.1.11 Vẫn để van thông khí (xem hình B.2 phụ lục B) mở cho tới khi buồng chuẩn bị xong và sẵn sàng để chịu áp lực, nhằm giữ áp lực trong buồng bằng áp lực của không khí.
5.5.1.12 Đóng van thông khí và nâng áp lực trong buồng lên cấp đầu tiên, theo như hướng dẫn của qui trình làm bão hoà (xem 5.5.2.3 và 5.5.2.4).
5.5.2 Làm bão hoà mẫu
5.5.2.1 Giới thiệu chung
Mục đích của việc làm bão hoà là làm cho tất cả các lỗ rỗng đều được lấp đầy bằng nước. Muốn vậy, thường nâng áp lực nước lỗ rỗng trong mẫu đất lên đủ cao để nước choán chỗ toàn bộ phần khí có trong các lỗ rỗng. Có thể nâng áp lực nước lỗ rỗng lên bằng hai cách sau:
a) Cách 1- Dùng áp lực nước (áp lực ngược) tác động lên mẫu, cùng lúc đó tăng áp lực buồng để giữ lại một ứng suất hữu hiệu dương nhỏ;
b) Cách 2 – Chỉ tăng áp lực buồng thí nghiệm. Trong quá trình làm bão hoà mẫu, cần chú ý đến hai điều kiện đối lập sau đây:
1. Ứng suất không được cao quá, vì như vậy nó sẽ nén mẫu quá mạnh hoặc làm mẫu bị quá cố kết;
2. Ứng suất không được thấp hơn mức cần thiết, để tránh làm trương nở đối với mẫu đất có khả năng trương nở (trừ khi định xác định tính chất trương nở của đất và tiến hành đo để biết lực trương nở này).
Trong mục này sẽ quy định hai quy trình làm bão hoà mẫu. Làm bão hoà bằng cách lần lượt tăng áp lực buồng và áp lực ngược được mô tả trong 5.5.2.3 (xem chú thích 1 và 2); Làm bão hoà trong điều kiện độ ẩm không đổi được mô tả trong 5.5.2.4 (xem chú thích 3).
CHÚ THÍCH 1: Mức độ bão hoà được tính bằng cách xác định hệ số áp lực nước lỗ rỗng B và theo nguyên tắc nếu B lớn hơn hoặc bằng 0,95 thì ở mức độ bão hòa là chấp nhận được (xem 5.5.3).
CHÚ THÍCH 2: Còn có thể làm bão hoà mẫu bằng cách tăng đồng thời áp lực buồng và áp lực ngược.
CHÚ THÍCH 3: Trình tự thao tác này là cần thiết khi tính trương nở của mẫu đất có thể sẽ ảnh hưởng đáng kể đến các giá trị đo được, như sự thay đổi áp lực nước lỗ rỗng trong khi cắt. Thời gian cần để thực hiện tương đối lâu hơn khi sử dụng áp lực ngược.
5.5.2.2 Các yêu cầu cơ bản
a) Nước dùng để ngâm mẫu đất lấy từ hệ thống áp lực ngược phải là loại nước sạch, đã khử khí.
b) Mỗi cấp tăng áp lực buồng không được vượt quá 50 kPa, hoặc ứng suất hiệu quả là ứng suất mà mẫu sẽ bị cố kết khi thí nghiệm nén (“áp lực cố kết hiệu quả cần thiết”), nên chọn thấp h ơn, trừ khi có qui định riêng (xem chú thích 1).
CHÚ THÍCH 1: Các cấp tăng áp lực là 50 kPa được áp dụng cho tới khi giá trị B đạt được khoảng 0,8 và cấp tăng 100 kPa tiếp sau đó là thích hợp với nhiều loại đất, miễn là áp lực cố kết hiệu quả lớn hơn 100 kPa.
c) Sự khác nhau giữa áp lực buồng và áp lực ngược (chênh lệch áp lực) không được lớn hơn áp lực thí nghiệm hiệu quả cần thiết, hoặc 20 kPa, nếu nhỏ hơn thì không được nhỏ hơn 5 kPa (Xem chú thích 2).
CHÚ THÍCH 2. Độ chênh lệch áp lực 10kPa là thích hợp cho nhiều loại đất mà độ trương nở của nó là không đáng kể ở cấp ứng suất hữu hiệu này.
d) Đối với đất có khả năng trương nở, độ chênh lệch áp lực thường không được nhỏ hơn ứng suất hiệu quả cần thiết để tránh hiện tượng trương nở, hoặc không nhỏ hơn 5 kPa; nên chọn trị số nào lớn hơn.
CHÚ THÍCH 3: Khi phát hiện thấy có sự thay đổi áp lực nước lỗ rỗng hoặc thể tích thì cần vẽ đồ thị số đo theo thời gian để biết được khi nào thì ổn định.
5.5.2.3 Làm bão hoà bằng cách tăng áp lực buồng và áp lực ngược
5.5.2.3.1 Giới thiệu chung.
Trong phương pháp này, việc tăng áp lực buồng và áp lực ngược được thực hiện luân phiên nhau. Giai đoạn tăng áp lực buồng thì không để nước thoát ra hoặc thấm vào mẫu, như vậy sẽ có thể xác định được hệ số áp lực nước lỗ rỗng B tại mỗi cấp ứng suất toàn phần. Áp lực ngược tác động lên mẫu qua đầu trên hoặc cả hai đầu của mẫu thí nghiệm. Khi tác động lên cả hai đầu, cả hai van áp lực ngược và van thoát nước đáy được nối với hệ thống áp lực ngược.
5.5.2.3.2 Trình tự thao tác
Trình tự thao tác như sau:
a) Đảm bảo một (hoặc hai) van áp lực ngược và van của hệ thống xả (xem hình B.2 phụ lục B) đều đóng kín. Tăng một cấp áp lực buồng đầu tiên ngay sau khi lắp mẫu xong, (xem điểm b của 5.5.2.2).
b) Quan sát áp lực nước lỗ rỗng cho tới khi nó đạt được giá trị cân bằng (xem chú thích 3 của 5.5.2.2) và ghi lại. Nếu áp lực nước lỗ rỗng giảm đáng kể (có khả năng ngay sau lần nâng áp lực đầu tiên) thì tiến hành tiếp bước mô tả trong điểm c mà không cần đợi tới lúc áp lực cân bằng, để đảm bảo cho áp lực nước lỗ rỗng không hạ xuống đến 0.
c) Tăng áp lực buồng lên 50 kPa và lặp lại thao tác nêu trong điểm b. Nếu giá trị của áp lực nước lỗ rỗng ổn định thì ghi lại và tính toán sự thay đổi của áp lực nước lỗ rỗng (du, kPa) sinh ra do việc tăng áp lực này. Tính toán hệ số áp lực nước lỗ rỗng B theo công thức sau:
![]()
Nếu B bằng hoặc lớn hơn 0,95 thì mẫu được coi là đã bão hoà và lúc đó có thể tiến hành bước cố kết mẫu (xem 5.6.2). Nếu không thì thực hiện như hướng dẫn trong các điểm từ d đến j dưới đây.
d) Giữ cho van áp lực ngược và van hệ thống xả đóng, tăng áp lực trong đường áp lực ngược tới giá trị bằng áp lực buồng trừ đi độ chênh lệch áp lực đã chọn (xem các điểm c và d trong 5.5.2.2). (Nếu áp lực nước lỗ rỗng trong bước này lớn hơn áp lực ngược đã định, thì cần tăng thêm một hoặc nhiều cấp áp lực buồng cho tới khi áp lực ngược tương ứng lớn hơn áp lực nước lỗ rỗng cân bằng, hoặc cho tới khi giá trị B bằng hoặc lớn hơn 0,95). Ghi lại số đo do dụng cụ đo thể tích gắn trên đường áp lực ngược ghi được (V1) khi số đo ổn định, nghĩa là sau khi các đường nối đã được mở rộng.
(e) Mở van áp lực ngược (và van thoát nước đáy nếu nén cả hai đầu) để áp lực ngược tác động lên mẫu.
f) Quan sát áp lực nước lỗ rỗng và số đo trên dụng cụ đo thể tích. Khi áp lực nước lỗ rỗng bằng áp lực ngược (nếu chỉ nén đầu cuối và không thoát nước bên) và dụng cụ đo thể tích cho thấy rằng quá trình nước thấm vào mẫu đã thực sự ngừng, ghi lại số đọc này (u2 và V2), đóng van áp lực ngược (và van thoát nước đáy nếu cần). Theo dõi áp lực nước lỗ rỗng cho tới khi cân bằng.
g) Nếu có yêu cầu, thì tính thể tích nước thấm vào mẫu tức là sự tăng dần thể tích mẫu trong quá trình này, bằng phép trừ giữa thể tích V1 và V2.
h) Tăng áp lực buồng bằng một cấp áp lực thích hợp nữa (ds3) (xem các bước mô tả trong điểm b). Quan sát sự biến đổi kèm theo trong áp lực nước lỗ rỗng (du) như mô tả trong điểm b. Khi đạt được cân bằng, tính toán giá trị hệ số áp lực nước lỗ rỗng B theo công thức sau:

i) Lặp lại thao tác của các bước mô tả trong các điểm từ d đến h cho tới khi hệ số áp lực nước lỗ rỗng B cho biết đất đã bão hoà. Mẫu đất được coi là bão hoà, khi áp lực nước lỗ rỗng ổn định sau 12 giờ đồng hồ, hoặc qua một đêm và giá trị của B bằng hoặc lớn hơn 0,95. Đối với loại đất sét cứng, nứt nẻ thì khó có thể đạt được giá trị này và giá trị B bằng 0,90 không đổi sau ba lần tăng liên tục áp lực buồng và áp lực ngược, như mô tả trong các điểm từ d đến h thì coi như đất đã bão hoà.
j) Nếu có yêu cầu thì tính toán thể tích nước toàn phần mà mẫu thu vào các lỗ hổng trong đất bằng cách cộng toàn bộ các lượng chênh lệch từ các bước, như mô tả trong điểm g.
CHÚ THÍCH 1: Cần vẽ biểu đồ biểu diễn sự liên quan giữa giá trị B với áp lực buồng vào cuối mỗi cấp tăng áp lực hoặc với áp lực nước lỗ rỗng khi thay đổi áp lực buồng.
Biểu mẫu ghi chép và tính toán quá trình làm bão hòa tham khảo biểu mẫu CU-02 của Phụ lục A.
5.5.2.4 Làm bão hoà trong điều kiện độ ẩm không đổi
5.5.2.4.1 Giới thiệu chung.
Trong quá trình này không cho phép nước thoát ra hoặc thấm vào mẫu đất, sự bão hoà xảy ra chỉ do tác động tăng áp lực buồng.
5.5.2.4.2 Trình tự thao tác.
a) Nâng áp lực buồng đến giá trị danh định, như 50 kPa hoặc 100 kPa.
b) Cho áp lực nước lỗ rỗng đạt đến giá trị cân bằng (xem điểm f của 5.5.2.3.2).
c) Tăng các cấp áp lực buồng đều nhau, ghi lại giá trị áp lực nước lỗ rỗng phát sinh, như đã mô tả trong các điểm a và b của mục này và tính các giá trị B tương ứng.
d) Mẫu được coi là bão hoà khi thoả mãn một trong các nguyên tắc của điểm i của 5.5.2.3.2.
Mẫu đã bão hoà xong được đem đi thí nghiệm cố kết ngay với các ứng suất hữu hiệu mong muốn như hướng dẫn trong 5.5.3.
5.5.3 Cố kết mẫu
5.5.3.1 Giới thiệu chung
Giai đoạn cố kết kế tiếp ngay sau khi giai đoạn bão hoà (xem 5.5.2) và sử dụng chính những thiết bị đã dùng để làm bão hoà. Sự cố kết của mẫu trong thí nghiệm này là đẳng hướng. Mục tiêu của giai đoạn cố kết là đưa mẫu đất đến trạng thái của ứng suất hiệu quả cần thiết. Các số liệu nhận được trong quá trình cố kết được sử dụng để ước lượng tốc độ biến dạng thích hợp sẽ dùng trong quá trình nén lún, để xác định khi nào thì mẫu cố kết xong và để tính toán kích thước của mẫu khi bắt đầu giai đoạn nén.
5.5.3.2 Trình tự cố kết.
Sau khi kết thúc giai đoạn bão hoà, trong khi van áp lực ngược (xem hình B.2 – phụ lục B) vẫn đóng, phải ghi lại số đo áp lực nước lỗ rỗng và số đo biến đổi thể tích cuối cùng.
Trình tự cố kết như sau:
a) Tăng áp lực (s3) trong tuyến áp lực buồng và điều chỉnh áp lực ngược nếu cần, để tạo nên sự chênh lệch bằng áp lực cố kết hiệu quả cần thiết (s‘3), xác định theo công thức sau:
s‘3 = s3 – ub (13)
b) Ghi lại áp lực nước lỗ rỗng khi đạt đến độ ổn định (ui, kPa).
CHÚ THÍCH 1: Để thuận tiện, có thể ghi và biểu diễn các số đọc áp lực nước lỗ rỗng theo thời gian. để xác định được thời điểm đạt cân bằng.
CHÚ THÍCH 2: Áp lực nước lỗ rỗng dư phải tiêu tán thì bằng (ui – ub).
c) Ghi lại số đọc của thiết bị đo thay đổi thể tích. Tại thời điểm thích hợp (điểm 0) cho bắt đầu giai đoạn cố kết bằng cách mở một hoặc một số van áp lực ngược.
d) Ghi các số đọc của thiết bị đo thay đổi thể tích tại những thời điểm thích hợp.
CHÚ THÍCH 3: Các khoảng thời gian thích hợp để thuận tiện cho việc biểu diễn các số đo theo căn bậc hai thời gian là 0;
;
; 1; 2
; 4; 9; 12
; 16; 25; 36; 64 phút và 2; 4; 8; 16; 24 giờ. Những khoảng thời gian này cho ta một khoảng cách đều nhau để vẽ đồ thị, nhưng cần đọc các số đo nhiều lần hơn nữa đối với loại đất bị nén lún rất nhanh. Có thể lấy các số đọc vào những khoảng thời gian dài hơn để vẽ đường cong nén theo căn bậc hai của thời gian đủ chuẩn xác.
e) Quá trình cố kết diễn ra cho tới khi không còn một sự thay đổi thể tích đáng kể, khi ít nhất là 95 % áp lực nước lỗ rỗng dư đã bị tiêu tán, có nghĩa là tới khi U lớn hơn 95% theo công thức sau:
![]()
trong đó:
U là mức độ cố kết (%);
ui là số đo áp lực nước lỗ rỗng ổn định trước khi cố kết (kPa)
f) Khi quá trình cố kết kết thúc, ghi số đo thay đổi thể tích và tính toán sự thay đổi toàn bộ của thể tích (ΔVc) trong giai đoạn cố kết. Ghi số đo áp lực nước lỗ rỗng uc (kPa).
g) Mẫu đã được cố kết được chuẩn bị sẵn sàng cho thí nghiệm nén không thoát nước (xem 5.5.4).
CHÚ THÍCH 4:Biểu mẫu ghi chép tham khảo biểu mẫu CU-03-1 của Phụ lục A.
5.5.3.3 Tính toán và vẽ đồ thị
(Tham khảo biểu mẫu CU-03-1và CU-03-2 của Phụ lục A)
5.5.3.3.1 Tính toán kích thước của mẫu sau khi cố kết từ các công thức sau:
a) Thể tích:
VC = V0 – ΔVC (15)
b) Diện tích:

c) Chiều dài:

trong đó:
Vc là thể tích mẫu đất đã cố kết, (cm3);
Vo là thể tích ban đầu của mẫu, (cm3);
ΔVc là sự thay đổi thể tích của mẫu, trong quá trình cố kết, được xác định bằng thể tích nước thoát ra từ mẫu đất, (cm3)
Ac là diện tích mặt cắt ngang mẫu đã cố kết, (mm2);
Ao là diện tích mặt cắt ngang mẫu ban đầu, (mm2);
Lc là chiều dài mẫu đã cố kết, (mm);
Lo là chiều dài mẫu ban đầu, (mm).
CHÚ THÍCH: Nếu sự thay đổi thể tích trong quá trình bão hoà là đáng kể, thì ở đây cũng phải tính đến, chẳng hạn từ số liệu đo được ở trong buồng về sự thay đổi độ dài của mẫu cùng với ΔVc.
5.5.3.3.2 Vẽ đồ thị sự thay đổi thể tích đã đo được ứng với căn bậc hai thời gian.
CHÚ THÍCH: Nếu đo được và nếu thích hợp, có thể biểu diễn sự tiêu tán áp lực nước lỗ rỗng (tính theo %) theo logarit thời gian.
5.5.3.3.3 Kẻ một đường thẳng gần như trùng với đường biểu diễn sự thay đổi thể tích theo căn bậc hai thời gian (phần này thường trong khoảng 50% đầu của số đọc thể tích thay đổi). Từ điểm cuối của đồ thị kẻ một đường nằm ngang (xem hình B.4 – Phụ lục B). Tại điểm giao nhau của hai đường, đọc giá trị căn bậc hai thời gian, ký hiệu là
và tính toán thời gian tại điểm giao nhau này,
(bằng min).
5.5.3.3.4 Tính giá trị của hệ số cố kết cvi (theo m2/năm) cho cố kết đẳng hướng (Xem chú thích) từ công thức sau:
![]()
trong đó:
D là đường kính mẫu thí nghiệm, (mm);
l là hệ số phụ thuộc vào điều kiện thoát nước và tỷ số giữa chiều cao và đường kính của mẫu như ghi trong bảng 1.
CHÚ THÍCH: Giá trị của cvi thu được bằng cách này không được dùng trong tính toán lún công trình, vì nó cho sai số lớn khi có sử dụng thoát nước bên.
5.5.3.3.5 Tính toán hệ số nén thể tích (nếu yêu cầu) đối với cố kết đẳng hướng mvi (m2/MN) theo công thức sau:

trong đó:
ΔVc là sự thay đổi thể tích của mẫu do cố kết, (cm3);
Vo là thể tích mẫu ban đầu, (cm3);
ui là áp lực nước lỗ rỗng tại thời điểm bắt đầu cố kết, (kPa);
uc là áp lực nước lỗ rỗng tại thời điểm cố kết kết thúc, (kPa).
5.5.3.3.6 Tính toán thời gian thí nghiệm có ý nghĩa tf (bằng phút) trong thí nghiệm nén theo công thức sau:
tf = F x t100 (20)
Trong đó:
tf: Thời gian tính toán đến phá hoại (min), là khoảng thời gian bắt đầu nén mẫu tới khi mẫu bị phá hoại,
tf yêu cầu không được nhỏ hơn 120 phút;
F là hệ số, phụ thuộc vào điều kiện thoát nước và loại thí nghiệm nén, tức là có thoát nước hoặc không thoát nước.
Các giá trị F đối với thí nghiệm thoát nước và thí nghiệm không thoát nước của loại mẫu không nhạy cảm, tức là bị biến dạng dẻo, được ghi trong bảng 1 (xem các chú thích 1 và chú thích 2). Đối với loại đất cứng nứt nẻ và đất nhạy cảm, thì sử dụng thừa số cho trước đối với các thí nghiệm thoát nước và cả thí nghiệm không thoát nước.
CHÚ THÍCH 1: Thừa số F tính được trên cơ sở tiêu tán 95% áp lực nước lỗ rỗng dư tạo nên khi cắt và được chấp nhân cho hầu hết các mục đích thực tiễn.
CHÚ THÍCH 2: Đất có tính thấm tương đối cao có thể cho thời gian phá hoại tính toán ngắn một cách không thực tế. Thời gian phá hoại không thể ít hơn 2 giờ.
Bảng 1- Các yếu tố để xác định cv và thời gian tới phá hoại
|
Điều kiện thoát nước trong quá trình cố kết |
Các giá trị l |
Các giá trị F (đối với r = 2) |
||
|
L/D =2 |
L/D = r |
Thí nghiệm thoát nước |
Thí nghiệm không thoát nước |
|
|
Từ một phía |
1 |
r2/4 |
8,5 |
0,53 |
|
Từ cả hai phía |
4 |
R2 |
8,5 |
2,1 |
|
Từ chu vi và một phía |
80 |
3,2(1+2r)2 |
14 |
1,8 |
|
Từ chu vi và cả hai phía |
100 |
4(1+2r)2 |
16 |
2,3 |
5.5.3.3.7 Ước lượng khoảng biến dạng dọc trục tương đối tại thời điểm phá hoại của mẫu thí nghiệm, ɛf, như sau
a) Nếu chỉ cần điều kiện lúc phá hoại (theo chỉ tiêu xác định trong 3.8) thì ước lượng biến dạng tại thời điểm mẫu bắt đầu bị phá hoại.
b) Nếu khoảng cách giữa các lần đọc gần bằng nhau và mỗi giá trị này yêu cầu một áp lực nước lỗ rỗng bằng nhau, thì ɛf là lượng tăng biến dạng tương đối giữa mỗi lần đọc.
5.5.3.3.8 Tính toán tốc độ biến dạng dọc (dr, mm/min) dùng cho mẫu thí nghiệm theo công thức sau:
![]()
trong đó:
Lc là chiều dài mẫu đã cố kết, (mm);
ɛf là khoảng biến dạng có ý nghĩa đối với mẫu thí nghiệm;
tf là thời gian thí nghiệm có ý nghĩa, (min).
Trị dr cho biết tốc độ quy định lớn nhất của máy dùng thí nghiệm (xem chú thích).
CHÚ THÍCH: Tốc độ dịch chuyển của máy là tốc độ được tạo ra do nhà sản xuất qui định cho từng hệ số bánh răng khi máy chạy không tải. Tốc độ thực tế khi có tải có thể nhỏ hơn tốc độ này. “Tốc độ khe đóng” cần nhỏ hơn tốc độ máy do sự biến dạng của thiết bị đo tải trọng và của khung truyền tải. Tốc độ thực của chuyển vị dọc trục của mẫu là “tốc độ khe đóng” và cần phải có chênh lệch cho phép giữa tốc độ này với tốc độ dịch chuyển qui định của máy khi cần độ chính xác cao hơn.
5.5.4 Nén mẫu
5.5.4.1 Lắp buồng ba trục lên trên máy nén, nếu như đã phải tháo nó ra để thực hiện bão hoà hoặc cố kết mẫu.
5.5.4.2 Điều chỉnh tiếp xúc bằng máy hoặc bằng tay hoặc bằng động cơ cho tới khi pittông chịu tải của buồng được chỉnh đến gần đầu trên của tấm nén trên. Ghi số đọc trên thiết bị đo lực và coi đây là số đọc đầu tiên.
CHÚ THÍCH: Thao tác này làm tăng hiệu quả tổng hợp của áp lực buồng lên pittông và lực kháng ma sát ở vòng đệm pittông. Nếu cơ cấu đo lực cho phép điều chỉnh để đưa số đo đầu tiên của nó về 0.
5.5.4.3 Điều chỉnh máy nén sao cho mức thay đổi tốc độ chuyển vị càng gần giới hạn tính toán càng tốt, nhưng không được quá giới hạn tính toán trong 5.5.3.3.6.
5.5.4.4 Điều chỉnh tiếp để đưa pittông truyền tải tiếp xúc vừa vặn với tâm tấm nén trên. Kiể m tra xem mẫu phải được đặt đúng vụ trí, thẳng đứng và sao cho tải trọng dọc trục tác động lên mẫu càng nhỏ càng tốt.
5.5.4.5 Điều chỉnh thiết bị đo biến dạng dọc trục, sao cho có thể đo độ biến dạng thẳng đứng chính xác ít nhất tới 25 % của chiều dài mẫu. Đọc, ghi lại số đọc đầu tiên hoặc đưa thiết bị đo biến dạng về số 0.
5.5.4.6 Đảm bảo là một (hoặc hai) van áp lực ngược đều đóng, van áp lực buồng mở và van dẫn đến thiết bị đo áp lực nước lỗ rỗng mở (xem Hình B.2 của Phụ lục B).
5.5.4.7 Ghi lại các số đọc sau đây và coi chúng là các số đo ban đầu của quá trình cố kết (tham khảo biểu mẫu CU-04 của Phụ lục A)
– Ngày, giờ;
– Số đọc của thiết bị đo biến dạng;
– Số đọc thiết bị đo lực;
– Áp lực nước nước lỗ rỗng;
– Áp lực buồng.
5.5.4.8 Bắt đầu nén mẫu và đồng thời bấm giờ.
5.5.4.9 Trong khi thí nghiệm, sau từng khoảng thời gian phải ghi lại đồng bộ các số đọc trên thiết bị đo biến dạng, trên thiết bị đo lực và áp lực nước lỗ rỗng. Ít nhất cũng phải ghi được 20 bộ số đọc (giá trị) để xác định được rõ ràng đường cong ứng suất – biến dạng ở lân cận thời điểm phá hoại. (xem chú thích 1 đến chú thích 3).
CHÚ THÍCH 1: Đối với đất rất cứng. Có thể bị phá huỷ ngay lập tức ở biến dạng nhỏ, thì nên ghi các số đọc tại các khoảng ứng suất đều nhau hơn là khoảng biến dạng, để có được số lượng số đọc cần thiết.
CHÚ THÍCH 2: Áp lực buồng nén phải được kiểm tra luôn trong quá trình thí nghiệm để bảo đảm rằng nó được duy trì không đổi.
CHÚ THÍCH 3: Các số đọc thời gian đã trôi qua phải được ghi lại đều đặn để kiểm tra tốc độ biến dạng đã dùng.
5.5.4.10 Tính toán ứng suất lệch (s1 – s3) (kPa) và tỷ số ứng suất chính hiệu quả (s‘1/s‘3) như hướng dẫn trong 5.5.6.1 và thể hiện chúng trên đồ thị là tung độ và ứng với biến dạng dọc trục tương đối (%) là hoành độ, trong khi thí nghiệm vẫn đang tiếp tục thực hiện.
CHÚ THÍCH: Cùng lúc đó, áp lực nước lỗ rỗng cũng được biểu diễn theo biến dạng và đường ứng suất, t’ theo s’ (xem điểm (j) của 5.5.6.1).
5.5.4.11 Tiếp tục thí nghiệm cho tới lúc đạt được rõ ràng một trong các điều kiện sau, tuỳ thuộc vào tiêu chuẩn phá hoại riêng, được xác định ở 3.8.
a) Độ lệch ứng suất lớn nhất;
b) Tỷ số ứng suất chính hiệu quả lớn nhất;
c) Ứng suất cắt không đổi và áp lực nước lỗ rỗng không đổi.
Nếu không đạt được điều kiện phá hoại nào trong số vừa nêu trên, thì ngừng thí nghiệm khi đạt đến 25% biến dạng dọc trục. Trong trường hợp này, trong báo cáo thí nghiệm không nên nêu độ bền kháng cắt.
5.5.4.12 Ngừng giai đoạn nén và đóng van tới thiết bị đo áp lực nước lỗ rỗng. Mở van hệ thống xả để bảo vệ thiết bị đo ứng suất.
5.5.5 Dỡ tải
5.5.5.1 Ngừng thí nghiệm và dỡ tải
Khi kết thúc giai đoạn nén, phải lấy mẫu đất ra khỏi đế buồng ba trục thật nhanh để giữ cho nước bị hấp thụ vào trong đá thấm ở mức tối thiểu.
Trình tự thực hiện các thao tác như sau:
a) Đảm bảo rằng một (hoặc hai) van áp lực ngược và các van trên đường áp lực nước lỗ rỗng đóng kín. (Xem hình B.2 phụ lục B);
b) Dỡ hết lực dọc trục khỏi mẫu;
c) Giảm áp lực buồng đến 0 và tháo nước khỏi buồng;
d) Dỡ buồng ra và lấy mẫu ra khỏi buồng;
e) Tháo tấm nén trên, màng cao su, đá thấm và dụng cụ thoát nước bên (nếu sử dụng);
f) Phác hoạ và mô tả vắn tắt kiểu phá huỷ của mẫu.
5.5.5.2 Cân, đo mẫu sau thí nghiệm
5.5.5.2.1 Cân toàn bộ mẫu thí nghiệm và dùng thể tích Vc (xem 5.6.3.1) tính được tại thời điểm kết thúc cố kết để tính khối lượng thể tích cuối cùng.
5.5.5.2.2 Sấy khô toàn bộ mẫu cho tới khối lượng không đổi, xác định độ ẩm của toàn bộ mẫu. Nếu mẫu quá lớn, thì bẻ nhỏ trước khi đặt vào buồng sấy.
5.6 Tính toán, vẽ đồ thị và báo cáo kết quả
5.6.1 Tính toán
(Tham khảo biểu mẫu CU-05-1 đến CU-05-5 của Phụ lục A).
Từ mỗi bộ số đọc tính toán các đại lượng sau:
Biến dạng dọc trục tương đối, ɛ, theo công thức sau:
![]()
trong đó:
Lc – chiều dài mẫu sau khi cố kết, (mm);
ΔL – là phần chiều dài thay đổi so với độ dài ban đầu trong quá trình nén, xác định được từ thiết bị đo biến dạng, (mm).
CHÚ THÍCH 1: Biến dạng được tính bằng biến dạng cộng dồn, nghĩa là sự biến đổi về kích thước so với kích thước ban đầu.
b) Diện tích mặt cắt ngang của mẫu thẳng góc với trục. Cho rằng mẫu biến dạng theo hình trụ thẳng. Diện tích As (mm2) được xác định theo công thức sau:
![]()
trong đó:
Ac – diện tích ban đầu của mẫu thẳng góc với trục của nó tại thời điểm bắt đầu cố kết.
CHÚ THÍCH 2: Phương trình này được lập trên cơ sở cho rằng trong thí nghiệm không thoát nước đối vời mẫu bão hoà hoàn toàn, thì biến dạng thể tích là bằng 0.
c) Lực dọc trục, P (N) tác động thêm lên mẫu ngoài áp lực buồng theo công thức sau:
P = (R – Ro) Cr (24)
trong đó:
R là số đọc trên thiết bị đo lực (vạch chia hoặc số);
Ro là số đọc ban đầu của thiết bị đo lực tương ứng với lực tác động lên mẫu bằng 0 (vạch chia hoặc số);
Cr là hệ số hiệu chỉnh của thiết bị đo lực N, (vạch chia hoặc số);
d) Ứng suất dọc trục tác dụng, tức là sự chênh lệch ứng suất chính, hoặc ứng suất lệch đo được tính theo công thức sau:
![]()
e) Hiệu chỉnh màng, để hạn chế ảnh hưởng của màng. Đường cong trong hình 5 cho số hiệu chỉnh smb đối với mẫu có đường kính ban đầu là 38 mm bọc trong màng dày 0,2 mm. Đối với các điều kiện khác thì số hiệu chỉnh tính được trên hình 5 phải nhân với:
![]()
để có giá trị smb dùng cho tính toán,
trong đó:
D là đường kính ban đầu của mẫu, (mm);
tm là tổng độ dày của màng (có thể nhiều hơn một lớp) bọc mẫu, (mm).
f) Hiệu chỉnh thoát nước. Khi lắp dụng cụ thoát nước bên thẳng đứng, thì phải dùng số hiệu chỉnh sdr
Cho biến dạng vượt quá 0,02 (2%). Giá trị sdr lấy theo bảng 2.
CHÚ THÍCH 3: Tác dụng phối hợp của các màng và thoát nước bên trong quá trình nén dọc trục là phức tạp và không có ý kiến thống nhất về các số hiệu chỉnh chính xác cần phải sử dụng. Các số hiệu chỉnh cho trong bảng 2 được lập ra trên cơ sở đơn giản hoá các giả thiết và các giá trị đại diện đã được thừa nhận.
Bảng 2. Số hiệu chỉnh cho thoát nước bên thẳng đứng
|
Đường kính mẫu,mm |
Số hiệu chỉnh thoát nước sdr, kPa |
|
38 50 70 100 150 |
10 7 5 3,5 2,5 |
Chú thích: Số hiệu chỉnh cho các mẫu có đường kính nằm trong khoảng giữa các kích thước nêu trên có thể nhận được bằng nội suy sau.
g) Độ lệch ứng suất đã hiệu chỉnh (s1–s3) (kPa):
(s1–s3) = (s1–s3) µ – smb – sdr (27)
h) Ứng suất chính lớn nhất s1 (kPa):
s1 = (s1–s3) +s3 (28)
trong đó :
s3 là áp lực buồng hạn chế nở hông.
i) Ứng suất chính hiệu quả lớn nhất và nhỏ nhất: (s‘1 và s‘3) (kPa)
s‘1 = s1 – u (29)
s‘3 = s3 – u (30)
trong đó:
u là áp lực nước lỗ rỗng, tính bằng kPa.
j) Tỷ số ứng suất chính hiệu quả s‘1/s‘3
k) Hệ số áp lực nước lỗ rỗng A.
![]()
trong đó :
u0 là áp lực nước lỗ rỗng trong mẫu thí nghiệm tại thời điểm bắt đầu nén.
l) Các thông số đường suất ứng suất hiệu quả :

5.6.2 Vẽ đồ thị
(Tham khảo biểu mẫu CU-05-2 và CU-05-5 – Phụ lục A)
Đưa lên đồ thị các số liệu sau:
a) Đồ thị ứng suất – biến dạng có trục hoành là biến dạng dọc trục tương đối (thường bằng phần trăm) và trục tung là ứng suất lệch.
b) Đồ thị biến đổi áp lực nước lỗ rỗng có trục hoành như nêu ở điểm a, giá trị áp lực nước lỗ rỗng được thể hiện trên trục tung. Phải đánh dấu thật rõ áp lực nước lỗ rỗng ban đầu trong giai đoạn nén.
c) Tỷ số ứng suất chính hiệu quả, s‘1/s‘3 được vẽ trên trục tung còn trục hoành biểu diễn biến dạng dọc trục tương đối.
d) Nếu điểm phá hoại được xác định bởi giá trị cực đại của độ lệch ứng, hoặc bởi tỷ số ứng suất chính hiệu quả, hay là bởi ứng suất lệch không đổi và áp lực nước lỗ rỗng, rút ra một giá trị thích hợp từ đường cong trơn vẽ qua các điểm quan trắc như đã nêu ở các điểm từ a đến c (xem chú thích). Đọc trên đường cong giá trị tương ứng của biến dạng dọc trục.
CHÚ THÍCH: Đường cong có thể cho thấy giá trị lớn nhất nằm giữa hai tập hợp số đọc.
e) Vòng tròn Mohr của ứng suất hữu hiệu biểu thị cho điều kiện phá hoại.
f) Đường ứng suất, nếu yêu cầu, đối với ứng suất hiệu quả, với các giá trị s’ biểu diễn trên trục hoành và t’ trên trục tung là một đường đơn nhất có tỷ lệ đứng và ngang như nhau.
5.6.3 Báo cáo kết quả
5.6.3.1 Giới thiệu chung.
Báo cáo phải nêu được phương pháp thí nghiệm đã sử dụng. Phương pháp nén ba trục, cố kết – không thoát nước có đo áp lực nước lỗ rỗng. Đối với mỗi một mẫu thí nghiệm trong một tổ hợp các mẫu thử, các số liệu nêu trong 5.6.3.2 phải được báo cáo rõ ràng.
5.6.3.2 Mẫu đơn.
Số liệu cho mỗi một mẫu thí nghiệm sẽ gồm:
a) Độ sâu và định hướng của mẫu thí nghiệm trong toàn khối mẫu nguyên thuỷ;
b) Các kích thước ban đầu của mẫu;
c) Độ ẩm ban đầu, khối lượng thể tích tự nhiên (xem TCVN 4196 và TCVN 4202);
d) Có dùng thoát nước bên hay không;
e) Phương pháp đã sử dụng để làm bão hoà mẫu, kể cả các cấp áp lực gia tăng và áp lực khác nhau nếu có sử dụng;
f) Áp lực nước lỗ rỗng, áp lực buồng và hệ số áp lực nước lỗ rỗng B khi bão hoà kết thúc;
g) Áp lực buồng, áp lực ngược và áp lực hiệu quả đã sử dụng để cố kết;
h) Áp lực nước lỗ rỗng và lượng tiêu tán áp lực nước lỗ rỗng tính theo phần trăm (%) tại thời điểm kết thúc cố kết.
i) Đổ thị biến đổi thể tích hoặc biến dạng thể tích ứng với căn bậc hai thời gian đối với giai đoạn cố kết, như mô tả trong 5.6.3;
j) Tốc độ chuyển vị dọc trục đã áp dụng cho mẫu (mm/phút) hoặc biến dạng đo bằng phần trăm trên giờ (%/h);
k) Áp lực nước lỗ rỗng và ứng suất hữu hiệu tại thời điểm bắt đầu giai đoạn;
l) Tiêu chuẩn phá huỷ được qui định (xem 3.8);
m) Biến dạng dọc trục, ứng suất lệch, áp lực nước lỗ rỗng, ứng suất chính hiệu quả lớn nhất và nhỏ nhất tại thời điểm phá huỷ;
n) Tỷ số các ứng suất chính hữu hiệu tại thời điểm phá huỷ;
o) Sơ hoạ hình dáng mẫu sau khi thí nghiệm, cho thấy kiểu phá huỷ;
p) Chi tiết và độ lớn của các trị hiệu chỉnh dùng cho ứng suất lệch đã đo được;
q) Khối lượng thể tích và độ ẩm sau thí nghiệm;
r) Các đồ thị như mô tả trong 5.6.2.
5.6.3.3 Thí nghiệm tổ hợp một loạt các mẫu thử (từ hai mẫu trở lên). Khi nhiều mẫu cùng lấy từ một khối mẫu đất được thí nghiệm dưới các áp lực hữu hiệu khác nhau để xác định các thông số sức kháng cắt, thì các số liệu nêu trong 5.6.3.2 sẽ được gộp lại và báo cáo chung cho tổ hợp mẫu.
CHÚ THÍCH 1: Có thể vẽ từng đồ thị như mô tả chi tiết trong 5.6.2 cho từng mẫu thí nghiệm riêng hoặc gộp chung tại trên cùng một đô thị.
CHÚ THÍCH 2: Các thông số sức kháng cắt biểu thị theo ứng suất hiệu quả, tức là cường độ lực dính c’ (kPa) và góc ma sát trong (j‘) (độ) có thể tính được như sau (Xem chú thích 3):
Vẽ đường đi sát nhất qua các điểm đã chấm trên đồ thị biểu diễn các giá trị s’ và t’ tại thời điểm phá hoại theo tiêu chuẩn phá hoại đã chọn (xem 3.8) Xác định giá trị t’, tại nơi đường này cắt trục t‘ (t‘o, kPa). Đo góc của đường này với đường nằm ngang (q, độ).
Tính các thông số kháng cắt từ quan hệ:

CHÚ THÍCH 3: Các mẫu thí nghiệm đơn lấy từ một khối mẫu đất chung tuy bề ngoài giống nhau, nhưng thường khác nhau về đặc điểm ứng suất – biến dạng và các tính chất khác. Sự biến đổi như vậy của các mẫu thử sẽ gây khó khăn cho việc xác định các thông số kháng cắt đại diện cho toàn bộ mẫu.
CHÚ THÍCH 4: Theo cách khác, các thông số kháng cắt có thể xác định được bằng cách vẽ đường bao quanh các vòng tròn Mohr của sự phá huỷ (theo tiêu chuẩn phá huỷ đã lựa chọn), sau đó đo đoạn tạo bởi điểm giao nhau với trục đứng và gốc tọa độ (c’) và góc nghiêng với trục nằm ngang (j‘).
6 Thí nghiệm sức kháng cắt cố kết – thoát nước, có đo sự thay đổi thể tích – sơ đồ CD
6.1 Nội dung của phương pháp thí nghiệm
Mẫu thí nghiệm trước tiên được cố kết trong điều kiện ứng suất đẳng hướng không đổi và thoát nước hoàn toàn (giai đoạn cố kết). Sau khi kết thúc giai đoạn cố kết, tăng tải trọng dọc trục với tốc độ nhỏ vừa đủ đảm bảo không xảy ra việc tăng áp lực nước lỗ rỗng (giai đoạn nén) và đo được sự thay đổi thể tích của mẫu.
Thí nghiệm này xác định được các thông số về sức kháng cắt hữu hiệu c’ và j‘ khi mẫu bị phá hoại; các đặc trưng biến đổi thể tích trong quá trình cắt mẫu thoát nước tự do.
Thí nghiệm được tiến hành theo ba bước:
Bước 1 – Làm bão hoà xem 5.5 ;
Bước 2- Cố kết xem 5.6 ;
Bước 3- Nén xem 6.2.
6.2 Điều kiện thí nghiệm.
Những điều kiện thí nghiệm sau phải được chỉ rõ trước khi bắt đầu thí nghiệm:
a) Kích thước mẫu;
b) Số lượng mẫu được thí nghiệm;
c) Áp lực hông: Việc xác định các thông số về độ bền thường thí nghiệm với một tập hợp mẫu gồm ba mẫu, áp lực nén hữu hiệu lần lượt là 0,5; 1,0 ; 2,0 lần áp lực nén hữu hiệu thực tế.
CHÚ THÍCH: Đối với loại đất chặt, áp lực cố kết hiệu quả phải được xem xét làm sao tương ứng với ứng suất hiệu quả cực đại tính toán được ở thực tế (sv) và các tích của nó với 1/2; 1 và 2 thường là thích hợp.
d) Áp lực ngược.
6.3 Thiết bị, dụng cụ thí nghiệm
Thiết bị dụng cụ thí nghiệm xem 5.3
6.4 Chuẩn bị mẫu thí nghiệm
Chuẩn bị mẫu thí nghiệm xem 5.4
6.5 Cách tiến hành
6.5.1 Lắp đặt
Lắp đặt mẫu thí nghiệm 5.5.1.
6.5.2 Làm bão hòa mẫu
Lắp đặt mẫu thí nghiệm 5.5.2.
6.5.3 Cố kết mẫu
Lắp đặt mẫu thí nghiệm 5.5.3.
6.5.4 Nén mẫu
6.5.4.1 Lắp đặt buồng ba trục lên máy nén, nếu như đã tháo nó ra để làm bão hoà và cố kết mẫu.
6.5.4.2 Điều chỉnh tiếp xúc bằng máy hoặc bằng tay hoặc bằng động cơ cho tới khi pittông chịu tải của buồng được chỉnh đến gần đầu trên của tấm nén trên. Ghi số đọc trên thiết bị đo lực và coi đây là số đọc đầu tiên.
CHÚ THÍCH:. Tiêu chuẩn này cho phép xét tới ảnh hưởng gộp của áp lực buồng tác động lên pittông và lực kháng ma sát của bạc pittông. Nếu cơ cấu đo lực cho phép, thì điều chỉnh thiết bị đo lực sao cho số đọc lực ban đầu bằng 0.
6.5.4.3 Điều chỉnh máy nén sao cho tốc độ càng nhỏ càng tốt nhưng không được vượt quá tốc độ tính toán trong 5.5.3.3.6.
6.5.4.4 Điều chỉnh tiếp pittông truyền tải trọng vào đúng vị trí tiếp xúc với hốc định vị trên mặt tấm nén trên. Kiểm tra và đảm bảo rằng mẫu đã được đặt đúng, pittông đã đồng trục với mẫu và áp lực dọc trục tác động lên mẫu là nhỏ nhất.
6.5.4.5 Điều chỉnh thiết bị đo biến dạng dọc trục, sao cho có thể đo độ biến dạng thẳng đứng chính xác ít nhất tới 25 % của chiều dài mẫu. Đọc, ghi lại số đọc đầu tiên hoặc đưa thiết bị đo biến dạng về số 0.
6.5.4.6 Van áp lực buồng và một hoặc hai van áp lực ngược đều mở và mở van dẫn đến thiết bị đo áp lực nước lỗ rỗng trong quá trình nén mẫu (xem hình B.2 Phụ lục B).
6.5.4.7 Ghi các số đọc sau đây và coi chúng là các số đọc ban đầu của giai đoạn nén: (tham khảo biểu mẫu CD-04 của Phụ lục A)
a) Ngày, giờ;
b) Số đọc trên thiết bị đo biến dạng;
c) Số đọc của thiết bị đo lực;
d) Số đọc của thiết bị đo biến đổi thể tích;
e) Áp lực nước lỗ rỗng;
f) Áp lực buồng.
6.5.4.8 Nén mẫu, đồng thời bấm đồng hồ đo thời gian.
6.5.4.9 Ghi lại các bộ số đọc của thiết bị đo biến dạng, thiết bị đo lực, thiết bị đo biến đổi thể tích trong từng khoảng thời gian thí nghiệm. Ghi lại ít nhất 20 bộ số đọc (giá trị) để có thể xác định một cách rõ ràng đường cong ứng suất – biến dạng ở lân cận điểm phá hoại. (xem các chú thích từ 1 đến 4).
CHÚ THÍCH 1: Đối với loại đất trạng thái cứng có thể bị phá huỷ ngay lập tức dưới trị biến dạng nhỏ thì phải ghi lại các số đo lực thường xuyên hơn là biến dạng để có được số lượng các số đọc yêu cầu
CHÚ THÍCH 2: Không cần thiết phải ghi lại thường xuyên các số đo của áp lực nước lỗ rỗng cùng với mỗi loạt số đọc nêu trên chừng nào chúng thay đổi nhưng không vượt quá các giới hạn quy định (xem 6.5.4.11).
CHÚ THÍCH 3: Áp lực buồng và áp lực ngược phải được kiểm tra định kỳ trong quá trình thí nghiệm để đảm bảo chúng luôn không đổi. Nếu cần, phải điều chỉnh lại.
CHÚ THÍCH 4: Các số đọc thời gian thi nghiệm được ghi lại theo định kỳ, nhằm kiểm tra tốc độ biến dạng đã dùng.
6.5.4.10 Ngay trong quá trình thí nghiệm, tính toán các giá trị ứng suất lệch (s1–s3) (kPa), như đã nêu trong mục 6.9.1 và vẽ đồ thị với tung độ là chúng và hoành độ là biến dạng dọc trục tương đối (%).
CHÚ THÍCH: Trong cùng một lúc biến dạng thể tích hoặc sự thay đổi thể tích của mẫu thử cũng có thể được vẽ đồng thời lên đồ thị theo biến dạng.
6.5.4.11 Quan sát áp lực nước lỗ rỗng định kỳ và nếu nó thay đổi khỏi giá trị áp lực ngược hơn 4% áp lực bên hiệu quả, thì phải giảm tốc độ biến dạng xuống còn 50 % hoặc nhỏ hơn.
6.5.4.12 Tiếp tục thí nghiệm cho tới lúc đạt được một hai điều kiện sau, tuỳ theo cách xác định tiêu chuẩn phá hoại như trong 3.8:
a) Ứng suất lệch lớn nhất;
b) Biến dạng cắt tiếp tục xảy ra dưới thể tích không đổi và ứng suất cắt không đổi.
Nếu không đạt được điều kiện phá hoại nào trong số vừa nêu trên, thì ngừng thí nghiệm khi đạt đến 25% biến dạng dọc trục. Trong trường hợp này, trong báo cáo thí nghiệm không nên nêu độ bền kháng cắt.
6.5.4.12 Ngừng giai đoạn nén, đóng van nối với thiết bị đo áp lực nước lỗ rỗng và đóng van áp lực ngược. Mở van hệ thống xả để bảo vệ thiết bị đo ứng suất.
6.5.5 Dỡ tải
6.5.5.1 Ngừng thí nghiệm và dỡ tải
Khi kết thúc giai đoạn nén, phải lấy mẫu đất ra khỏi đế buồng ba trục thật nhanh để giữ cho nước bị hấp thụ vào trong đá thấm ở mức tối thiểu.
Trình tự các thao tác này như sau:
a) Đóng kín một hoặc hai van áp lực ngược và van thông với đường áp lực nước lỗ rỗng.
(Xem hình B.2 Phụ lục B);
b) Dỡ hết lực dọc trục khỏi mẫu;
c) Giảm áp lực buồng xuống bằng 0 và tháo nước khỏi buồng;
d) Dỡ buồng và lấy mẫu ra khỏi buồng;
e) Tháo tấm nén trên, màng cao su, đá thấm và dụng cụ thoát nước bên (nếu có sử dụng);
f) Phác hoạ và mô tả vắn tắt kiểu phá huỷ của mẫu.
6.5.5.2 Cân, đo mẫu sau thí nghiệm
6.5.5.2.1 Cân toàn bộ mẫu, dùng thể tích cuối cùng tính toán (Vc – Δv) để tính khối lượng thể tích cuối cùng, trong đó Vc là thể tích tại thời điểm kết thúc giai đoạn cố kết và V là thể tích bị giảm trong giai đoạn nén.
6.5.5.2.2 Sấy khô toàn bộ mẫu cho tới khối lượng không đổi và xác định độ ẩm của toàn bộ mẫu theo TCVN 4196. Bẻ vụn mẫu to trước khi đặt vào lò sấy.
6.6 Tính toán, vẽ đồ thị và báo cáo kết quả
6.6.1 Tính toán
(Tham khảo biểu mẫu từ CD-05-1 đến CD-05-4 của Phụ lục A)
Từ mỗi loạt số đọc tính toán các giá trị sau:
Biến dạng dọc trục tương đối, ɛ theo công thức sau:
![]()
trong đó:
Lc là chiều dài mẫu sau khi cố kết, (mm);
ΔL là phần chiều dài thay đổi so với độ dài ban đầu trong quá trình nén, xác định được từ thiết bị đo biến dạng, (mm).
CHÚ THÍCH 1: Biến dạng được tính bằng biến dạng cộng dồn, nghĩa là sự biến đổi về kích thước so với kích thước ban đầu.
b) Biến dạng thể tích do nén, ɛv theo công thức sau:
![]()
trong đó:
ΔV- sự thay đổi thể tích mẫu kể từ lúc bắt đầu nén (xem chú thích 2);
Vc– thể tích mẫu đã cố kết tại thời điểm bắt đầu nén.
CHÚ THÍCH 2: Theo qui ước về dấu thì ứng suất nén là dương và vì vậy, sự giảm thể tích (nén hoặc cố kết) cũng là dương và tăng thể tích (nở hoặc trương nở) là âm;
c) Diện tích tiết diện ngang của mẫu thẳng góc với trục của nó (giả sử rằng nó bị biến dạng theo hình trụ đều đặn). Diện tích (tính theo mm2) được tính theo công thức sau:
![]()
trong đó:
Ac là diện tích ban đầu của mẫu vuông góc với trục tại thời điểm bắt đầu nén.
d) Lực dọc trục, P (theo N), tác động thêm với áp lực buồng được tính theo công thức sau:
P = (R – Ro) x Cr (39)
trong đó:
R là số đọc trên thiết bị đo lực (vạch chia hoặc độ);
Ro là số đọc ban đầu ghi được trên thiết bị đo lực tương ứng với lực tác dụng bằng 0;
Cr là số hiệu chuẩn của thiết bị đo lực (theo N/vạch hoặc độ):
e) Ứng suất dọc trục tác dụng hay là hiệu ứng suất chính đo được, hay độ lệch ứng suất theo công thức sau:
![]()
f) Số hiệu chỉnh màng sử dụng để xét tới hiệu ứng kìm giữ của màng cao su. Đường cong trong hình 4 cho số hiệu chỉnh đối với mẫu thí nghiệm có đường kính ban đầu là 38 mm được bọc trong màng dày 0,2mm. Với các điều kiện khác thì số hiệu chỉnh được xác định từ hình 4 rồi đem nhân với
![]()
để có được giá trị smb cần thiết,
trong đó:
D là đường kính ban đầu của mẫu, (mm);
tm là độ dày của màng (có thể gồm hơn1 lớp màng) bọc mẫu, (mm);
g) Số hiệu chỉnh thoát nước. Khi lắp bộ phận thoát nước bên, phải sử dụng số hiệu chỉnh bổ sung sdr, cho biến dạng vượt quá 0,02 (2 %).
Giá trị của sdr được lấy từ bảng 2.
CHÚ THÍCH 3: Tác dụng kết hợp của các màng và vật liệu thoát nước bên trong quá trình nén dọc trục là rất phức tạp, vì vậy không có ý kiến thống nhất về việc sử dụng số hiệu chỉnh nào là chuẩn xác. Những số hiệu chỉnh ghi trong bảng 2 được lập ra trên cơ sở đã đơn giản hoá các giả thiết và chỉ nêu các giá trị được công nhận;
h) Độ lệch ứng suất đã hiệu chỉnh (s1 – s3), kPa
(s1 – s3) = (s1 – s3)µ – smb – sdr (42)
i) Ứng suất chính lớn nhất, s1, kPa:
s1 = (s1 – s3) + s3 (43)
trong đó:
s3 là áp lực buồng có tác dụng hạn chế nở hông (áp lực bên đối với mẫu);
j) Các ứng suất chính hiệu quả lớn nhất và nhỏ nhất (s‘1 và s‘3), kPa :

trong đó:
u là áp lực nước lỗ rỗng;
k) Nếu cần, tính các thông số thuộc đường ứng suất tuyến tính s’ và t’, kPa thông qua ứng suất hiệu quả :

6.6.2 Vẽ đồ thị
(Tham khảo biểu mẫu CD-05-5 của Phụ lục A)
Biểu diễn trên đồ thị các số liệu sau:
a) Đường cong ứng suất – biến dạng, với biến dạng dọc trục (thường bằng phần trăm) trên trục hoành và ứng suất lệch trên trục tung. Khi sự phá hoại xẩy ra do ứng suất lệch lớn nhất, thì tìm giá trị lớn nhất nằm trên đường cong trơn vẽ qua các điểm quan trắc. (Xem chú thích). Đọc từ đường cong trị tương ứng của biến dạng dọc trục.
CHÚ THÍCH: Đường cong có thể cho giá trị lớn nhất giữa hai loạt số đọc.
b) Đồ thị thay đổi thể tích dùng trục hoành như điểm a, còn sự thay đổi của thể tích (bằng cm3 hoặc như biến dạng thể tích) thì đưa lên trục tung.
c) Vòng tròn Mohr của ứng suất hiệu quả, thể hiện điều kiện tại thời điểm phá hoại.
6.6.3 Báo cáo kết quả
(Tham khảo biểu mẫu từ CD-05-1 đến CD-05-5 của Phụ lục A)
6.6.3.1 Giới thiệu chung.
Báo cáo phải nêu rõ phương pháp đã sử dụng, tức là nén ba trục cố kết – thoát nước và đo sự thay đổi thể tích; nêu cả các thông tin có liên quan bao gồm :
– Tên dự án;
– Hố khoan, đào;
– Mẫu số (ký hiệu mẫu);
– Độ sâu;
– Phương pháp thí nghiệm;
– Mô tả bên ngoài, bao gồm cấu trúc của đất, đặc điểm bất thường của mẫu.
Đối với mỗi mẫu thí nghiệm các số liệu nêu trong 6.6.3.2 phải được thông báo rõ. Nếu các mẫu thí nghiệm gồm một loạt các mẫu thử thì các số liệu sẽ được gộp lại như nêu trong 6.6.3.3.
6.6.3.2 Mẫu đơn lẻ.
Số liệu cần thiết phải có cho mỗi mẫu đơn lẻ là :
a) Độ sâu và ảnh hưởng của mẫu thí nghiệm trong khối mẫu ban đầu;
b) Các kích thước ban đầu của mẫu;
c) Độ ẩm ban đầu, khối lượng thể tích tự nhiên (xem TCVN 4196 và TCVN 4202);
d) Có dùng thoát nước bên hay không;
e) Phương pháp đã dùng để làm bão hoà gồm cả các cấp tăng áp lực và áp lực khác nhau nếu có sử dụng;
f) Áp lực nước lỗ rỗng, áp lực buồng và hệ số áp lực nước lỗ rỗng B khi bão hoà kết thúc;
g) Áp lực buồng, áp lực ngược và áp lực hữu hiệu dùng để cố kết;
h) Áp lực nước lỗ rỗng và phần trăm tiêu tán áp lực nước lỗ rỗng tại thời điểm kết thúc giai đoạn cố kết;
i) Đồ thị biểu diễn sự thay đổi thể tích hoặc biến dạng thể tích theo căn bậc hai thời gian cho giai đoạn cố kết, như đã mô tả trong 5.6.3;
j) Tốc độ chuyển vị dọc trục lên mẫu (mm/min) hoặc phần trăm biến dạng trên giờ (%/h);
k) Áp lực nước lỗ rỗng và ứng suất hiệu quả tại thời điểm bắt đầu giai đoạn nén;
l) Tiêu chuẩn phá hoại đã định;
m) Biến dạng dọc trục tương đối, độ lệch ứng suất, biến dạng thể tích, áp lực nước lỗ rỗng và ứng suất chính lớn nhất và nhỏ nhất tại thời điểm phá hoại;
n) Phác họa mẫu sau thí nghiệm cho thấy kiểu phá hoại;
o) Chi tiết và độ lớn của các trị hiệu chỉnh dùng cho độ lệch ứng suất đo được;
p) Khối lượng thể tích và độ ẩm cuối cùng;
q) Đồ thị như mô tả trong 6.6.2.
6.6.3.3 Thí nghiệm tổ hợp một loạt các mẫu thử (từ hai mẫu trở lên). Khi một loạt mẫu thí nghiệm lấy từ một khối mẫu đất cho thí nghiệm dưới các áp lực hiệu quả khác nhau để xác định các thông số kháng cắt. các số liệu liệt kê trong 6.6.3.2 được gộp lại và báo cáo chung cho tổ hợp mẫu.
CHÚ THÍCH 1: Có thể vẽ các đồ thị nêu trong 6.6.2 cho riêng từng mẫu đất hoặc gộp lại trên những trục chung.
CHÚ THÍCH 2: Các thông số kháng cắt theo ứng suất hiệu quả như là lực dính c’ (kPa) và góc ma sát trong, j‘ (độ) có thể xác định như sau (Xem chú thích 3).
Vẽ một đường thẳng thích hợp đi qua các điểm đại diện cho s’ và t’ tại thời điểm phá hoại theo điều kiện phá hoại đã lựa chọn.
Xác định giá trị của t’ tại điểm đường thẳng này cắt trục t’ (t’o, kPa).
Đo góc nghiêng của đường thẳng này với đường nằm ngang (q, độ). Tính toán các thông số kháng cắt từ quan hệ sau:

CHÚ THÍCH 3: Các mẫu thí nghiệm đơn lấy từ một khối mẫu đất chung tuy bề ngoài giống nhau, nhưng thường khác nhau về đặc điểm ứng suất – biến dạng và các tính chất khác. Sự biến đổi như vậy của các mẫu thử sẽ gây khó khăn cho việc xác định các thông số kháng cắt đại diện cho toàn bộ mẫu.
CHÚ THÍCH 4: Có thể xác định các thông số kháng cắt bằng cách vẽ đường bao của họ các đường tròn Mohr lúc phá hoại mẫu (theo tiêu chuẩn phá hoại đã chọn) và đo đoạn tạo bởi giao điểm với trục đứng và gốc tọa độ (c’) và góc nghiêng với đường nằm ngang (j‘).
Phụ lục A
(Tham khảo)
Biểu ghi và báo cáo kết quả thí nghiệm nén ba trục

























Phụ lục B
(Tham khảo)
Các hình vẽ

|
CHÚ DẪN 1 Nắp buồng 2 Pittông truyền tải 3 Ống lót hoặc ống đệm pittông 4 Thân buồng 5 Đế buồng 6 Van áp lực buồng 7 Van xả đáy 8 Thiết bị đo lực 9 Nước áp lực đã khử khí |
10 Trụ và giá đỡ thiết bị đo biến dạng dọc trục 11 Tấm nén trên 12 Tấm đế dưới 13 Màng (cao su…) 14 Gioăng cao su 15 Nút xả khí 16 Thanh giằng liên kết 17 Tấm đệm 18 Gioăng cao su (giữa nắp buồng và pittông) |
Hình B.1: Chi tiết của buồng nén ba trục (sơ đồ UU)

|
CHÚ DẪN: 1 Nắp buồng 2 Pittông 3 Ống lót hoặc ống đệm pittông 4 Thân buồng 5 Đế buồng 6 Van áp lực buồng 7 Van xả đáy 8 Thiết bị đo lực 9 Nước áp lực đã khử khí 10 Trụ và giá đỡ thiết bị đo biến dạng dọc trục |
11 Tấm nén trên 12 Tấm đế dưới 13 Màng (cao su…) 14 Gioăng cao su 15 Nút xả khí 16 Thanh giằng liên kết 17 Đá thấm 18 Gioăng cao su (giữa nắp buồng và pittông) 19 Van áp lực nước lỗ rỗng 20 Thiết bị đo áp lực nước lỗ rỗng 21 Van áp lực ngược |
Hình B.2: Chi tiết cơ bản của buồng nén ba trục (sơ đồ CU và CD)



Hình B.5: Đồ thị hiệu chỉnh màng cao su
Phụ lục C
(Quy định)
Kiểm tra thiết bị
C.1 Giới thiệu chung.
Các thiết bị thí nghiệm ba trục phải được kiểm tra và thử nghiệm trước khi sử dụng. Các bước kiểm tra mô tả trong các mục từ C.2 đến mục C.5, được thực hiện cho hệ thống áp lực buồng, áp lực ngược và áp lực nước nước lỗ rỗng theo định kỳ. Kiểm tra các hệ thống máy theo hai cách, kiểm tra toàn diện và kiểm tra thường ngày.
Kiểm tra toàn diện (xem các mục C.2; mục C.3 và mục C.5) được tiến hành trong các trường hợp:
a) Khi bất cứ một chi tiết nào (mới hoặc sửa chữa thay thế) được đưa vào máy;
b) Theo khoảng thời gian không quá ba tháng;
Kiểm tra thường ngày ngay trước khi bắt đầu thí nghiệm (xem các mục C.2; mục C.3 và mục C.5).
Trước khi kiểm tra, các hệ thống áp lực và đường ống nối phải được đổ đầy nước đã khử khí (Xem chú thích).
CHÚ THÍCH: Bơm tay trục vít (xi lanh kiểm tra) được sử dụng để hỗ trợ xả nước và kiểm tra hệ thống áp lực.
Kiểm tra tấm đệm xốp rỗng ngay trước khi thí nghiệm theo mục C.7.
C.2 Kiểm tra hệ thống áp lực buồng (kiểm tra toàn diện). Kiểm tra áp lực của hệ thống áp lực buồng và buồng ba trục để đảm bảo có thể duy trì được áp lực trong giới hạn (nêu ở điểm a của mục 5.2.2) và áp lực thí nghiệm lớn nhất theo yêu cầu suốt thời gian thí nghiệm.
C.3 Kiểm tra hệ thống áp lực ngược (kiểm tra toàn diện)
1. Xả nước sạch đã khử khí từ thiết bị đo sự thay đổi thể tích qua đường ống áp lực ngược và qua đường thoát nước từ mẫu thí nghiệm (đến tấm nén trên hoặc tấm đế dưới). Trong thao tác này, phải làm cho thiết bị đo sự thay đổi thể tích hoạt động ít nhất là hai lần, kim đồng hổ phải chỉ đến hết giới hạn chạy, cho nước chảy qua hệ thống bệ đáy buồng và thay vào đó bằng nước sạch đã khử k hí bơm từ hệ thống áp lực.
2. Dùng nút bịt kín đường thoát nước.
3. Mở van của đường thoát nước để nâng áp lực trong hệ thống áp lực ngược lên 750 kPa ghi lại số đọc trên thiết bị đo thể tích khi kim ổn định.
4. Để thiết bị ở trạng thái chịu áp lực như vậy tối thiểu trong 12 giờ và lại ghi số đọc của sự thay đổi thể tích một lần nữa.
5. Nước trong hệ thống đã được chảy tự do và như vậy là thiết bị đã sẵn sàng để thí nghiệm (khi sự chênh lệch giữa hai số đọc sau khi đã trừ đi độ gia tăng của thể tích do độ giãn nở của ống không quá 0,1 ml).
6. Nếu sự chênh lệch lớn quá 0,1ml thì phải kiểm tra và khắc phục hiện tượng rò rỉ, để khi lặp lại các bước 1 đến bước 4 của mục C.3 để đạt được các yêu cầu trong bước 5 của mục C.3.
C.4 Kiểm tra hệ thống áp lực ngược (kiểm tra định kỳ). Cần thực hiện các kiểm tra dưới đây cùng một lúc với việc kiểm tra định kỳ hệ thống áp lực nước lỗ rỗng nêu trong mục C.6.
a) Xả đường áp lực ngược và các khoá xả nước như nêu trong bước 1 mục C.3. Đóng van đường xả nước.
b) Tăng áp lực trong hệ thống áp lực ngược tới 750 kPa và ghi lại sự thay đổi thể tích sau 5 phút.
c) Tiến hành các thao tác hường dẫn trong các bước 4 đến 6 của mục C.3.
C.5 Kiểm tra hệ thống áp lực nước lỗ rỗng (kiểm tra toàn diện)
1. Mở van giữa khối có lắp thiết bị đo áp lực nước lỗ rỗng (biến năng) và hệ thống xả nước. Cho dòng nước sạch đã khử khí đi qua thiết bị đo biến năng và đế buồng để nước đã khử khí chảy đầy vào các chi tiết này.
2. Đặt buồng lên bệ buồng và vít chặt lại, chú ý không để đường thoát nước tới đỉnh nắp bị kẹt.
3. Vặn van xả khí trên mũ nắp và cho nước đã khử bọt khí từ hệ thống xả vào buồng thông qua khối lắp bộ biến năng.
4. Tháo van xả khí trong khối lắp bộ biến năng và đóng van áp lực nước lỗ rỗng ở đáy buồng.
5. Bơm dung dịch xà phòng loãng vào lỗ van xả khí. Mở van áp lực nước lỗ rỗng cho nước từ trong buồng chảy ra, sau đó mở van hệ thống xả để nước đã khử khí từ hệ thống cung cấp chảy vào.
6. Mở van xả khí trên khối lắp bộ biến năng trong khi nước vẫn ngập, để nước chảy đầy thêm vào buồng, sau đó vít chặt van xả khí trên buồng.
7. Mở van thoát nước đáy bệ và cho khoảng 500 ml nước đã khử đi qua rồi tháo bỏ số nước này. (Xem chú thích).
CHÚ THÍCH: Làm như vậy nhằm đẩy hết sạch phần không khí hoặc nước có lẫn không khí ra khỏi khối lắp bộ biến năng.
8. Nâng áp lực trong hệ thống lên 700 kPa và lại một lần nữa cho khoảng 500 ml nước đi qua van xả nước ở đáy buồng.
9. Để máy trong tình trạng chịu áp lực trong khoảng thời gian tối thiểu 12 giờ.
10. Sau khoảng thời gian này, kiểm tra xem có bị rò rỉ hay không, nếu không có thì cho 500 ml nước chảy qua van thoát nước đáy buồng (Xem chú thích). Nếu có nước rò rỉ thì khắc phục và lặp lại các thao tác trên.
CHÚ THÍCH: Biện pháp để phát hiện rò rỉ tốt hơn nhìn băng mắt thường là nối hệ thống với dụng cụ đo thể tích nước.
11. Sau khi kiểm tra và đã khẳng định được là thiết bị không rò rỉ nước, đóng van xả trên khối gắn thiết bị biến năng. Xả nước từ buồng qua van áp lực buồng, trong khi xả, nút xả khí buồng phải mở cho tới lúc áp lực giảm.
12. Tháo buồng ra, dùng đệm nút kín cửa đo áp lực nước lỗ rỗng trên đáy buồng, không để không khí lọt vào.
13. Mở van hệ thống xả, tác dụng lên bệ đáy một giá trị áp lực cực đại có thể đạt được trong các trị giới hạn của hệ thống áp lực và thiết bị đo áp lực nước lỗ rỗng.
14. Đóng van hệ thống xả trên khối gắn thiết bị biến năng và ghi lại số đọc của áp lực nước lỗ rỗng.
15. Nếu số đọc áp lực nước lỗ rỗng không đổi trong ít nhất là 6 giờ thì có thể cho rằng các mối nối trong hệ thống đo áp lực nước lỗ rỗng là kín, không có khí lọt vào và không bị rò rỉ.
16. Nếu số đọc áp lực bị giảm, điều đó chứng tỏ rằng có sự cố trong hệ thống. Khắc phục sự cố. Lặp lại các kiểm tra hệ thống. Áp lực nước lỗ rỗng theo mô tả trong các bước từ 1 đến 14 mục C.5 cho tới lúc trong hệ thống không còn bị khí lọt vào hoặc rò rỉ.
C.6 Kiểm tra hệ thống áp lực nước lỗ rỗng (kiểm tra thường kỳ)
1. Thực hiện các thao tác mô tả trong các bước từ 1 đến 11 của mục C.5.
2. Tháo buồng thí nghiệm, duy trì một lớp nước đã khử khí trên đáy ống, bằng cách lắp một màng và được vặn chặt bằng vòng cao su cho tới lúc chuẩn bị xong mẫu để thí nghiệm.
C.7 Kiểm tra đá thấm – giấy thấm
1. Kiểm tra đá thấm xem nước thoát ra có dễ dàng không. Bỏ những đá thấm bị đất trám vào các lỗ.
Trước khi sử dụng, phải dùng nước cất đun sôi để đun trong vòng 30 phút. Sau đó ngâm nó trong nước đã khử khí chờ sử dụng.
2. Ngâm giấy thấm đặt bên thành mẫu vào nước đã khử khí trong vài phút. Để nước thừa trên giấy chảy hết rồi cuộn giấy ngay vào mẫu đất thí nghiệm.
MỤC LỤC
1 Phạm vi áp dụng …………………………………………………………………………………………………………………………
2 Tài liệu viện dẫn …………………………………………………………………………………………………………………………..
3 Thuật ngữ và định nghĩa…………………………………………………………………………………………………………………
4 Thí nghiệm sức kháng cắt không cố kết – không thoát nước – sơ đồ UU…………………………………………………
4.1 Nội dung phương pháp thí nghiệm ……………………………………………………………………………………………….
4.2 Điều kiện thí nghiệm. ………………………………………………………………………………………………………………….
4.3 Thiết bị, dụng cụ thí nghiệm………………………………………………………………………………………………………….
4.4 Chuẩn bị mẫu thí nghiệm …………………………………………………………………………………………………………….
4.5 Cách tiến hành ………………………………………………………………………………………………………………………….
4.6 Tính toán, báo cáo kết quả thí nghiệm ……………………………………………………………………………………………
5 Thí nghiệm sức kháng cắt cố kết–không thoát nước–sơ đồ CU……………………………………………………………..
5.1 Nội dung phương pháp thí nghiệm ……………………………………………………………………………………………….
5.2 Điều kiện thí nghiệm. ………………………………………………………………………………………………………………….
5.3 Thiết bị, dụng cụ thí nghiệm………………………………………………………………………………………………………….
5.4 Chuẩn bị mẫu thí nghiệm …………………………………………………………………………………………………………….
5.5 Cách tiến hành ………………………………………………………………………………………………………………………….
5.6 Tính toán, vẽ đồ thị và báo cáo kết quả …………………………………………………………………………………………
6 Thí nghiệm sức kháng cắt cố kết – thoát nước, có đo sự thay đổi thể tích – sơ đồ CD ………………………………
6.1 Nội dung của phương pháp thí nghiệm ………………………………………………………………………………………….
6.2 Điều kiện thí nghiệm. ………………………………………………………………………………………………………………….
6.3 Thiết bị, dụng cụ thí nghiệm………………………………………………………………………………………………………….
6.4 Chuẩn bị mẫu thí nghiệm …………………………………………………………………………………………………………….
6.5 Cách tiến hành ………………………………………………………………………………………………………………………….
6.6 Tính toán, vẽ đồ thị và báo cáo kết quả …………………………………………………………………………………………
Phụ lục A (Tham khảo) Biểu ghi và báo cáo kết quả thí nghiệm nén ba trục ………………………………………………..
Phụ lục B (Tham khảo) Các hình vẽ…………………………………………………………………………………………………….
Phụ lục C (Quy định) Kiểm tra thiết bị …………………………………………………………………………………………………


