Nội dung toàn văn Tiêu chuẩn quốc gia TCVN 8871-1:2011 về Vải địa kỹ thuật – Phương pháp thử – Phần 1: Xác định lực kéo giật và độ giãn dài kéo giật
TIÊU CHUẨN QUỐC GIA
TCVN 8871-1÷6:2011
VẢI ĐỊA KỸ THUẬT – PHẦN 1÷6 PHƯƠNG PHÁP THỬ
Geotextile – Part 1÷6: Standard Test Method
Mục lục
Phần 1: Xác định lực kéo giật và độ giãn dài kéo giật
Phần 2: Xác định lực xé rách hình thang
Phần 3: Xác định lực xuyên thủng CBR
Phần 4: Xác định lực kháng xuyên thủng thanh
Phần 5: Xác định áp lực kháng bục
Phần 6: Xác định kích thước lỗ biểu kiến bằng phép thử sàng khô
Lời nói đầu
TCVN 8871-1÷6:2011 do Viện Khoa học và Công nghệ Giao thông vận tải biên soạn, Bộ Giao thông vận tải đề nghị, Tổng cục Tiêu chuẩn Đo lường Chất lượng thẩm định, Bộ Khoa học và Công nghệ công bố.
Bộ tiêu chuẩn TCVN 8871-1÷6:2011 – Vải địa kỹ thuật – Phương pháp thử, gồm 6 phần:
TCVN 8871-1:2011, Phần 1: Xác định lực kéo giật và độ giãn dài kéo giật.
TCVN 8871-2:2011, Phần 2: Xác định lực xé rách hình thang.
TCVN 8871-3:2011, Phần 3: Xác định lực xuyên thủng CBR.
TCVN 8871-4:2011, Phần 4: Xác định lực kháng xuyên thủng thanh.
TCVN 8871-5:2011, Phần 5: Xác định áp lực kháng bục.
TCVN 8871-6:2011, Phần 6: Xác định kích thước lỗ biểu kiến bằng phép thử sàng khô.
TCVN 8871-1:2011
VẢI ĐỊA KỸ THUẬT – PHƯƠNG PHÁP THỬ – PHẦN 1: XÁC ĐỊNH LỰC KÉO GIẬT VÀ ĐỘ GIÃN DÀI KÉO GIẬT
Geotextile – Standard test method – Part 1: Geotextile – Standard test method for determining the grab strength and grab elongation
1. Phạm vi áp dụng
Tiêu chuẩn này quy định phương pháp xác định lực kéo giật và độ giãn dài của vải địa kỹ thuật.
2. Tài liệu viện dẫn
TCVN 8222:2009, Vải địa kỹ thuật – Quy định chung về lấy mẫu, thử mẫu và xử lý thống kê.
3. Thuật ngữ và định nghĩa
3.1. Vải địa kỹ thuật (geotextile):
Vải địa kỹ thuật viết tắt là “vải ĐKT”, là loại vải được sản xuất từ polyme tổng hợp, khổ rộng, dạng dệt, dạng không dệt hoặc dạng phức hợp có chức năng gia cố, phân cách, bảo vệ, lọc, tiêu thoát nước. Vải ĐKT được sử dụng cùng với các loại vật liệu khác như: đất, đá, bê tông… trong xây dựng công trình;
3.2. Vải ĐKT không dệt (non woven geotextile):
Vải ĐKT không dệt là loại vải gồm các sợi vải phân bố ngẫu nhiên (không theo một hướng nhất định nào). Các sợi vải được liên kết với nhau bằng phương pháp xuyên kim thì gọi là vải không dệt – xuyên kim (needle punched geotextile), bằng phương pháp ép nhiệt thì gọi là vải không dệt – ép nhiệt (heat bonded geotextile),bằng chất kết dính hóa học thì gọi là vải không dệt – hóa dính (chemical bonded geotextile);
3.3. Vải ĐKT dệt (woven geotextile):
Vải ĐKT dệt là loại vải được sản xuất theo phương pháp dệt trong đó các sợi vải hoặc các bó sợi được sắp xếp theo hai phương vuông góc với nhau;
3.4. Vải ĐKT phức hợp (composite geotextile):
Vải ĐKT phức hợp là loại vải được kết hợp bởi các bó sợi polyester có cường độ chịu kéo cao và độ giãn dài khi đứt nhỏ với một lớp vải không dệt có khả năng thấm nước tốt;
3.5. Chiều khổ (Cross – Machine direction):
Chiều khổ của vải ĐKT là hướng trong mặt phẳng của vải vuông góc với hướng chế tạo;
3.6. Chiều cuộn (Machine direction):
Chiều cuộn của vải ĐKT là hướng trong mặt phẳng của vải song song với hướng chế tạo.
3.7. Lực kéo giật (Grab strength)
Lực kéo giật là giá trị lực kéo lớn nhất, tính bằng kilôniutơn (kN) hoặc Niutơn (N) nhận được trong quá trình kéo cho tới khi mẫu thử đứt hoàn toàn.
3.8. Độ giãn dài kéo giật (Grab elongation)
Độ giãn dài tính bằng phần trăm (%) là tỷ số giữa lượng gia tăng chiều dài của mẫu thử trong quá trình kéo và chiều dài ban đầu.
3.9. Lực kéo giật khi đứt (Grab breaking load)
Lực kéo giật khi đứt là giá trị lực kéo tại thời điểm mẫu thử đứt hoàn toàn, tính bằng kilôniutơn (kN) hoặc Niutơn (N).
3.10. Độ giãn dài khi đứt (Elongation at breaking load)
Độ giãn khi đứt tính bằng phần trăm (%) là độ giãn dài tại thời điểm mẫu thử đứt hoàn toàn.
4. Nguyên tắc
Mẫu thử được kẹp một phần chiều rộng bằng hai ngàm kẹp và bị kéo với tốc độ không đổi đến khi mẫu đứt hoàn toàn. Ghi lại lực kéo, chiều dài giãn ra của mẫu thử trên thiết bị thử nghiệm. Từ đó xác định được giá trị lực kéo giật và độ giãn dài kéo giật tương ứng và giá trị lực chịu kéo giật khi đứt hoàn toàn và độ giãn dài kéo giật khi đứt hoàn toàn theo từng chiều của cuộn vải.
5. Điều kiện phòng thử nghiệm
Việc thí nghiệm được tiến hành ở điều kiện không khí được duy trì ở độ ẩm tương đối (65 ± 5) % và nhiệt độ (21 ± 2) oC.
6. Mẫu thử
6.1. Chuẩn bị mẫu thử
6.1.1. Lấy mẫu và lựa chọn
a) Lấy mẫu đưa về phòng thử nghiệm
Lấy một đoạn vải có chiều rộng chiếm hết chiều khổ của cuộn vải và chiều dài khoảng 4,0 m theo chiều cuộn từ mỗi cuộn vải trong lô mẫu, loại bỏ không nhỏ hơn 2 m phần vải ngoài cùng của cuộn vải (mẫu có thể được lấy từ nhà máy sản xuất, kho hoặc nơi bảo quản ở hiện trường). Trong trường hợp tranh chấp, không sử dụng phần vải xung quanh lõi cuộn vải để thử nghiệm.
b) Phạm vi lựa chọn cắt mẫu thử: cắt một số mẫu thử từ mỗi đoạn vải được xác định theo từng hướng. Không lấy mẫu thử trong phạm vi 1 phần 20 chiều rộng của vải hoặc 150 mm tính từ mép vải (biên của cuộn vải).
6.1.2. Số lượng mẫu thử
6.1.2.1. Quy định thông thường
Trên mỗi đoạn vải theo chiều cuộn và chiều khổ cắt mỗi chiều một tập mẫu tối thiểu 5 mẫu thử.
6.1.2.2. Khi có sự tranh chấp hoặc có quy định và thỏa thuận khác trong yêu cầu kỹ thuật, số lượng mẫu thử trong tập mẫu thử đối với một chỉ tiêu sao cho có thể có được 95 % xác suất tin cậy của kết quả thử nghiệm với giá trị không vượt quá 5 % so với giá trị trung bình của mỗi đoạn vải ứng với mỗi chiều cuộn và chiều khổ, xem TCVN 8222:2009 mục 6.
6.1.2.3. Gia công mẫu thử
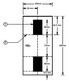
Cắt các mẫu thử hình chữ nhật có kích thước theo chiều rộng 100 mm và chiều dài 200 mm, tiến hành kẻ các đường thẳng như sau (xem hình 1):
– Kẻ một đường thẳng dọc theo chiều dài của mẫu thử cách mép mẫu 50 mm (để đánh dấu vị trí dọc trục theo tim của ngàm kẹp, đối với các loại vải ĐKT dệt hoặc vải ĐKT gia cường, đường này phải được kẻ chính xác song song với các sợi dọc của mẫu thử);
– Kẻ hai đường thẳng song song cách nhau 75 mm theo chiều rộng cách mép mẫu thử là 62,5 mm.

CHÚ DẪN:
1) Phần mẫu bị kẹp
2) Đường kẻ khoảng cách hai ngàm kẹp
Hình 1 – Kích thước mẫu thử
6.2. Mẫu thử thông thường
Mẫu thử thông thường được tiến hành ở trạng thái khô. Khi có yêu cầu, việc thử nghiệm có thể tiến hành trong điều kiện mẫu ở trạng thái ướt.
6.3. Xử lý mẫu thử
6.3.1. Mẫu ở trạng thái khô
Đưa các mẫu thử về sự cân bằng độ ẩm trong khí quyển để thử nghiệm. Sự cân bằng đạt được khi độ tăng khối lượng của mẫu thử trong những lần cân liên tiếp với khoảng thời gian không dưới 2 giờ không vượt quá 0,1 % khối lượng của mẫu thử.
CHÚ THÍCH: Trong thử nghiệm thông thường có thể chỉ cần để mẫu thử ở điều kiện không khí chuẩn trong khoảng thời gian hợp lý trước khi thử nghiệm. Phần lớn các trường hợp đều cho thấy khoảng thời gian 24 giờ trong điều kiện phòng thử nghiệm là chấp nhận được. Tuy nhiên, một số loại sợi của mẫu thử thể hiện tốc độ cân bằng độ ẩm chậm, khi mẫu thử còn ướt. Trạng thái này của mẫu thử không được chấp nhận trong trường hợp xảy ra tranh chấp.
6.3.2. Mẫu ở trạng thái ướt
Các mẫu thử được thử nghiệm trong điều kiện ướt phải được nhúng trong nước có nhiệt độ duy trì ở (21 ± 2)oC. Thời gian nhúng phải đủ để làm ướt hoàn toàn mẫu thử, đảm bảo không có sự thay đổi đáng kể về độ bền hoặc độ giãn. Sau khi nhúng thêm ít nhất 2 phút để làm ướt hoàn toàn mẫu thử, có thể cho thêm không quá 0,05 % chất làm ướt trung tính không ion hóa vào nước.
Khi thử nghiệm mẫu thử ở trạng thái ướt, thời gian thử nghiệm không quá 20 phút sau khi lấy mẫu thử ra khỏi nước.
7. Thiết bị, dụng cụ
7.1. Thiết bị kéo
– Tốc độ của thiết bị phải điều chỉnh được ở tốc độ (300 ± 10) mm/min, phải ghi được giá trị lực kéo và giãn dài tương ứng để vẽ được đường quan hệ giữa lực kéo và độ giãn dài.
– Lực kéo của thiết bị phụ thuộc vào loại vải ĐKT, nhưng phải có thang đo lực không nhỏ hơn 20 kN, dải đo 1 N, độ chính xác ± 1 N.
CHÚ THÍCH: Lực chịu kéo giật của các loại vải ĐKT rất khác nhau. Để đảm bảo xác định chính xác lực kéo giật của vải ĐKT phải lựa chọn bộ phận đo lực của máy thí nghiệm kéo cho phù hợp nhưng không lớn hơn 100 kN.
– Thiết bị đo giãn dài phụ thuộc vào loại vải ĐKT, nhưng phải có thang đo không nhỏ hơn 300 mm, dải đo 1 mm, độ chính xác dải đo ± 0,1 mm.
7.2. Ngàm kẹp
Ngàm kẹp dạng phẳng có đủ lực để giữ mẫu không bị tuột gồm hai má kẹp: Má kẹp thứ nhất có chiều rộng là 100 mm, chiều cao là 50,8 mm và chiều dày không nhỏ hơn 25,4 mm, má kẹp thứ hai có chiều rộng là 25,4 mm, chiều cao là 50,8 mm và chiều dày không nhỏ hơn 25,4 mm. Một trong hai ngàm kẹp phải có khớp xoay cho phép hàm kẹp có thể xoay quanh mặt phẳng tạo bởi hướng của lực tác dụng và hướng vuông góc với hướng của lực tác dụng.
7.3. Dụng cụ đo kích thước của mẫu thử
Dụng cụ đo kích thước của mẫu thử có thể sử dụng các dưỡng mẫu có kích thước chuẩn hoặc thước đo có độ chính xác 0,1 mm.
7.4. Thiết bị làm ẩm
Bể ngâm mẫu hoặc thiết bị phun tạo nước nhỏ giọt.
8. Cách tiến hành
8.1. Vận hành thiết bị kéo
– Điều chỉnh khoảng cách giữa hai ngàm kẹp là (75 ± 3) mm.
– Đặt tốc độ khi kéo là (300 ± 10) mm/min.
– Chọn thang lực đo của thiết bị nằm trong khoảng từ 30% đến 90% lực kéo đứt mẫu thử.
CHÚ THÍCH: Đối với mỗi loại vải ĐKT có lực kéo giật khác nhau. Để thu được kết quả đo chính xác, tùy theo lực kéo giật của mẫu thử cần lựa chọn loại thiết bị đó có thang lực kéo phù hợp.
– Đặt chế độ làm việc các thiết bị ghi số liệu thử nghiệm.
8.2. Cách lắp mẫu thử vào ngàm kẹp
Đưa mẫu lần lượt vào từng ngàm kẹp sao cho khoảng cách giữa hai ngàm kẹp là (75 ± 3) mm đã được kẻ trước lên mặt mẫu làm cữ theo chiều rộng và chính giữa của từng ngàm kẹp (vị trí của đường kẻ ở tim dọc theo chiều dài mẫu trùng với đường ở tim của mỗi ngàm kẹp).
8.3. Tiến hành thử
– Kiểm tra thứ tự từ 8.1 đến 8.2 và cho thiết bị kéo chạy cho tới khi mẫu đứt hoàn toàn.
– Lưu các số liệu thu được trong suốt quá trình thử nghiệm.
– Tiếp tục lặp lại tuần tự các bước trên cho tới khi thử nghiệm hết số lượng mẫu thử.
9. Tính toán
9.1. Loại bỏ các kết quả dị thường
Theo quy định của TCVN 8222:2009 và gia công lại mẫu thử, xem mục 6.
9.2. Tính các giá trị của mẫu riêng lẻ
9.2.1. Xác định giá trị lực kéo giật đối với từng mẫu
Giá trị lực kéo giật (ký hiệu là Tg) của từng mẫu được xác định trên đường cong quan hệ giữa lực kéo giật và độ giãn dài, đơn vị kN hoặc N.
Giá trị lực kéo giật khi đứt (ký hiệu là Tđ) của từng mẫu được xác định trên đường cong quan hệ giữa lực kéo giật và độ giãn dài, đối với kN hoặc N.
(xem hình 2)
9.2.2. Tính độ dãn dài đối với từng mẫu
Độ giãn dài của mẫu thử tính theo công thức:
e = 100 x DL/L0 (1)
DL = L1 – L0 (2)
Trong đó:
e là độ giãn dài của mẫu thử tính bằng (%);
L0 là chiều dài ban đầu của mẫu thử tính bằng milimét (mm);
L1 là chiều dài ra tăng của mẫu thử tính bằng milimét (mm).
CHÚ THÍCH: Khi đường cong quan hệ giữa lực kéo và độ giãn dài không đi qua gốc tọa độ. Trước xác định độ giãn dài cần phải hiệu chỉnh đưa đường cong về gốc tọa độ bằng cách tịnh tiến trục tung đến vị trí giao điểm của đường cong với trục hoành.

CHÚ DẪN:
Tg là lực kéo giật lớn nhất;
Tgđ là lực kéo giật tại điểm đứt hoàn toàn;
SA là độ giãn dài dư, xuất hiện khi lực kéo bằng 1 % Tf;
eg là độ giãn dài tại lực kéo giật lớn nhất;
egđ là độ giãn dài tại điểm đứt hoàn toàn.
Hình 2 – Đường cong quan hệ giữa lực kéo và độ giãn dài
9.3. Các giá trị tiêu biểu
Các giá trị tiêu biểu được xác định bởi các giá trị thu được từ các mẫu thử riêng lẻ với độ chính xác như sau:
a) Lực kéo giật chính xác tới 1 N, độ giãn dài ứng với lực kéo giật chính xác tới 1 %.
b) Lực kéo giật khi đứt chính xác tới 1 N, độ giãn dài khi đứt chính xác tới 1 %.
CHÚ THÍCH: Loại bỏ các kết quả dị thường theo 9.1 không đưa vào tính toán. Tuy nhiên, các kiểm tra này cần ghi lại và báo cáo riêng.
c) Đối với mỗi tính chất, các giá trị tiêu biểu sau đây cần được xác định:
– Giá trị trung bình;
– Độ lệch chuẩn;
– Hệ số biến thiên.
(theo TCVN 8222:2009, mục 6)
9.4. Yêu cầu đối với việc thử thêm
9.4.1. Khả năng lặp lại các kết quả
Khi hệ số biến đổi theo quy định tại 9.3 vượt quá 20 % cần phải tăng số mẫu thử nhiều lên để thu được kết quả có giới hạn sai số cho phép theo quy định của TCVN 8222:2009 và số lượng các mẫu thử yêu cầu được tính theo TCVN 8222:2009, mục 6.
9.4.2. Các giới hạn sai số
Kiểm tra các kiểm tra thu được theo quy định tại 9.3 để đảm bảo các giới hạn sai số thực tế không vượt quá giới hạn quy định. Sai số kết quả thử nghiệm được coi là thỏa mãn nếu số lần thử nghiệm tính theo TCVN 8222:2009 không vượt quá kết quả thực tế. Nghĩa là các kết quả thử nghiệm đã thỏa mãn khi thử nghiệm đủ số lần và đáp ứng yêu cầu của 9.3.
CHÚ THÍCH: Kết quả thử nghiệm theo tiêu chuẩn này có thể so sánh với kết quả thử theo tiêu chuẩn ASTM D 4632 đối với cùng loại mẫu thử.
10. Báo cáo thử nghiệm
Báo cáo thử nghiệm bao gồm các nội dung sau:
1) Viện dẫn tiêu chuẩn này;
2) Loại mẫu thử nghiệm (vật liệu hoặc sản phẩm);
3) Số lượng các mẫu thử được thử nghiệm theo từng hướng;
4) Trạng thái của mẫu thử nghiệm (ướt hay khô);
5) Kiểu, chủng loại thiết bị thử nghiệm;
6) Các giá trị tiêu biểu: lực kéo giật trung bình theo từng chiều của cuộn vải, tính bằng kN hoặc N; độ giãn kéo giật trung bình theo từng chiều của cuộn vải, tính bằng %;
7) Các giá trị riêng lẻ: lực kéo giật của các mẫu thử trong tập mẫu thử nghiệm theo từng chiều của cuộn vải, tính bằng kN hoặc N; độ giãn dài kéo giật của các mẫu thử trong tập mẫu thử nghiệm theo từng chiều của cuộn vải, tính bằng %;
8) Biểu đồ quan hệ giữa lực kéo giật và giãn dài (Hình 2);
9) Người thí nghiệm;
10) Người kiểm tra;
11) Ngày thí nghiệm;
12) Điều kiện về nhiệt độ, độ ẩm khi thử nghiệm;
13) Các thay đổi về điều kiện, quy trình thử so với tiêu chuẩn này nếu có;
14) Thông tin về kết quả bị loại bỏ kể cả nguyên nhân không dùng các kết quả đó để đánh giá các trị số tiêu biểu;
và các mục khác khi yêu cầu.
11. Lưu mẫu
11.1. Mẫu lưu có diện tích không nhỏ hơn 1 m2.
11.2. Mẫu lưu và điều kiện tiêu chuẩn theo quy định của TCVN 8222:2009.
11.3. Thời gian lưu mẫu tối thiểu là 28 ngày.


