Tiêu chuẩn xây dựng TCXDVN 227:1999 về Cốt thép trong bê tông – Hàn hồ quang đã được thay thế bởi Tiêu chuẩn quốc gia TCVN 9392:2012 về Thép cốt bê tông – Hàn hồ quang .
Nội dung toàn văn Tiêu chuẩn xây dựng TCXDVN 227:1999 về Cốt thép trong bê tông – Hàn hồ quang
TIÊU CHUẨN XÂY DỰNG
TCXD 227 : 1999
CỐT THÉP TRONG BÊTÔNG – HÀN HỒ QUANG
Metal are welding of steel for concrete reinforcement
1. Phạm vi áp dụng
Tiêu chuẩn này quy định các yêu cầu kỹ thuật hàn hồ quangđối với vật liệu thép cốt bêtông, các phương pháp kiểm tra quy trình hàn và tay nghề thợ hàn, áp dụng cho các liên kết hàn hồ quang thép để làm cốt trong kết cấu bêtông cốt thép.
Tiêu chuẩn áp dụng cho hàn thép cốt bêtông theo các tiêu chuẩn TCVN 1651 : 1985, TCVN 3101 : 1979 . Tiêu chuẩn cũng áp dụng cho hàn liên kếtthép cốt với chi tiết thép xây dựng khác.
Ngoài các yêu cầu được quy định ở trên, các yêu cầu chi tiết nêu trong điều 3 cũng phải được ghi trong hồ sơ.
Các quy trình hàn trong tiêu chuẩn này bao gồm : hàn hồ quang tay ; hàn trong môi trường khí bảo vệ ; hàn không có khí bảo vệ bằng dây có lõi thuốc.
Chú thích: Các tiêu chuẩn trích dẫn được liệt kêở trang 30.
2. Thuật ngữ
2.1. Thép cốt
Sản phẩm thép có dạng tròn nhẵn hoặc có gai, kể cả thép thanh hoặc thép sợi.
2.2. Thép cốt cán nóng
Thép cốt theo tiêu chuẩn TCVN 1651 : 1985.
2.3. Thép sợi gia công nguội
Thép sợi theo tiêu chuẩn TCVN 3101 : 1979.
2.4. Thép cốt có gai hoặc thép sợi có gai
Thép cốt hoặc thép sợi có gai bề mặt nhằm làm tăng độ bám dính trong bêtông. Góc độ của gai được quy định trong các tiêu chuẩn TCVN 1651: 1985 , TCVN 3101 : 1979 .
2.5. Đường kính danh nghĩa (d)
Đường kính tương ứng với diện tích tiết diện tính toán của thép cốt.
2.6. Giới hạn chảy
Ứng suất đo được trong thí nghiệm kéo khi độ dãn dài đạt giá trịquy định
2.7. Mối hàn kết cấu
Mối hàn được thiết kếđể chịu lực trong quá trình làm việc.
2.8. Mối hàn dính
Mối hàn được sử dụng để định vị các thép cốt với nhau.
2.9. Mối hàn góc vát
Mối hàn giữa mặt cong của thép cốt với mặt phẳng của thép hình (hình 1a và 1b).
2.10. Mối hàn góc chữ V
Mối hàn giữa các mặt cong của hai thép cốt ghép song song liền kề nhau (hình 1cvà1d).
Hình 1 : Các mối hàn góc vát và hàn góc chữ V
a) Mối hàn góc vát, hàn một phía ;
b) Mối hàn góc vát, hàn hai phía ;
c) Mỗi hàn góc chữ V, hàn một phía ;
d) Mối hàn góc chữ V, hàn hai phía.
2.11. Liên kết hàn đối đầu
Mối hàn giữa hai thép cốt có trục trên cùng một đường thẳng, vùng nối của chúng được hàn hoàn toàn (hình 2).
|
No |
Chi tiết |
Phạm vi kích thước |
Phạm vi áp dụng |
|
|
1 |
2 |
3 |
4 |
|
|
1 |
Tất cả các cỡđường kính |
Khi hàn được gốc mối hàn ở mặt sau |
||
|
Khe hở 1,5mm ¸ 3,5mm |
||||
|
2 |
Tất cả các cỡđường kính |
Khi không hàn đượcgốc mối hàn ở mặt sau |
||
|
Gá tạm máng dỡ bằng đồng. Khe hở 3mm |
||||
|
3* |
Tất cả các cỡđường kính |
Khi không hàn được gốc mối hàn ở mặt sau |
||
|
Gá máng đỡbằng thép Khe hở 3mm |
||||
|
4 |
|
25 -50mm |
Thường áp dụngkhi thép cốt có thể xoay được đểhàn ở vị trí nằm |
|
|
Khe hở 2,5 – 3,5mm |
||||
|
5 |
|
5 – 50mm |
Cách chắc chắn hơn dùng thông thường |
|
|
Khe hở 10 – 25mm. Máng bằng đồng, có khe hở 6mm |
||||
|
6 |
Vát mép 60o chữ V. Khe hở 3mm |
25 – 50mm |
Hàn ở vị trí ngang và đứng.Ít sử dụng |
|
|
7 |
Khe hở 3mm |
25mm và nhỏ hơn |
Hàn đứng. Thường áp dụng cho cỡ đường kính nhỏ |
|
|
8 |
|
Khe hở 3mm |
25 – 40mm |
Hàn đứng. Thường áp dụng cho cỡ đường kính trung bình |
|
9 |
Khe hở 3mm |
25 – 50mm |
Hàn đứng. Thường áp dụng cho cỡ đường kính lớn |
|
*) Máng đỡbằng thép được cố định trong liênkết và không tham gia chịu Iực
Hình 2 : Liên kết hàn đối đầu
2.12. Liên kết hàn ốp táp
Mối nối giữa hai thép cốt có các trục thẳng hàng. Các thép cốt được nối bằng các đường hàn góc thông qua chi tiết ốp chung, vùng tiếp giáp của chúng không hàn (hình 3).
2.13. Chi tiết ốp
Chi tiết dạng thép tấm, thép góc, thép hình, thép ống hoặc thép cốt được sử dụng để liên kết hai thép cốt với nhau. Hai thép cốt được hàn riêng biệt vào chi tiết ốp thay cho việc hàn chúng với nhau (hình 3).
Hình 3 : Liên kết hàn ốp táp
a) Liên kết hàncósử dụngốp táp bằng thép tấm, khoảng hở giữa hai thép cốt đến 20mm;
b)Liên kết hàn có sử dụng ốp táp bằng thép góc; c) Liên kết hàn có sử dụng ốp táp bằng thép cốt.
2.14. Liên kết hàn ghép chồng
Mối hàn nối haithép cốt ghép chồng lên nhau (hình 4 và 5).
2.15. Liên kết hàn chữthập
Liên kết bằngmối hàn góc giữa hai thép cốt có các trục vuông góc với nhau (hình 6).
3. Thông tin, yêu cầu cần được thỏa thuận và lập hồ sơ
3.1. Thông tin do bênđặt hàng cung cấp phải được ghi đầy đủ hồ sơ, gồm :
a) Đặc tính kỹ thuậtcủa kim loại cơ bản, các yêu cầu về kim loại mối hàn, các thôngsố của liên kết hàn và những thông tin cụ thể về vật liệu đệm lót (nếu có);
b) Yêu cầu bằngvăn bản về công nghệ hàn nếu có (điều 11.9) ;
c) Yầu cầu thửnghiệm quy trình hàn nếu có (điều 5 và 12);
d) Các yêu cầuđảm bảo chất lượng
3.2. Các thông tin các bên kí hợp đồng cung cấp phải được ghi đầy đủ trong hồ sơ, gồm:
Hình 4 : Liên kết hàn ghép chồng
a) Liên kết hàn ghép chồng (thép cốt này ghép trên thép cốt kia); b) Liên kết hàn ghép chồng (cả hai thép cốt ghép nằm ngang); c) Liên kết hàn ghép chồng (cảhai thép cốt ghép đứng).
a) Đặc tính kỹ thuật của kim loại cơ bản, kim loại hàn, mối hàn và vật liệu hàn;
b) Vị trí, kích thước và các chi tiết của liên kết hàn (hình dạng mối hàn, khoảng cách hàn cách quãng trong toàn bộ đường hàn).
Chú thích: Các kí hiệu hình dạng mối hàn phải được tuân theo tiêu chuẩn TCVN 1691 :1975.
3.3. Các yêu cầu cần được thỏa thuận giữa các bên kí kết hợp đồng đãđược chỉ rõ ở các điều quy định nêu trên phải được ghi đầy đủ trong hồ sơ, gồm :

Hình 5: Các điểm bắt đầu và kết thúc hàn của liên kết ghép chồng

Hình 6: Liên kết hàn chữ thập
a) Phương pháp, khối lượng kiểm tra và thử nghiệm cùng với các yêu cầu chất lượngkhi chưa có quy định trong tiêu chuẩn(điều 7);
b) Phê chuẩn và thử nghiệm quy trình hàndo phòng thí nghiệm hoặc chuyên giađảm nhận (điều 5);
c) Phê chuẩn và thử nghiệm thợ hàn dochuyên gia đảm nhận (điều 6);
d) Chọn vật liệu hàn (điều 9.1 và 9.2);
e) Các yêu cầu áp dụng gia nhiệt hàn nếucó(điều11.2);
f) Thử nghiệm mẫu kim tương để phân cấpkhuyếttật(điều 12.3.6).
4. Vật liệu
4.1. Vật liệu thép cốt phải đảm bảo thành phần hóa học và cơ tính theo các tiêu chuẩn TCVN 1651 : 1985 , TCVN 3101 : 1979 .
4.2. Vật liệu đệm lót bằng thép khí nóng chảy (trong quá trình hàn) phải đảm bảo hàm lượng cácbon tương đương và hàm lượng phốt pho, lưu huỳnh không lớn hơn các trị số quy định cho vật liệu kim loại cơ bản.
5. Phê chuẩn và thử nghiệm quy trình hàn
Khi bên đặt hàng có yêu cầu, bên nhận thầu phải tiến hành thử nghiệm quy trình theo phương pháp hàn sử dụng (điều 12).
6. Phê chuẩn và thử nghiệm thợ hàn
Bên nhận thầu phải đảm bảo với bên đặt hàngvề việc kiểm tra thợ hàn của mình (điều 13).
7. Kiểm tra và thử nghiệm
7.1. Quy định chung
Phương pháp, khối lượng kiểm tra và thử nghiệm phải tuân thủ các quy định trong tiêu chuẩn hiện hành.
Trường hợp không có quy định trong tiêu chuẩn thì hai bên đối tác phải thỏa thuận cụ thể về phương pháp, khối lượng kiểm tra và thử nghiệm (điều 3.3.).
Chú thích:
1) Các phương pháp kiểm tra có thể là bằng quan sát, thẩm thấu, bật từ hoặc phóng xạ ;
2) Vì vết nứt có thể phát triển từ những điểm rạn nhỏsau khi hàn, cho nên việc kiểm tra chỉ thực hiệnsau khi hàn 48 giờ.
7.2. Chất lượng hàn
Chất lượng hàn được kiểm tra bằng phương pháp quan sát và đánh giá theo quy định trong bảng 7 và nếu có yêu cầu thì kiểm tra bằng phương pháp không phá hủy và đánh giá theo quy định trong bảng 8.
8. Thiết bị hàn hồ quang
8.1. Thiếtbị hàn
Máy hàn, dụng cụ và dây cáp hàn phải phù hợp tiêu chuẩn. Công suất của máy hàn phải đáp ứng với chế độ công nghệ hàn. Máy hàn phải được tiếp đất chắc chắn và có cầu chì bảo vệ thích hợp.
8.2. Dụng cụ đo
Các dụng cụ đo cường độ dòng diện hàn có thể dùng nhiều loại, hoặc có ở máy hàn, hoặc sử dụng ampe kế.
Trong trường hợp hàn bán tự động, phải dùng các đồng hồ đo điện áp hồ quang hàn, cường độ dòng điện hàn và tốc độ xuống dây.
Khi cóyêu cầu sấy khô, phải có phương tiện đo nhiệt độ lò.
9. Vật liệu hàn
9.1. Hàn hồ quang tay
Que hàn phải phù hợp với tiêu chuẩn, liên kết hàn, tư thế hàn vàđiều kiện làm việc của mối hàn (điều 3.2a).
9.2. Hàn trong môi trườngcó khí bảo vệ
9.2.1. Dây hàn
Dây hàn phải phù hợp với tiêu chuẩn, liên kết hàn, tư thếhàn và điều kiện làm việc của mối hàn (điều 3.2a)
9.2.2. Khí bảo vệ hàn
Khíhoặc hỗn hợp khí để bảo vệ hàn phải đảm bảo các yêu cầu chất lượng sau :
a) Khí cacbonic công nghiệp;
b) Hỗn hợp khí cacbonic với argon phải có chứng chỉchất lượng hoặc phải qua thử nghiệm.
9.3. Hàn không có khí bảo vệ
Điện cực hàn trong phương pháp hàn bán tự động không có khí bảo vệ thường là dạng ống thép có lõi thuốc và phải phù hợp với tiêu chuẩn, liên kết hàn, tư thế hàn và điều kiện làm việc của mối hàn (điều 3.2a).
9.4. Bảo quản và sử dụng
9.4.1. Quy định chung
Vật liệu hàn phải được bảo quản cẩn thận và phải tuân thủ chỉ dẫn của nơi sản xuất.
Không được sử dụng các loại vật liệu hàn hư hỏng hoặc kém chất lượng.
Chú thích : Các loại vật liệu hàn hư hỏng hoặc kém chất lượng thểhiệnở các dạng như nứt hoặc bong lớp thuốc bọcque hàn, dây hàn bị gỉ, bẩn hoặc bong mất lớp mạ đồng.
9.4.2. Bảo quản que hàn
Que hàn phải được bảo quản theo đúng chỉ dẫn của nơi sản xuất và đảm bảo khô ráo
Que hàn phải được bảo quản sao cho khi hàn, hàm lượng hyđrô khuếch tán lớn nhất trong kim loại hàn không lớn hơn 15 mL/100g. Nếu que hàn được yêu cầu bảoquản đặc biệt hoặc xử lý nhiệt trong quá trình bảo quản thì phải theo chỉ dẫn củabên sản xuất.
Trước khi bao gói, que hàn phải được sấy khô. Sau khi bao gói, que hàn phải chống được sự hútẩm.
Chú thích: Theo quy định, thợ hàn phải có bao hoặc thùng có nắp kín để đựng que hàn.
10. Các liên kết hàn
10.1. Quy định chung
Trong tiêu chuẩn này, quy định các liên kết hàn:
a) Các liên kết hàn thép cốt với nhau, gồm : đối đầu, ốp táp, gối chồng hoặc chữ thập;
b) Các liên kết hàn thép cốt vớithép tấm, gồm : liên kết hàn đối đầu, liên kết hàn góc.
10.2. Liên kết hàn đối đầu phải được hàn thấu hoàn toàn bề mặt tiếp giáp. Vật liệu hàn phải chọn sao cho độ bền kéo của mối hàn không thấp hơn độ bền kéo của thép cốt.
Chú thích:Đầu nối của liên kết hànđược gia công nhưhình 2.
10.3. Liên kết hàn ốp táp
Chi tiết ốp có thể bằng thép tấm, thép cốt, thép góc, thép ống hoặc bằng thép cóhình dạng khác tùy theo yêu cầucủa bên đặt hàng.
Thép cốt có thể được liên kết với thép tấm hoặc thép góc bằng các đường hàn góc. Nếu chi tiếtốp bằng thép cốt, liên kết được thực hiện bằng các đường hàn góc vát và hàn chữ V (hình 3).
Chú thích : Các đường hàn góc vát và hàn chữ V có thểlà một mặt hoặc hai mặt. Liên kết thép cốt có chiều dài hạn chế có thể thực hiện hàn ốp táp bằng một hoặc hai thép cốt.
10.4, Liên kết ghép chồng được thực hiện bằng các đường hàn gốc chữ V (hình 4).
Chú thích:
1) Ưu tiên sử dụng liên kết ghép chồng bằng hàn cả hai mặt nhằm hạn chế tớiđoạn thanh gối lên nhau;
2) Trong trường hợp hàn ghépchồng, theo chỉ dẫn các điểm đầu và cuối của đường hàn phải được bắt đầu vàkết thúc trên bề mặtcủa một trong hai thép cốt, tức là cách xa khe hở giữa hai thép cốt (xem hình 5).
10.5. Liên kết chữ thập được thực hiện bằng đường hàn chữ V, hàn liên tục hoặc không liên tục (hình 6).
Thử nghiệm trình tự được thực hiện nhằm xác định chiều dài và kích thước mối hàn đảm bảo độ bền theo yêu cầu.
10.6. Hàn đính thép cốt (hàn định vị)
Hàn định vị trước khi đổ bêtông không mang tính chịu lực và theo chỉ dẫn nêu ở phụ lục A.
10.7. Chuẩn bị hàn
Bề mặt thép để hàn phải đảm bảo không gây ra các hiện tượng làm ảnh hưởng đến chất lượng hàn:
a) Không có rạn nứt, vết lõm hoặc các khuyết tật khác ;
b) Không có các vết khía sâu, gỉ bẩn, dầu mỡ và các tạp chất khác.
Các đầu của thép cốt khi hàn đốiđầu phảiđược làm sạch bằng các biệnpháp cơ khí (hình 2) thí dụ bằng cưa hoặc mài dũa.
10.8. Lắp ghép hàn
Thép cốt trước khi hàn phải được lắp ghép tổ hợp đúng, chỗliên kết hàn phải được làm sạch. Độ lệch trục cho phép của liên kết hàn đối đầu không lớn hơn 10% dhoặckhông lớn hơn 3mm (chọn trị số nhỏ hơn trong hai trị số nêu trên).
Các thép cốt khi liên kết hàn ghép chồng phải lắp tiếp giáp khít với nhau. Thép cốt nếu hàn có yêu cầu gia nhiệt trước thì phải thực hiện việc gia nhiệt theo bảng 1 và bảng 2 trước khi hàn dính.
Mối hàn dính của liên kết hàn ghép chồng phải được làm sạch xỉtrước khi hàn chịu lực. Đối vớiliên kết hàn đối đầu được hàn hai mặt, phải mài dũa hoặc đục chân của mối hàn mặt thứ nhất để làm sạch kim loạiở mặt thứ hai
Bảng 1. Trị số gia nhiệt tối thiểu dùng cho các liên kết hàn đối đầu và chữ thập: lượng hyđrô thấp *
|
Đường kính danh định của thép cốt, mm |
Trị số gia nhiệt tối thiểu |
||
|
25 |
lớn hơn 25 đến 40 |
trên 40 |
|
|
Các bon tương đương (Cc),%. |
oC |
||
|
0,42 và nhỏ hơn |
0 |
0 |
50 |
|
Lớn hơn 0,42 đến 0,51 |
50 |
75 |
100 |
|
*) Lượng hyđrô tồn đọng trong kim loại hàn không vượt quá 15 mL/100 gam |
|||
Bảng 2. Trị số gia nhiệt tối thiểu dùng cho các liên kết hàn đối đầu và chữthập : lượng hyđrô cao
|
Đường kính danh định của thép cốt, mm |
Trị số gia nhiệt tối thiểu |
||
|
25 |
lớn hơn 25 đến 40 |
trên 40 |
|
|
Các bon tương đương (Cc),%. |
oC |
||
|
0,42 và nhỏ hơn |
50 |
75 |
100 |
|
Lớn hơn 0,42 đến 0,51 |
100 |
Sử dụng que hàn có lượng hyđrô thấp |
|
10.9. Thiết kế mối hàn
10.9.1. Độ bền kim loại mối hàn
Que hàn phải đảm bảo có giới hạn chảy tương đương với cường độ đặc trưng của thép hàn. Trong trường hợp chịu cắt, giới hạn chảy khi chịu cắt được lấy như sau :
a) 115 N/mm2 cho kim loại hàn có giới hạn chảy nhỏ hơn 410 N/mm2 ;
b) 160 N/mm2 cho kim loại hàn cógiới hạn chảy không nhỏ hơn 410 N/mm2.
10.9.2. Thiết kếliên kết vàđộ bền
Liên kết đối đầu phải được hàn thấu hoàn toàn.
Chú thích 1 : Độbền của mối hàn không được nhỏ hơn độ bền của thép cốt.
Liên kết ốp táp và ghép chồng phải thực hiện bằng các đường hàn góc vát hoặc đường hàn góc chữ V.
Khả năng chịu lực của liên kết hàn được tính theo công thức sau :
F = rw.T.Lw
Trong đó:
F – khả năng chịu lực của liên kết hàn (N) ;
rw – cường độ tính toán khi cắt của kim loại hàn (N/mm2) ;
T – chiều dày tính toán của mối hàn (mm) ;
Lw– chiều dài đường hàn (mm).
Chúthích 2:Khả năng chịu lực củacác đường hàn này chính là tích sốcường độ chịu cắtcủa kim loạimối hàn và diện tích chịu lựccủa chúng.
Đối với dạng liên kết hàn góc vát, chiều dày tính toáncủa mối hàn chính là khoảng cách ngắn nhất tính từ bề mặttiếp giáp thép tấm với thép cốt đến bề mặt mối hàn trừ đi 0,2d (hình 7). Chiều dài này phải nằm trong khoảng từ trịsố bề rộng mốihàn đến trị số lớn nhất là 0,3d.
Chú thích 3: Giá trị 0,2d chính là phần không thể hàn thấu hết được ở chân mối hàn.

Hình 7: Chiều dày tính toán mối hàn
a) Chiều dày tính toán mối hàn T tính bằng T1 trừđi 0,2d.
Đểđơn giản trong kiểm tra hiện trường, chiều dày tính toán mối hàn có thể lấy bằng W;
b) Để đơn giản trong kiểm tra hiện trường, chiềudày tính toán mối hàn T có thể lấy bằng W/2.
Đối với dạng liên kết hàn góc chữ V, chiều dày tính toán của mối hàn cũng tính như dạng liên kết hàn góc vát, trừ một số trường hợp cụ thểquy định từ 0,5 lần bề rộng mối hàn đến trị sốlớn nhất là 0,3d.
Trường hợp liên kết hàn thép cốt cóđường kính khác nhau thì phải tính toán theo đường kính thanh nhỏ hơn.
Đối với các mối hàn góc, tổng chiều dài tối thiểu của đường hàn L (mm) để truyền toàn bộ lực kéo của thép cốt được tính theo công thức sau :
Trong đó:
d – đường kính thép cốt (mm);
T – chiều dày tính toán của mối hàn (mm) ;
– cường độ đặc trưng xác định của thép cốt (N/mm2) ;
rw – cường độtính toán khi cắt của kim loại hàn (N/mm2).
Chiều dài lớn nhất của đường hàn góc phải bằng 5d. Trường hợp khi có yêu cầu đường hàn dài hơn, đường hàn phải được phân thành các đoạn hàn không nhỏ hơn5d. Khoảng cách giữa các đoạn hàn này không nhỏ hơn 5d (hình 5).
11. Kỹ thuật hàn
11.1. Điều kiện thời tiết
Không được phép hàn dưới trời mưa, có gió thổi mạnh trừ khi được che chắn. Bề mặt thép hàn phải đảm bảo khô ráo.
11.2. Nung nóng sơ bộ
11.2.1. Quy định chung
Tuân thủ các điều 11.2.3 và 11.2.4 khi không thí nghiệm quy trình hàn. Nếu quy trình hàn được thí nghiệm thì các quy định ở điều 11.2.3 và 11.2.4 không phải áp dụng.
11.2.2. Hàm lượng cácbon tương đương (Cc)
Các trị số Ccở các bảng 1 và 2, ở các hình 8 và 9 là các trị số phân loại thép hàn.
Trị số Cc được tính theo công thức sau :
Cc = C +Mn/6 +(Cr +Mo +V)/5 + (Ni +Cu)/15 (1)
Trong đó : C, Mn, Cr, Mo, V, Ni, Cu – hàm lượng các nguyên tố hóa học có trong vật liệu thép cốt bêtông (%), được xác định bằng phương pháp phân tích.
11.2.3. Liên kết hàn đối đầu và hàn chữ thập
Liên kết hàn đối đấu và hàn chữ thập, kể cả hàn dính chữ thập nếu có yêu cầu về nung nóng sơ bộ thì lấy theo các giá trị ghi ở các bảng 1 và 2.
11.2.4. Liên kết hànốp táp và hàn ghép chồng
Liên kết hàn ghép chồng kể cả hàn dính ghép chồng và liên kết hàn chữ thập, nếu có yêu cầu về nung nóng sơ bộ thì lấy theo các giá trị nêu ở các hình 8 và 9.
Năng lượng đường (Q), được xác định theo công thức :
Q =(U.I/V).10-3 (KJ/mm)
Trong đó:
U – điện áp hồ quang (V);
I – dòng điện hàn (A);
V – tốc độ hàn (m/s).
Trong trường hợp hàn hồ quang tay có thể tính Q theo công thức trên hoặc bằng cách tratrong các bảng 3, 4. và 5.
11.2.5. Áp dụng gia nhiệt hàn
Trong mọi trường hợp, nếu cần nung nóng sơ bộ, phải sử dụng ngọn lửa khí đốt hoặc bằng nhiệt điện. Nên dùng thiết bị chuyên dùng để nung nóng.
Khi hàn một lớp, nhiệt độ ở vùng liên kết không được phép thấp hơn nhiệt độquy định cho nung nóng sơ bộ.
Khi hàn không liên tục, hoặc khi nhiệt độ ở vùng liên kết thấp hơn nhiệt độ phải nung nóng sơ bộ, vùng liên kết đó phải được nung nóng lại trước khi hàn lượt sau. Khoảng cách nung nóng sơ bộ tính từ điểm hàn không nhỏ hơn 75mm. Tuy nhiên, trong mọi vị trí của liên kết không cho phép bất cứ điểm nào lớn hơn 325°C.
Trị số nung nóng sơ bộ cho liên kết phải được xác định bằng các dụng cụ đo. Tốc độ nung nóng trong khoảng 2 phút tính cho 25mm đường kính thép cốt.

Năng Iượng đường KJ/mm
Hình 8: Đồthị nung nóng sơ bộ cho các liên kết hànốp táp, ghép chồng và dính,áp dụngchothép cốtcó hàm lượng cácbon tương đương không lớn hơn 0,42%.
Chúthích:
1- Đồ thị nàyáp dụng cho các vậtliệu hàn có quy định hàm lượng hyđrô thấp;
2- Bề dày liên kết tính bằng tổng các đường kính thép cốt và chiều dày thép hình.

Hình 9:Đồ thị nung nóng sơ bộ cho các liên kết ốp táp, ghép chồng và dính, áp dụng cho thép cốt có hàm lượng cácbon tương đương lớn hơn 0,42% đến 0,51%.
Ghi chú:
1 – Đồ thị này áp dụng cho các vật liệu hàn cóquy định hàm lượng hyđrô thấp. Đối với các các vật liệucó hàmlượng hyđrô cao thì phải nung nóng sơ bộ cao hơn 50oC, trừ trường hợp thép cốt có đường kính lớn hơn 25mm vì khi đó thì không được phép hàn;
2 – Bềdày liên Kết tính bằng tổng các đường kính thép cốt vàchiều dày thép hình.
11.3. Mứctăng nhiệt trong quá trình hàn
Để tránh sự gia tăng nhiệt quá mức làm thay đổi cơ tính kim loại, nhiệt độ thép cốt quy định không vượt quá 325oC đo từđiểm cách điểm vừa được hàn 25mm.
11.4. Hồ quang lệch
Không được phép hàn khi hồ quang lệch khỏi đường định hàn. Các khuyết tật do hàn lệch hồ quang gây ra như rạn nứt, lõm khuyết, hình dạng mối hàn không hợp lý phải được xử lý bằng phương pháp cơ học.
11.5. Vệ sinh hàn
Trước khi hàn tiếp lên lớp hàn trước, phải tẩy sạch xỉ khỏi lớp hàn. Không cho phép có sơn ở liên kết hàn. Các khuyết tật quan sát được như khuyết lõm, rạn nứt phải được xử lý trước khi hàn lớp tiếp theo.
11.6. Hàn đính
Hàn đính phải thực hiện với kích thước tối thiểu đủ để đảm bảo định vị khi lắp ráp thép cốt cho bước hàn chính thức. Kích thước mối hàn đính cho liên kết ghép chồng: chiều cao tối thiểu 4mm, chiều dài tối thiểu 25mm. Thép cốt cóyêu cầu nung nóng sơ bộ phải thực hiện trước khi hàn đính theo yêu cầu nêu ở các hình 8 và 9.
Hàn đính liên kết chữ thập phải đảm bảo sao cho chiều cao mối hàn không nhỏ hơn 1/3 đường kính thanh thép cốt nhỏ hơn, hoặc bằng 6mm (chọn giá trị lớn hơn tronghai giá trị nêu trên). Thép cốt có yêu cầu nung nóng sơ bộ phải thực hiện trước khihàn đính theo yêu cầu nêu ở các bảng 1 và 2.
11.7. Khuyết tật liên kết
Liên kết không đạt yêu cầu tiêu chuẩn phải được xử lý và hàn lại theo đúng yêu cầuquy định.
11.8. Phương pháp hàn
Có thể sử dụng các phương pháp hàn : hàn hồ quang tay, hàn bán tự động trong khí bảo vệ, hàn không có khí bảo vệ.
Chúthích : Các phương pháp hàn khác có thể sửdụng khi đã qua thử nghiệm.
11.9. Công nghệ hàn
Khi bên đặt hàng cóyêu cầu về công nghệ hàn thì phải đảm bảo trình tự sau :
a) Phương pháp hàn hoặc các phương pháp hàn được áp dụng;
b) Các đặc tính của kim loại cơ bản, bề dày và các kích thước khác ;
c) Nhiệt độ nhà xưởng hoặc ở chỗ hàn;
d) Vệsinh, tẩy…
Bảng 3. Năng lượng đường khi dùng que hàn hiệu suất không lớn hơn 110%
|
Năng lượng đường kJ/mm |
Chiều dài hàn mm |
|||||||
|
Cho đường kính que hàn, mm |
||||||||
|
2,5 |
3,2 |
4,0 |
5,0 |
6,0 |
6,3 |
8,0 |
10,0 |
|
|
0,6 |
220 |
355 |
550 |
870 |
– |
– |
– |
– |
|
0,8 |
165 |
270 |
415 |
650 |
940 |
1040 |
– |
– |
|
1,0 |
130 |
215 |
330 |
520 |
750 |
830 |
– |
– |
|
1,2 |
110 |
180 |
275 |
435 |
625 |
690 |
1110 |
– |
|
1,4 |
95 |
150 |
235 |
370 |
535 |
590 |
955 |
– |
|
1,6 |
– |
135 |
205 |
325 |
470 |
520 |
840 |
– |
|
1,8 |
– |
120 |
185 |
290 |
415 |
460 |
745 |
1160 |
|
2,0 |
– |
105 |
165 |
260 |
375 |
415 |
670 |
1040 |
|
2,2 |
– |
95 |
150 |
235 |
340 |
375 |
610 |
950 |
|
2,5 |
– |
55 |
130 |
205 |
300 |
330 |
535 |
835 |
|
3,0 |
– |
– |
110 |
175 |
250 |
275 |
445 |
695 |
|
3,5 |
– |
– |
95 |
150 |
215 |
235 |
380 |
595 |
|
4,0 |
– |
– |
80 |
130 |
185 |
205 |
335 |
520 |
|
4,5 |
– |
– |
– |
115 |
165 |
185 |
295 |
465 |
|
5,0 |
– |
– |
– |
105 |
150 |
165 |
265 |
415 |
|
5,5 |
– |
– |
– |
95 |
135 |
150 |
245 |
380 |
|
6,0 |
– |
– |
– |
85 |
125 |
135 |
225 |
350 |
|
6,5 |
– |
– |
– |
– |
115 |
125 |
205 |
320 |
|
7,0 |
– |
– |
– |
– |
105 |
115 |
190 |
300 |
|
8,0 |
– |
– |
– |
– |
95 |
105 |
165 |
260 |
Chú thích: Chiều dài hàn là độ dài đạtđược khi hàn một que hàn dài 450mm có để lại 40mm đầu mẫu.
e) Nhóm, loại, kích thước que hàn và dụng cụ hàn;
f) Đối với hàn tay : đường kính que hàn, cường độ điện hàn và hiệu điện thế hàn, tốc độ hàn, chiều dài đường hàn, số lớp hàn, chế độ sấy que hàn;
g) Sơ đồ chuẩn bị các đầu nối, xác định một cách tương đối số lớp hàn cho liên kết hàn nhiều lớp;
h) Lắp ghép và hàn đính;
i) Vị trí hàn :
j) Kỹ thuật hàn;
k) Nhiệt độ nung nóng sơ bộ tối thiểu:
l) Lật mặt phía sau, vệ sinh đường hàn ;
m) Các yêu cầu khác.
Thợ hàn phải nắm vững quy trình hàn và các yêu cầu kỹ thuật hàn.
Bảng 4. Năng lượng đường khi dùng que hàn hiệu suất lớn hơn 110% đến 130%
|
Năng lượng đường kJ/mm |
Chiều dài hàn mm |
|||||||
|
Cho đường kính que hàn, mm |
||||||||
|
2,5 |
3,2 |
4,0 |
5,0 |
6,0 |
6,3 |
8,0 |
10,0 |
|
|
0,6 |
250 |
410 |
640 |
1000 |
– |
– |
– |
– |
|
0,8 |
190 |
310 |
480 |
750 |
1090 |
1220 |
– |
– |
|
1,0 |
150 |
245 |
385 |
600 |
875 |
980 |
– |
– |
|
1,2 |
125 |
205 |
320 |
500 |
730 |
820 |
– |
– |
|
1,4 |
105 |
175 |
275 |
430 |
620 |
700 |
1100 |
– |
|
1,6 |
95 |
155 |
240 |
375 |
545 |
610 |
965 |
– |
|
1,8 |
– |
135 |
215 |
335 |
385 |
545 |
860 |
– |
|
2,0 |
– |
125 |
190 |
300 |
435 |
490 |
775 |
1210 |
|
2,2 |
– |
110 |
175 |
275 |
395 |
445 |
705 |
1100 |
|
2,5 |
– |
100 |
155 |
240 |
350 |
390 |
620 |
965 |
|
3,0 |
– |
80 |
125 |
200 |
290 |
325 |
515 |
805 |
|
3,5 |
– |
– |
110 |
170 |
250 |
280 |
440 |
690 |
|
4,0 |
– |
– |
95 |
150 |
220 |
245 |
385 |
605 |
|
4,5 |
– |
– |
85 |
135 |
195 |
215 |
345 |
535 |
|
5,0 |
– |
– |
– |
120 |
175 |
195 |
310 |
485 |
|
5,5 |
– |
– |
– |
110 |
160 |
175 |
280 |
440 |
|
6,0 |
– |
– |
– |
100 |
145 |
160 |
260 |
405 |
|
6,5 |
– |
– |
– |
90 |
135 |
150 |
240 |
370 |
|
7,0 |
– |
– |
– |
85 |
125 |
140 |
220 |
345 |
|
8,0 |
– |
– |
– |
– |
105 |
120 |
195 |
300 |
Chú thích: Chiều dài hàn là độ dài đạtđược khi hàn một que hàn dài 450mm có để lại 40mm đầu mẫu.
Bảng 5. Năng lượng đường khi dùng que hàn hiệu suất lớn hơn 130%
|
Năng lượng đường kJ/mm |
Chiều dài hàn mm |
|||||||
|
Cho đường kính que hàn, mm |
||||||||
|
2,5 |
3,2 |
4,0 |
5,0 |
6,0 |
6,3 |
8,0 |
10,0 |
|
|
0,6 |
325 |
530 |
830 |
– |
– |
– |
– |
– |
|
0,8 |
240 |
395 |
620 |
975 |
– |
– |
– |
– |
|
1,0 |
195 |
315 |
495 |
780 |
1120 |
1230 |
– |
– |
|
1,2 |
160 |
265 |
415 |
650 |
935 |
1030 |
– |
– |
|
1,4 |
135 |
225 |
355 |
555 |
800 |
880 |
– |
– |
|
1,6 |
120 |
200 |
310 |
485 |
700 |
770 |
1240 |
– |
|
1,8 |
105 |
175 |
275 |
430 |
620 |
685 |
1100 |
– |
|
2,0 |
95 |
160 |
250 |
390 |
560 |
620 |
1000 |
– |
|
2,2 |
85 |
145 |
225 |
355 |
510 |
560 |
905 |
– |
|
2,5 |
– |
125 |
200 |
310 |
450 |
495 |
800 |
1240 |
|
3,0 |
– |
105 |
165 |
260 |
370 |
410 |
665 |
1030 |
|
3,5 |
– |
90 |
140 |
220 |
320 |
350 |
570 |
890 |
|
4,0 |
– |
– |
125 |
195 |
280 |
310 |
500 |
780 |
|
4,5 |
– |
– |
110 |
170 |
250 |
275 |
445 |
690 |
|
5,0 |
– |
– |
100 |
155 |
225 |
245 |
400 |
620 |
|
5,5 |
– |
– |
90 |
140 |
205 |
225 |
360 |
565 |
|
6,0 |
– |
– |
80 |
130 |
185 |
205 |
330 |
520 |
|
6,5 |
– |
– |
– |
120 |
170 |
190 |
305 |
480 |
|
7,0 |
– |
– |
– |
110 |
160 |
175 |
285 |
445 |
|
8,0 |
– |
– |
– |
95 |
140 |
155 |
250 |
390 |
Chú thích: Chiều dài hàn là độ dài đạtđược khi hàn một que hàn dài 450mm có để lại 40mm đầu mẫu.
12. Phê chuẩn quy trình hàn
12.1. Quy trình được phê chuẩn
Các quy trình hàn cho các dạng liên kết thép cốt phải được thử nghiệm theo điều 12.3 trước khi phê chuẩn.
Việc phê chuẩn phải tiến hành đối với mọi tư thế hàn.
Chú thích 1: Có thể bỏ qua thử nghiệm quy trình hàn nếu nó được khẳng định là phù hợp vớiquy định nêu ởđiều 3.3.
Đối với mỗi quy trình hàn được sử dụng phải được bên nhận thầu thiết lập đầy đủhồ sơ để theo dõi.
Chú thích 2 : Các cácvẽ và yêu cầukỹ thuật, bao hàm cả quy trình hàn được quy định trong phụ lụcB.
12.2. Các giới hạn cho phép
Việc kiểm tra quy trình hàn phải được tiến hành đối với mỗi nhóm và loại thép cốt.
Mỗi thử nghiệm phải được tiến hành cho loại thépcó đường kính lớn nhất. Bất kì một hay nhiều thay đổi sau đây đều phải được phê chuẩnIại:
a) Thay đổi phương pháp hàn;
b) Tăng cường độ kim loại mối hàn;
c) Thay đổi loại que hàn, thí dụ thay đổi từ loại thuốc bọc nhóm bazơ sang nhóm rutil;
d) Thay đổi đường kính que hàn hay dây hàn;
e) Thay đổi khí bảo vệ hay hỗn hợp khí bảo vệ;
f) Thay đổi cường độđiện hàn khác quá 15%;
g) Thay đổi thiết bị hàn;
h) Thay đổi dòng diện hàn một chiều sang xoay chiều hoặc ngược lại. Thay đổi cực tính hàn;
i) Thay đổitưthế hàn hay đổi chiều hướng hàn khi thực hiện đường hàn leo;
j) Giảm nhiệt độ nung nóng sơ bộ quá 20oC;
k) Thay đổi đường kính thép cốt ngoài phạm vi 0,75 đến 1,5d. Bất kì sự thay đổi nào trong phạm vi nêu trên chỉ được phép khi đảm bảo được các yêu cầu nêu ở các hình 8, 9 hoặc ở các bảng 1, 2.
12.3. Phê chuẩn thử nghiệm quy trình hàn
12.3.1. Quy định chung
Quy định các phép thử sau:
a) Thử kéo mối hàn ;
b) Thử nghiệm kim tương.
12.3.2. Công nghệ hàn
Tất cả các liên kết cần kiểm tra phải được hàn ở vị trí hàn trong thực tế, với các vị trí thép cốt nằm ngang, thẳng đứng như mô tảở các hình 10 và 11.
12.3.3. Số lượng và loại phép thử xem trong bảng 6 và hình 12.
12.3.4. Chiều dài mẫu thử (L)
12.3.4.1. Mẫu thử kéo:
a) Hàn đối đầu và hàn chữ thập : tối thiểu L = 8d +500mm, mối hàn nằm ở giữa mẫu thử ;
b) Hàn ốp táp và ghép chồng : tối thiểu L = 8d + 500mm +chiều dài ốp táp.
12.3.4.2. Mẫu thử kim tương:
a) Hàn đối đầu, chữ thập và hàn đính : L = 200mm ;
b) Hàn ốp táp, ghép chồng và hàn đính ghép chồng: Lmin=5d.
12.3.5. Thử kéo
12.3.5.1. Điều kiện phép thử : mẫu thử kéo không được sửa đổi.
12.3.5.2. Phương pháp thử : tốc độ kéo nên giữ ở mức không thay đổi và không lớn hơn 10 N/mm2trong 1 giây. Đối với liên kết hàn chữ thập, thử kéo thép cốt cóđường kính lớn hơn. Giới hạn bền tính bằng lực kéo lớn nhất chia cho tiết diện danh định thép cốt.
Hình 10: Chuẩn bịmẫu thử cho liên kết hàn đối đầu
a) Vị trí hàn bằng (thép cốt nằm ngang; vát mép hai đầu; góc vát mở phía trên);
b) Vị trí hàn ngang (thép cốt thẳng đứng; vát mép đầu trên; góc vát mở mặt bên);
c) Vị trí hàn đứng (thép cốt nằm ngang; vát mép hai đầu; góc vát mở mặt bên);
d) Vị trí hàn ngửa (thép cốt nằm ngang; vát mép hai đầu; góc vát mở phía dưới).
12.3.5.3. Báo cáo kết quả thử nghiệm gồm:
a) Loại và kích thước mẫu thử ;
b) Ứng suất bền kéo (N/mm2) ;
c) Vị tríđứt mẫu thử : ở mối hàn, vùng ảnh hưởng nhiệt hay ở kim loại thép cốt;
d) Vị trí và dạng khuyết tật ở tiết diện đứt mẫu.
12.3.5.4. Đánh giáchất lượng :
Chất lượng mối hàn đạt yêu cầu nếu ứng suất bền kéo mối hàn không nhỏ hơn giới hạn bền kéo thép cốt theo tiêu chuẩn sản phẩm TCVN 1651 : 1985 hay TCVN 3101 : 1979 .
12.3.6. Thử kim tương
12.3.6.1. Chuẩn bị mẫu thử
Mẫu chọn để thử kim tương phải đảm bảo :
a) Mẫu hàn đối đầu : lấy phần kim loại mối hàn phía góc hàn bằng cách cắt dọc trụcthép cốt;
b) Mẫu hànốp táp, ghép chồng vàđính ghép chồng : cắt 2 mẫu ở hai đầu mối hàn ;
c) Mẫu hàn chữ thập và hàn đính chữ thập : cắt ở chỗ có tiết diện hàn lớn nhất.
Hình 11 : Mẫu thử mối hàn ốp táp
a) Hàn bằng (trục hàn nằm ngang, chiều dày mối hàn thẳng đứng);
b) Hàn ngang (trục hàn nằm ngang, chiều dày mối hàn nằm ngang);
c) Hàn đứng (trục hàn thẳngđứng, chiều dày mối hàn nằm ngang);
d) Hàn ngửa (trục hàn nằm ngang, chiều dày mối hàn thẳng đứng).
12.3.6.2. Chuẩn bị bề mặt :
Mài, đánh bóng và tẩm axit mẫu theo quy định trong tiêu chuẩn.
12.3.6.3. Phương pháp thử
Mẫu được quan sát bằng mắt, chụp ảnh qua kính phóng đại không quá 5 lần.
12.3.6.4. Báo cáo kết quả thử nghiệm gồm :
a) Mô tả cấu trúc tinh thể, góc xuyên ;
b) Vị trí và loại khuyết tật.
12.3.6.5. Đánh giá chất lượng :
Theo các mức quy định trong bảng 7.

Hình 12 : Mẫu thử kéo và thử kim tương để kiểm tra quy trình hàn và tay nghề thợ hàn.
a) Hàn đối đầu, Lmin = 8D + 500; b) Hàn ốp táp, Lmin = 8D + L1 + 500;
c) Hàn chữ thập, Lmin = 8D + 500; c) Hàn ghép chồng, Lmin = 8D + L1 + 500.
Ghi chú :
1.Lmin – chiều dài tối thiểu của mẫu thử, mm
2. L1– chiều dài mẫutính cả phần kẹp mẫu, thường là 100mm cho mỗi đầu.
Vớithép cốt D = 25mm thì mẫu có thể dài hơn.
Bảng 6. Yêu cầu thử nghiệm mối hàn
|
Dạng liên kết hàn |
Số lượng mẫu thử và loại thép thử |
|
|
thử kéo |
thử kim tương |
|
|
Đối đầu |
2 |
1 |
|
Ốp táp |
2 |
1 |
|
Ghép chồng |
2 |
1 |
|
Chữ thập |
2 |
1 |
|
Đính ghép chồng |
– |
1 |
|
Đính chữ thập |
– |
1 |
Bảng 7. Đánh giá chất lượng
|
Dạng khuyết tật |
Giá trị tối đa cho phép |
|
|
Kiểm tra quy trình hàn, thợ hàn (quan sát và kim tương) |
Kiểm tra sản phẩm hàn (quan sát) |
|
|
a) Nứt |
Không cho phép |
Không cho phép |
|
b) Không đầy chân*; không đầy mép ; không đầy giữa các lớp |
Không cho phép |
Không đạt yêu cầu |
|
c) Không ngầu chân* |
* Không cho phép |
Không đạt yêu cầu |
|
d) Chảy chân |
Không sâu quá 1 mm |
Không sâu quá 1 mm |
|
e) Quá đầy |
Mài tẩy kim loại hàn đến bằng mặt thép cơ bản |
Mài tẩy kim loại hàn đến bằng mặt thép cơ bản |
|
f) Chảy tràn |
Không cho phép |
Không cho phép |
*) Chỉ áp dụng cho liên kết hàn đối đầu.
Bảng 8. Đánh giá chất lượng các mối hàn đối đầu (kiểm tra bảng phóng xạ)
|
Dạng khuyết tật |
Giá trị tối đa cho phép |
|
|
Rõ khí |
a) Các rõ khí đơn (hoặc tập trung thành nhóm) |
Đường kính không lớn quá 0,125d không quá 3mm |
|
b) Các rõ khí nằm rải rác |
3% tiết diện hình chiếu* |
|
|
Lãn phi kim loại |
Lãn xi |
Dài tối đa 10mm; Rộng tối đa 2mm |
*) Tiết diện hình chiếu là tiết diện tính trên phim chụp có đoạn chiều dài chứa số lượng các rõ khí rải rác và chiều rộng lớn nhất của mối hàn;
Bảng 9. Yêu cầu thử nghiệm thợ hàn
|
Dạng liên kết hàn |
Số lượng mẫu thử và loại phép thử |
|
|
thử kéo |
thử kim tương |
|
|
Đối đầu |
1 |
1 |
|
Ốp táp |
1 |
1 |
|
Ghép chồng |
1 |
1 |
|
Chữ thập |
1 |
1 |
|
Đính ghép chồng |
– |
1 |
|
Đính chữ thập |
– |
1 |
13. Kiểm tra thợ hàn
13.1. Quy định chung
Bên nhận thầu phải đảm bảo với bên đặt hàng về trình độ tay nghề thợ hàn của mình.
13.2. Các thay đổi chưa được thỏa thuận
Các thay đổi chưa được thỏa thuận phải đượckiểmtralại,gồm:
a) Thay đổi loại và nhóm thép cốt;
b) Thay đổi cấu trúc kim loại hàn ;
c) Thay đổi que hàn từ loại thuốc bọc nhómbazơsangnhómrutil;
d) Thay đổi nhiệt độ nung nóng sơ bộ.
Chú thích: Các thay đổi quy định hàn được thỏathuận, nhưng chỉ cho phép thợ hàn khi đã qua thử nghiệm.
13.3. Các sai lệch cho phép
Một trong những thay đổi sau đây đều phải được thử nghiệm lại :
a) Thay đổi phương pháp hàn ;
b) Thay đổi tư thế hàn ;
c) Thay đổi từ thép không mạ sang thép mạ.
13.4. Số lượng và loại phép thử
Số lượng và loại phép thử tay nghề thợ hàn tuân thủ quy định trong bảng 9 và tiến hành thử nghiệm theo điều 12.3.4 và hình 12. Điều kiện thử nghiệm, phương pháp thử nghiệm và báo cáo kết quả theo các điều 12.3.5.1 đến 12.3.6.4.
13.5. Đánh giá chất lượng
Đối với kiểm tra bằng mắt . đánh giá theo bảng 7.
Đối với kiểm tra bằng phương pháp phóng xạ : đánh giá theo bảng 8.
Các khuyết tật có kích thước lớn hơn trị số ghi trong các bảng 7 và 8 đều không đạt chất lượng.
Phụ lục A
(Quy định)
Hàn đính định vị
A.1. Que hàn
Que hàn loại rutil, chọn phù hợp với loạithép cốt theotiêu chuẩn TCVN 1651 : 1985
A.2. Chuẩn bị liên kết
Liên kết phải được làm sạch, làm khô, lắp ghép đúng quy định.
A.3. Nhiệt độ
Khi T° ≤ 0°Ckhông được tiến hành hàn. Trường hợp này phải nung nóng sơ bộ trên chiều dài 75mm về mỗi phía của mối hàn vàđảm bảo nhiệt độ trong vùng hàn ít nhất ở 25oC. Trịsố gia nhiệt tối thiểu cho trong các bảng 1 và 2.
A.4. Kỹ thuật hàn
a) Cường độđiện hàn chọn vừa đủ để làm nóng chảy ngâu nhưng không chảy khuyết thép cốt ;
b) Hồ quang hàn phải vừa đủ ngắn, không đểrõ khí hay chảy tràn ;
c) Nếu hàn hai hay nhiều lớp hàn thì bề dày mỗi lớp phải nhỏ hơn 1/3 lần thép cốt có đường kính nhỏ hơn hoặc bằng6mm (chọn trị số nhỏ hơn trong hai trị số trên). Sau mỗi lớp hàn phải tẩy sạch xỉ hàn mớiđượchàn lớp tiếp theo;
d) Đường kính que hàn chọn cho thanh thép cốt có đường kính nhỏ hơnvàdòngđiệnhàn chotrong bảng 10 ;
Ghi chú: Hình dạng mối hàn theo chỉdẫn ở hình 13.
e) Tránh gãy hồ quang hàn không đúng quy định và tránh làmnguội nhanhchóng mốihàn.
Bảng 10. Đường kính que hàn, dòng diện hàn khi hàn đính thép cốt
|
dthép cốt, mm |
6 |
10 |
16 |
20 |
|
dque hàn, mm |
1,5 |
2,0 |
2,5 |
3,25 |
|
I, A |
40 |
60 |
90 |
130 |

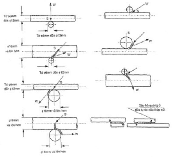
Hình 13: Các kiểu mối hàn đính để định vị
Các kích thước tính bằng mm
S – Điểm gãy hồ quang
W – Điểm ngưng hồ quang
Phụ lục B
(Quy định)
Phiếu công nghệ hàn
Phiếu công nghệ hàn phải thể hiện các thông tin cần thiết một cách đầyđủ,rõ ràng và ngắn gọn. Dưới đây là thí dụ cách trình bày một phiếu công nghệ hàn :
|
Phiếu công nghệ hàn |
Phiếu số N° … |
||
|
Phương pháp hàn |
Bản vẽ phác |
||
|
Vật liệu của liên kết hàn |
|||
|
|
Chỉ tiêu kỹ thuật |
||
|
Thành phần |
|||
|
Đường kính |
|||
|
Vật liệu hàn |
|
||
|
|
Chỉ tiêu kỹ thuật |
||
|
Nhãn hiệu sản phẩm |
|||
|
Đường kính |
|||
|
Khí bảo vệ |
|||
|
Nhiệt độ bảo quản |
|||
|
Cách điềukiện hàn |
|
||
|
|
Nung nóng sơ bộ |
Nhiệt độ khống chế trong quá trình hàn |
|
|
|
Điện áp không tải tối thiểu |
Làm sạch sau mỗi lớp hàn |
|
|
|
Tốc độ phun khí bảo vệ |
|
|
|
Số lớp hàn Đường kính dây hàn hoặc que hàn Điện cực hàn AC/DC + Dòng điện hàn Điện áp hàn |
|||
|
Các thông tin khác |
|||






